Huis te koop in Deurne met 3 slaapkamers
Omschrijving
Leuk huis met onverwachte twist op een toplocatie in Deurne
Welkom in de Plankenbergstraat in Deurne, waar dit verrassend ruime en karaktervolle huis klaarstaat om jouw nieuwe thuis te worden. Achter die statige grijze gevel schuilt een woning boordevol mogelijkheden. Ideaal voor een groot gezin, co-housing of wie gewoon houdt van véél plek en een tikje eigenzinnigheid.
En het mooiste? Je woont hier letterlijk op een boogscheut van het Rivierenhof. Denk: ochtendloopjes, zomerpicknicks, concertjes in openlucht en kindjes die ravotten tussen het groen. Hier kan het elke dag!
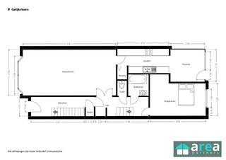
Je komt binnen via een hal met speelse cementtegels en sierlijke moulures die meteen het karakter van de woning verraden.
Op het gelijkvloers vind je een gezellige leefruimte met warme parketvloer, een ruime slaapkamer, een vernieuwde keuken en badkamer, en een aparte berging. De keuken geeft uit op een zuidgerichte stadstuin van 74 m²: zon, privacy en rust verzekerd.
Om de eerste verdieping te bereiken neem je de lift (de trap werd vervangen door een lift). Op deze verdieping een 2de slaapkamer, een eigen leefruimte, een badkamer, aparte keuken en een condensatieketel van Junkers.
De bovenste verdieping biedt nog een 3de slaapkamer, een compacte leefruimte met geïntegreerde keuken en een extra badkamer. Alles netjes onderhouden en – jawel – bereikbaar met de lift.
Alsof dat nog niet genoeg is, ligt onder het huis een kelder van 40 m². Ideaal als extra opslagplek.
Waarom jij dit huis wil zien:
- Topligging vlak bij het Rivierenhof, winkels, scholen en openbaar vervoer
- Authentieke details zoals moulures, parket en cementtegels
- 3 keukens + 3 badkamers: ideaal voor co-housing, inwonende ouders of tieners die graag hun eigen ding doen
- Zuidgerichte tuin: 74m2
- Lift
- kelder 40m2
- AREI conform
- Zonnepanelen + thuisbatterij!
Een klassiek huis met een onverwachte twist, op een toplocatie in Deurne. Momenteel opgedeeld in 3 units, maar niet vergund als meergezinswoning. Wel boordevol potentieel.
Kom jij ontdekken wat jij hier allemaal kan creëren? We leiden je met plezier rond.
Vg, Gvv, Wg, Gvkr, Gmo, niet gelegen in overstromingsgevoelig gebied
Financieel
Gebouw
Terrein
Ligging
Indeling
Comfort
Energie
Ruimtelijke ordening
Locatie
Plankenbergstraat 150, 2100 DeurneIs dit haalbaar voor jou?
Liever een voorstel op maat?
Vertel meer over je project en je persoonlijke situatie en KBC berekent je persoonlijke rentevoet. Je ontvangt onmiddellijk feedback of je lening haalbaar is en je kunt je aanvraag volledig digitaal afronden. Zelfs als je geen KBC-klant bent.














