Omschrijving
Commerciële ruimte casco.
Nieuwbouw commerciële ruimte, zeer gunstig gelegen op de hoek van de Molenstraat - Zwanenberg dit nabij het marktplein en de kerk.
De commerciële ruimte bevindt zich in het nieuwbouwproject 'Diamant', bestaande uit 18 appartementen en 2 woningen.
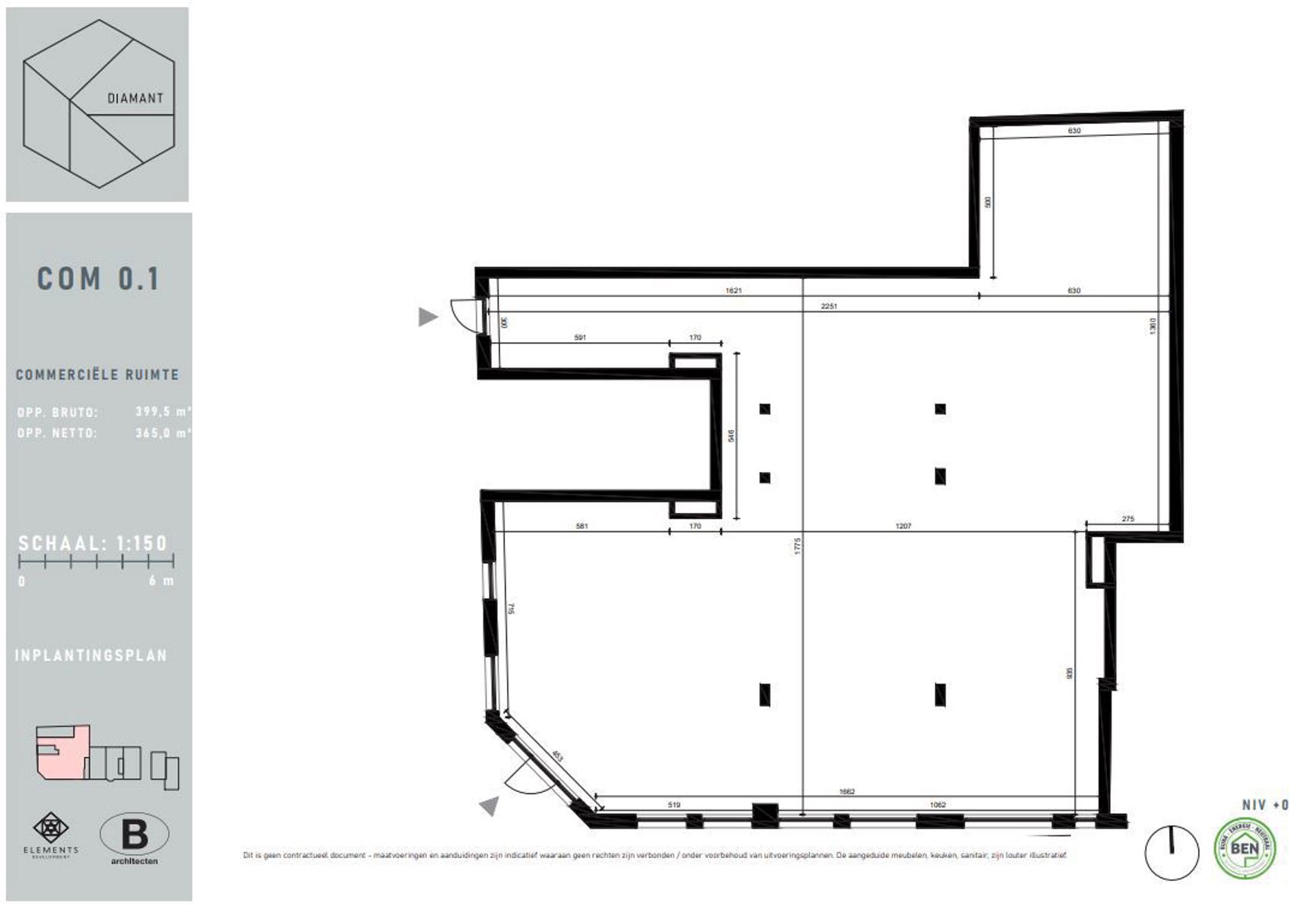
De bruto vloeroppervlakte bedraagt ca. 399m², deze zal casco opgeleverd worden. Daarnaast beschikt de ruimte over veel raampartijen en een zéér goede visibiliteit. De handelsruimte is ook dienstig voor commerciële doeleinden, kantoren of voor vrije beroepen.
Extra info: Berging in het ondergronds complex inbegrepen in de prijs I Oplevering voorzien 2024 I BEN-project I Watertoets: P-score: D I G-score: D I infoplicht: Vg, Wg, Gvv, Gvkr, Gmo I EPB in opmaak.
Financieel
Verkoop onder btw-stelsel
Ja
Gebouw
Type pand
Commercieel
Subtype
Commercieel
Bewoonbare oppervlakte
399 m²
Terrein
Meest recente bestemming terrein
Woongebied
Ligging
Omgeving / buurt
Dorp
Openbaar vervoer nabij
Ja
Afstand tot openbaar vervoer
350 m
Indeling
Type keuken
Niet geïnstalleerd
Aantal winkels
1
Comfort
Lift
Ja
Aansluiting riolering
Ja
Aansluiting water
Ja
Energie
Dubbele beglazing
Ja
Ruimtelijke ordening
Dagvaarding
Nee
Dagvaarding
Geen rechterlijke herstelmaatregel of bestuurlijke maatregel opgelegd
Vonnissen
Nee













