Grond te koop in Oud-Turnhout
€ 220.000
Is dit haalbaar voor jou?Omschrijving
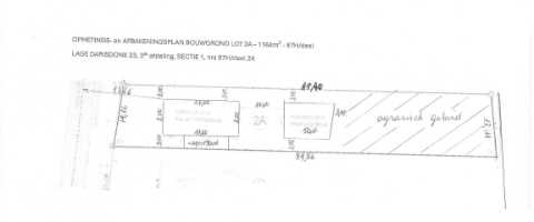
BOUWGROND TE KOOP - LAGE DARISDONK 23 - LOT 2A (3de afdeling, sectie I, perceelnummer 87H/deel)
Oppervlakte: 1164m²
Afmetingen: 14,12m straatbreedte - diepte links 81,40m - diepte rechts 84,86m - breedte achteraan 13,11m
Oriëntatie tuin: oost-zuid
Grenst achteraan aan agrarisch gebied
Bestemd voor het bouwen van een vrijstaande eengezinswoning met een maximale afmeting van 8m breed en 17m diep. Mogelijkheid tot het toevoegen van een carport van 30m², tegen perceelsgrens rechts. Bijgebouw van 50m² kan gebouwd worden (zie toegevoegd opmetings- en afbakeningsplan).
Volledige verkavelingsvoorwaarden te verkrijgen via PB of na telefonisch contact.
Oppervlakte: 1164m²
Afmetingen: 14,12m straatbreedte - diepte links 81,40m - diepte rechts 84,86m - breedte achteraan 13,11m
Oriëntatie tuin: oost-zuid
Grenst achteraan aan agrarisch gebied
Bestemd voor het bouwen van een vrijstaande eengezinswoning met een maximale afmeting van 8m breed en 17m diep. Mogelijkheid tot het toevoegen van een carport van 30m², tegen perceelsgrens rechts. Bijgebouw van 50m² kan gebouwd worden (zie toegevoegd opmetings- en afbakeningsplan).
Volledige verkavelingsvoorwaarden te verkrijgen via PB of na telefonisch contact.
Financieel
Beschikbaarheid
Vanaf akte
Gebouw
Type pand
Grond
Type bebouwing
Open
Oriëntatie achtergevel
Oost
Terrein
Perceeloppervlakte
1.164 m²
Staat grond
Onmiddellijk bebouwbaar
Bebouwbare oppervlakte
1.164 m²
Ligging
Omgeving / buurt
Landelijk
Afstand tot openbaar vervoer
1400 m
Afstand tot autosnelweg
3600 m
Energie
Laadpaal
Nee
Ruimtelijke ordening
Stedenbouwkundige info
Nee
Bestemming gebouw
Privé - eengezins
Kadastraal plan
Nee
Locatie
Lage Darisdonk 23 A, 2360 Oud-TurnhoutIs dit haalbaar voor jou?
Minimale eigen inbreng
-EUR
Maandlast
-EUR/maand
Liever een voorstel op maat?
Vertel meer over je project en je persoonlijke situatie en KBC berekent je persoonlijke rentevoet. Je ontvangt onmiddellijk feedback of je lening haalbaar is en je kunt je aanvraag volledig digitaal afronden. Zelfs als je geen KBC-klant bent.















