Scoop: Appartement te koop in Malle met 1 slaapkamer
€ 272.000
Is dit haalbaar voor jou?Omschrijving
1.2 Appartement met 1 slaapkamer op de 1ste verdieping
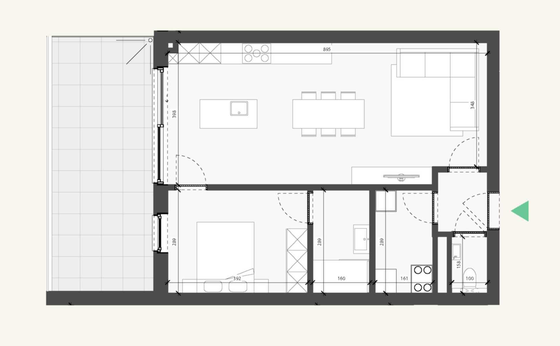
INDELING
Dit gelijkvloers appartement beschikt over een lichtrijke leefruimte met open keuken en toegang tot het ruime terras. Verder telt dit appartement 1 slaapkamer, een badkamer, apart toilet en berging.
BIJZONDERHEDEN
Ondergrondse parking en berging zijn niet inbegrepen in de verkoopprijs.
Dankzij de moderne en hedendaagse technieken wordt het zeer energiezuinig en duurzaam wonen.
POSITIEVE ASPECTEN
Nieuwbouw
Energiezuinig
Kwalitatieve materialen
Groene ligging met eigen parktuin
Vlakbij "Domein de Renesse"
Dit gelijkvloers appartement beschikt over een lichtrijke leefruimte met open keuken en toegang tot het ruime terras. Verder telt dit appartement 1 slaapkamer, een badkamer, apart toilet en berging.
BIJZONDERHEDEN
Ondergrondse parking en berging zijn niet inbegrepen in de verkoopprijs.
Dankzij de moderne en hedendaagse technieken wordt het zeer energiezuinig en duurzaam wonen.
POSITIEVE ASPECTEN
Nieuwbouw
Energiezuinig
Kwalitatieve materialen
Groene ligging met eigen parktuin
Vlakbij "Domein de Renesse"
Financieel
Verkoop onder btw-stelsel
Ja
Waarde constructie
190.400 €
Waarde gronden
81.600 €; 81.600 €
Gebouw
Type pand
Appartement
Subtype
Appartement
Bewoonbare oppervlakte
70 m²
Terrein
Meest recente bestemming terrein
Woongebied
Ligging
Omgeving / buurt
Bosrijk; Centraal
Indeling
Aantal slaapkamers
1
Aantal badkamers
1
Type badkamer
Alle comfort aanwezig
Comfort
Videofoon
Ja
Lift
Ja
Energie
Zonnepanelen
Ja
Dubbele beglazing
Ja
Keuringsattest elektriciteit
Ja, conform
Ruimtelijke ordening
Bestemming gebouw
Privé - meerdere gezinnen
Dagvaarding
Geen rechterlijke herstelmaatregel of bestuurlijke maatregel opgelegd
Vonnissen
Nee
Locatie
Herentalsebaan 25, 2390 Malle272.000 EUR
Locatie
Herentalsebaan 25
2390 Malle
Is dit haalbaar voor jou?
Minimale eigen inbreng
-EUR
Maandlast
-EUR/maand
Liever een voorstel op maat?
Vertel meer over je project en je persoonlijke situatie en KBC berekent je persoonlijke rentevoet. Je ontvangt onmiddellijk feedback of je lening haalbaar is en je kunt je aanvraag volledig digitaal afronden. Zelfs als je geen KBC-klant bent.
















