Grond te koop in Kontich
Omschrijving
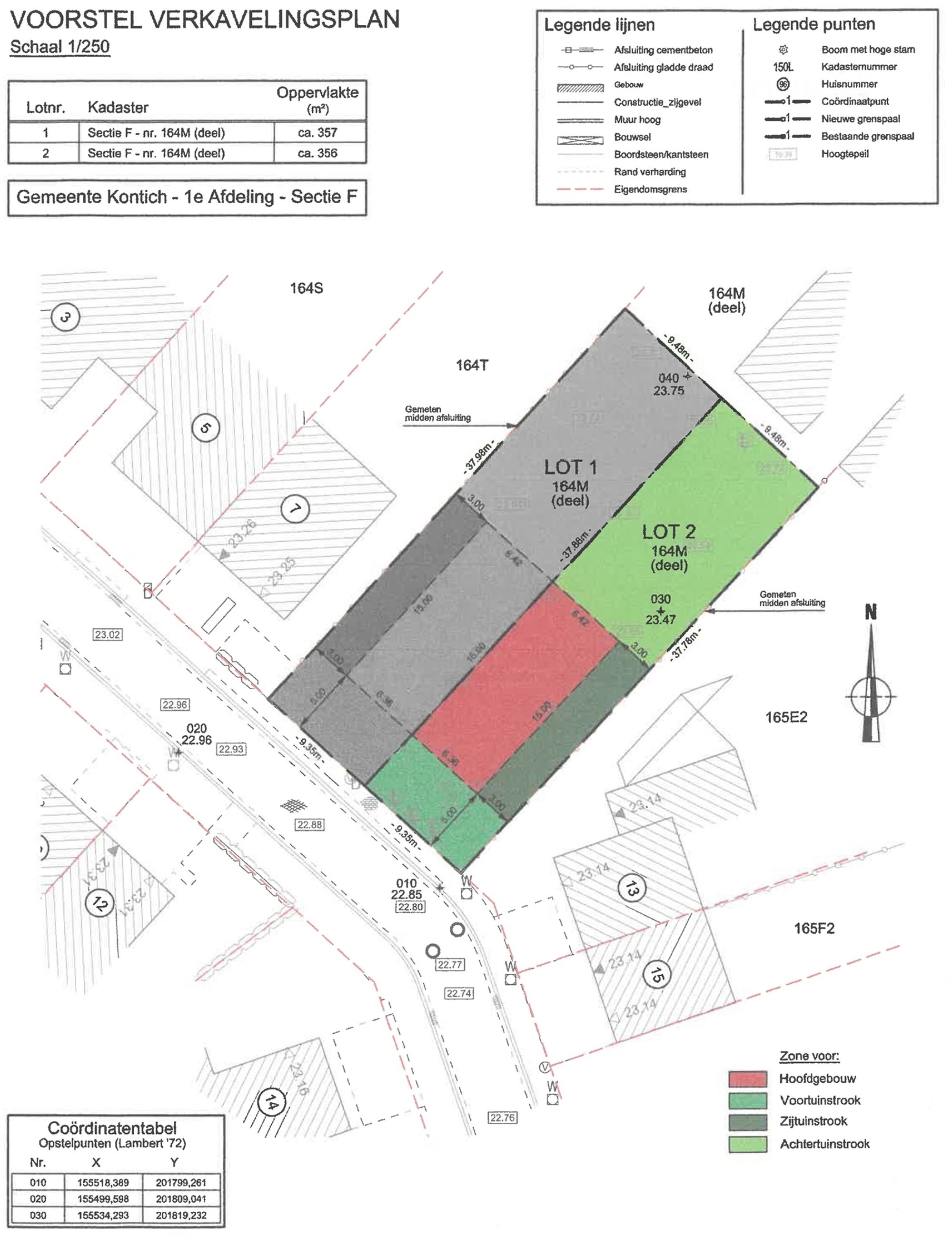
Ruime bouwgrond van 357 m² voor HOB in centrum Kontich
Vlakbij het centrum van Kontich bevindt zich deze bouwgrond voor een HOB aan Ter Sneeuw 11.
De ligging is rustig en residentieel, met een uitstekende bereikbaarheid dankzij de nabijheid van de Mechelsesteenweg en vlotte verbindingen naar Antwerpen en omliggende gemeenten.
Winkels, scholen en ontspanning bevinden zich op korte afstand.
De bouwgrond heeft een oppervlakte van ca. 357 m² en is geschikt voor residentiële halfopen bebouwing (mits vergunning). Links naast dit perceel bevindt zich nog een tweede bouwgrond (Ter Sneeuw 9), die apart te koop wordt aangeboden. Dit zijn bovendien de enige 2 nog beschikbare bouwgronden in deze gegeerde buurt.
Algemeen:
- Bouwgrond in centrum Kontich
- Oppervlakte ca. 357 m²
- Goede bereikbaarheid
Troeven:
- Rustige buurt
- Nabij winkels, school en ontspanning
- Zeldzaam aanbod (laatste percelen in de omgeving)
- Mogelijkheid tot aankoop naastgelegen grond
Uitstekende investering !
Ben jij geïnteresseerd in deze bouwgrond te koop in Kontich, ben je op zoek naar ander vastgoed, een investering of wens je de waarde van jouw eigendom te kennen? Dan ben je bij BOLT immo aan het juiste adres! Wij helpen jou graag verder.
Financieel
Gebouw
Terrein
Ligging
Energie
Ruimtelijke ordening
Locatie
Ter Sneeuw 11, 2550 KontichIs dit haalbaar voor jou?
Liever een voorstel op maat?
Vertel meer over je project en je persoonlijke situatie en KBC berekent je persoonlijke rentevoet. Je ontvangt onmiddellijk feedback of je lening haalbaar is en je kunt je aanvraag volledig digitaal afronden. Zelfs als je geen KBC-klant bent.















