Huis te koop in Hoboken met 12 slaapkamers
Omschrijving
TE RENOVEREN OPBRENGSTEIGENDOM VAN 7 APPARTEMENTEN
Opbrengsteigendom met zeven appartementen en zes garages
In een interessante woonomgeving wordt dit opbrengsteigendom te koop aangeboden, bestaande uit zeven appartementen en zes garages. Het volledige gebouw dient gerenoveerd te worden, wat het een ideale opportuniteit maakt voor investeerders die op zoek zijn naar een project met aanzienlijk potentieel.
Indeling van het gebouw
Gelijkvloers
-
Grootste appartement met tuin en rechtstreekse toegang tot een garage via de tuin.
-
Kelderberging voor elk appartement.
-
Alle zes garages bevinden zich op dit niveau, waarvan twee ook nog beschikken over een ruime oprit.
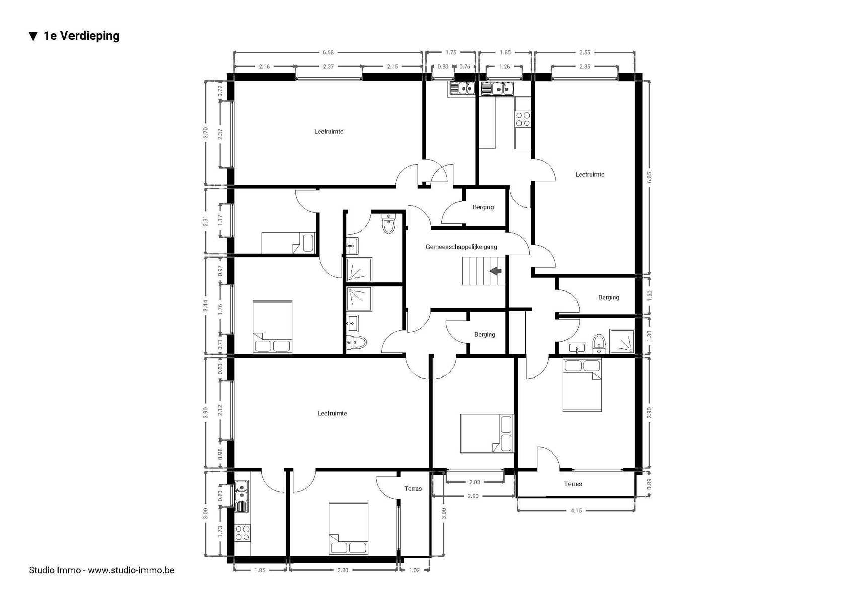
Eerste verdieping
-
Drie appartementen van telkens ca. 78 m².
-
Twee appartementen met 2 slaapkamers.
-
Eén appartement met 1 slaapkamer en terras.
-
Tweede verdieping
-
Drie appartementen van telkens ca. 78 m².
-
Twee appartementen met 2 slaapkamers, waarvan één met terras.
-
Eén appartement met 1 slaapkamer en terras.
-
Garages
-
Garages zijn niet inbegrepen in de vraagprijs en kunnen bijkomend aangekocht worden voor € 180.000
Dit opbrengsteigendom omvat in totaal zeven appartementen en is een bijzonder compleet geheel met tuin, terrassen en kelderbergingen. Na renovatie biedt dit gebouw een aantrekkelijk rendement en tal van mogelijkheden. De zes garages maken het aanbod nog sterker, maar zijn optioneel en kunnen bijkomend aangekocht worden voor € 180.000. Het betreft steeds de aankoop van het volledige gebouw.
📞 Interesse? Neem snel contact op via 03 535 12 75 voor meer informatie, meer foto's of een afspraak.
Surf naar www.immopoint.be en download alle EPC's, asbestattesten en plannen.
-
RENOVATIEPLICHT: Gebouwen met een energielabel “E” of “F” zullen verplicht binnen de 6 jaar energetisch gerenoveerd moeten worden en dit zodat ze minstens over een energielabel “D” beschikken. Bij dit pand zal de renovatieplicht dus van toepassing zijn.
Financieel
Gebouw
Terrein
Indeling
Comfort
Energie
Ruimtelijke ordening
995.000 EUR
Locatie
2660 Hoboken
















