Appartement te koop in Mechelen met 2 slaapkamers
Omschrijving
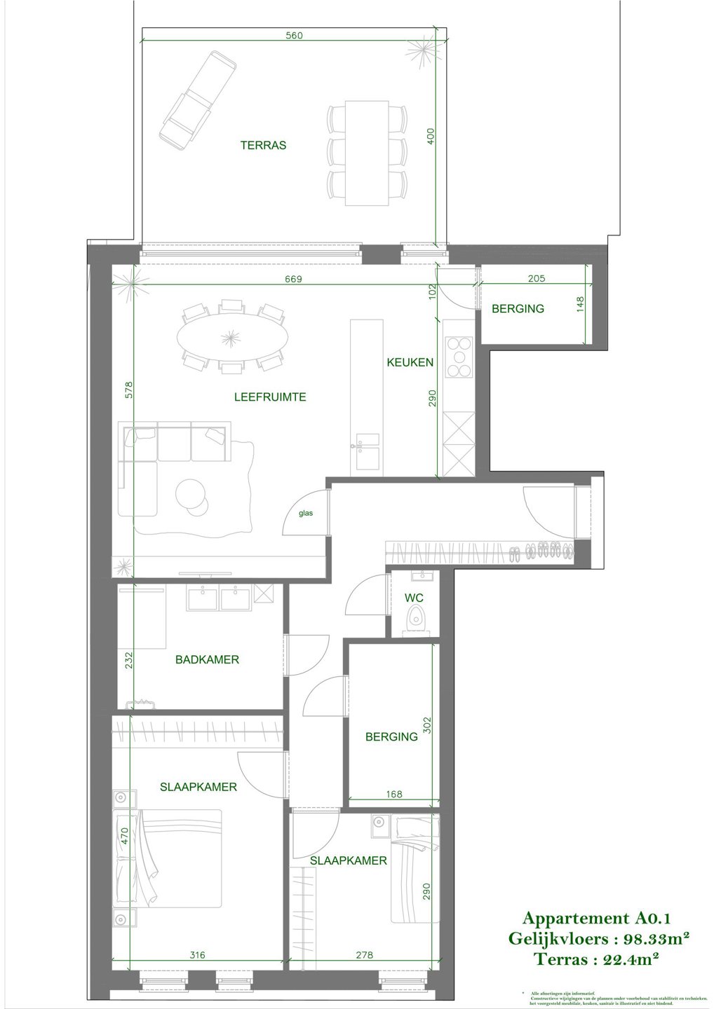
Mechelen gelijkvloers appartement A0.1
Mooi gelijkvloers appartement met een ruime leefruimte met open keuken en aansluitende berging, 2 slaapkamers aan de voorzijde, badkamer met douche en dubbele lavabo en apart toilet, mooie inkomhal met plaats voor een ruime vestiairekast en glazen deur naar leefruimte. Het terras grenst aan de leefruimte en biedt u een mooi zicht op een groene gemeenschappelijke tuin.
Het project "Alba" is gelegen net buiten het stadcentrum van Mechelen waar je kan genieten van alle ruste met het comfort van de stad binnen handbereik. De Abeelstraat bevindt zich in Mechelen Zuid, een rustige zijstraat van de Jubellaan. De nabijheid van de E19 -verbinding naar Brussel en Antwerpen- en de tangent binnen de 2 km zorgt voor vlot woon- ,werkverkeer. In de directe omgeving vindt je een ruime keuze aan scholen, buurtwinkels, supermarkten, sportinfrastructuur en horeca. Alles wat je nodig hebt ligt op wandel- en fietsafstand.
In dit groene kader, zal dit project vooral de focus leggen op hedendaagse architectuur en energiezuinigheid.
De verwarming wordt voorzien met een geothermische warmtepomp op zonnepanelen waardoor de stookkosten aanzienlijk lager liggen dan bij een gasketel. Het appartement voldoet aan de zuinigste energienormen. In combinatie met de zonnepanelen, hoogwaardige thermische en akoestische isolatie en duurzame technieken steven we naar een zo laagmogelijke EPB-waarde (BEN) om te genieten van een zeer betaalbaar wooncomfort.
De makkelijk toegankelijke keldergarage voorzien van een ruime fietsenstalling en handige bergingen, biedt aan iedereen de mogelijkheid een autostaanplaats aan te kopen.
Wees er snel bij, neem contact met ons en vraag naar onze uitgebreide brochure. Hier koop je volledig aan 6% BTW ipv 21%
Financieel
Gebouw
Terrein
Ligging
Indeling
Comfort
Energie
Ruimtelijke ordening
Locatie
Abeelstraat 114 -120 0002, 2800 Mechelen343.000 EUR
Locatie
Abeelstraat 114 -120 0002
2800 Mechelen
Is dit haalbaar voor jou?
Liever een voorstel op maat?
Vertel meer over je project en je persoonlijke situatie en KBC berekent je persoonlijke rentevoet. Je ontvangt onmiddellijk feedback of je lening haalbaar is en je kunt je aanvraag volledig digitaal afronden. Zelfs als je geen KBC-klant bent.














