Grond te koop in Niel
€ 155.000
Is dit haalbaar voor jou?Omschrijving
Unieke bouwgrond met vergund bouwplan te Niel!
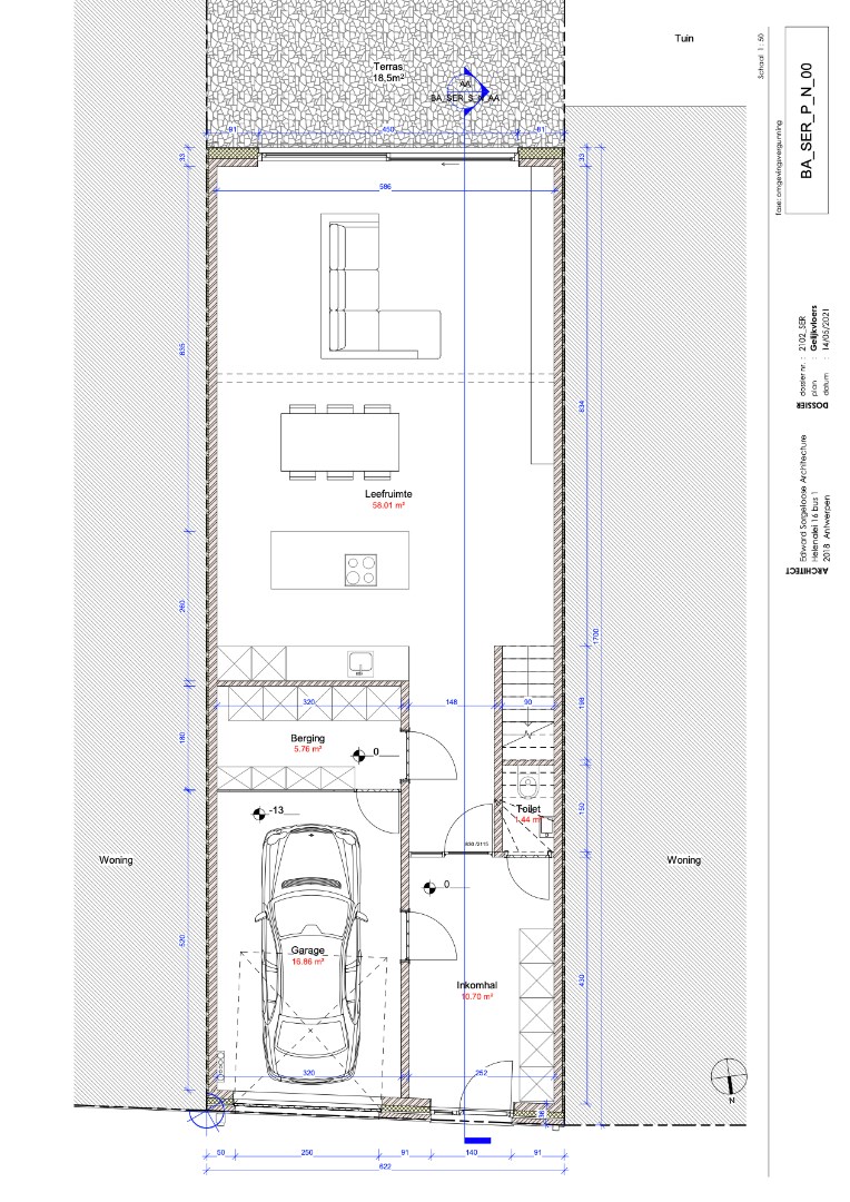
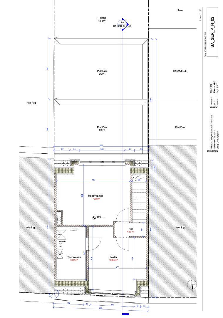
Deze bouwgrond van 439 m² in het gezellige Niel biedt een buitengewone kans! Met een reeds vergund bouwplan kan u hier een prachtig rijhuis realiseren met maar liefst drie verdiepingen én een aangename tuin – perfect voor gezinnen of wie houden van een groene buitenruimte. De gunstige ligging combineert rust en bereikbaarheid, met nabijheid van winkels, scholen en openbaar vervoer. Op de bouwgrond kan een woning gebouwd worden van ca. 6,22 meter breedte. De bouwdieptes bedragen 17 meter voor het gelijkvloers, 13 meter voor de eerste verdieping en 9 meter voor de 2e verdieping, goed voor een totale bewoonbare oppervlakte van +/- 235 m². Bouwplannen te verkrijgen via kantoor!
Niet gelegen in mogelijks overstromingsgevoelig gebied, niet gelegen in afgebakend overstromingsgebied of afgebakende oeverzone, niet gelegen in risicozone overstromingen, woongebied, stedenbouwkundige info in aanvraag. Voor meer info ga naar www.coenenvastgoed.be of bel 03/375.82.92
Niet gelegen in mogelijks overstromingsgevoelig gebied, niet gelegen in afgebakend overstromingsgebied of afgebakende oeverzone, niet gelegen in risicozone overstromingen, woongebied, stedenbouwkundige info in aanvraag. Voor meer info ga naar www.coenenvastgoed.be of bel 03/375.82.92
Financieel
Beschikbaarheid
Onmiddellijk
Gebouw
Type pand
Grond
Terrein
Perceeloppervlakte
439 m²
Meest recente bestemming terrein
Woongebied
Tuin
Ja
Ligging
Winkels nabij
Ja
Ruimtelijke ordening
Dagvaarding
Geen rechterlijke herstelmaatregel of bestuurlijke maatregel opgelegd
Bouwvergunning
Ja
G(ebouw)-score
A (geen overstroming gemodelleerd)
Locatie
Matenstraat 52, 2845 Niel155.000 EUR
Locatie
Matenstraat 52
2845 Niel
Is dit haalbaar voor jou?
Minimale eigen inbreng
-EUR
Maandlast
-EUR/maand
Liever een voorstel op maat?
Vertel meer over je project en je persoonlijke situatie en KBC berekent je persoonlijke rentevoet. Je ontvangt onmiddellijk feedback of je lening haalbaar is en je kunt je aanvraag volledig digitaal afronden. Zelfs als je geen KBC-klant bent.















