Huis te koop in Schoten met 3 slaapkamers
Omschrijving
Casco gezinswoning met tuin op toplocatie in Schoten
In een rustige, kindvriendelijke straat tussen de Schotense Vaart en het bruisende centrum van Schoten vind je deze moderne gezinswoning met tuin. De woning heeft een strakke, eigentijdse gevel en is gebouwd volgens de huidige bouw- en energienormen. Dankzij de centrale ligging zijn alle voorzieningen, invalswegen (Ring en E19) en het openbaar vervoer vlot bereikbaar. Ook het centrum van Antwerpen ligt op korte afstand — ideaal voor wie rustig wil wonen met de stad binnen handbereik.
De woning wordt verkocht casco (ruwbouw winddicht), waardoor de nieuwe eigenaar de volledige afwerking naar eigen smaak kan realiseren. Zo creëer je zelf de thuis die perfect bij jou past.
Let op: de getoonde renders zijn illustratief. Afwerking is niet inbegrepen.
Verkoop onder het registratie-stelsel (12%)
Grootste troeven:
-Centrale locatie
-EPB voorontwerp beschikbaar
-Tal van mogelijkheden
-Gezellige tuin (57m²)
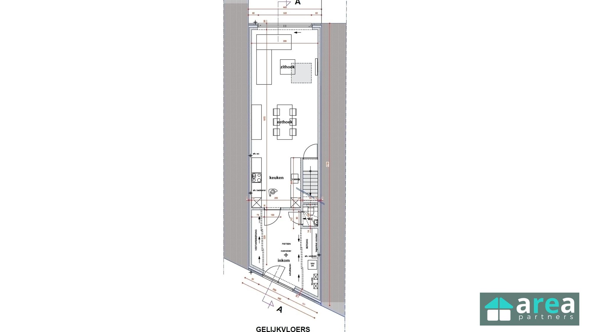
(Huidige) indeling:
-GLVL: ruime inkomhal (20m²) met vestiaire en bergingsmogelijkheden die toegang biedt tot het aparte WC. Aansluitend bevindt zich de keuken (10m²) die naadloos overgaat in de ruime living (35m²). Vanuit de living is er toegang tot leuke zuidwestgerichte tuin (57m²).
-V1: de nachthal geeft toegang tot de badkamer (9m²) met mogelijkheid ligbad, douche en WC alsook de 2 ruime slaapkamers (14m² & 13m²), waarvan de grotere zich aan de achterzijde bevindt en de kleinere langs voorzijde.
-V2: op het bovenste verdiep bevindt zich de 3de ruime slaapkamer (23m²).
Voor meer informatie kan u terecht bij Area Partners. Info@area.be of 03/284.60.60
Financieel
Gebouw
Terrein
Indeling
Comfort
Energie
Ruimtelijke ordening
Locatie
Kalstraat 64, 2900 SchotenIs dit haalbaar voor jou?
Liever een voorstel op maat?
Vertel meer over je project en je persoonlijke situatie en KBC berekent je persoonlijke rentevoet. Je ontvangt onmiddellijk feedback of je lening haalbaar is en je kunt je aanvraag volledig digitaal afronden. Zelfs als je geen KBC-klant bent.
















