Appartement te koop in Kapellen met 3 slaapkamers
Omschrijving
Appartement
Vlak bij het centrum van Kapellen wordt thans werk gemaakt van deze residentie.
Openbaar vervoer, trein en bus, in de onmiddellijke nabijheid, net als een grote diversiteit aan winkels en tal van horecazaken.
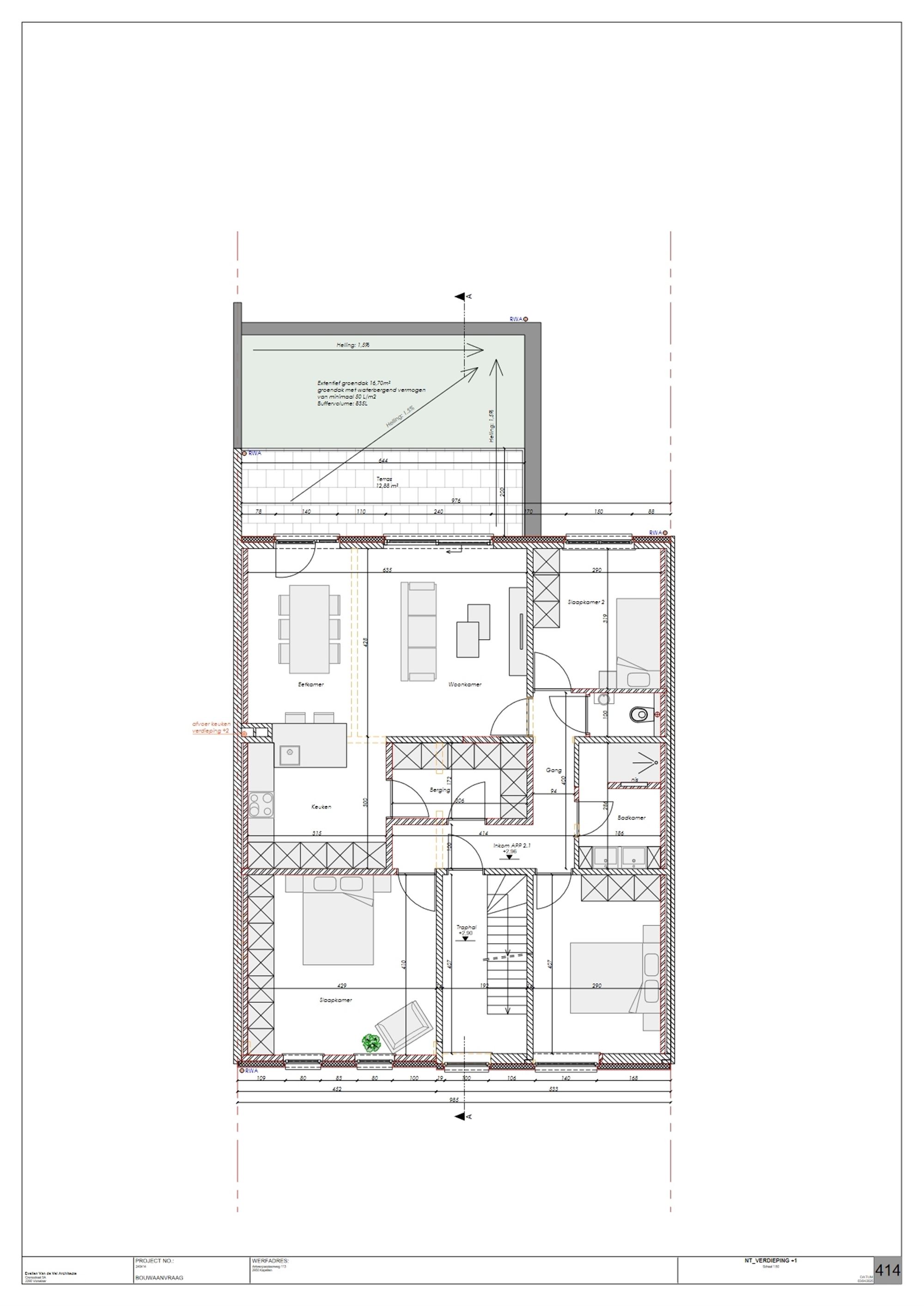
De residentie omvat drie ruime appartementen (100m²), welke met de nodige zorg en kwalitatief zullen worden afgewerkt. Vloerverwarming, ventilatiesysteem C+, zonnepanelen, (elektrische) rolluiken, ...
Het appartement op het tweede verdieping omvat: inkomhal, berging, badkamer, apart toilet, open keuken, leefruimte en drie slaapkamers.
Verder beschikt het appartement ook over een ruim terras (15m²).
Samen met het appartement dient er een garagebox te worden aangekocht in het achtergelegen garagecomplex, welke rechtstreeks toegankelijk zal zijn vanuit de tuin. Prijs: € 30.000,00.
Het betreft hier geen nieuwbouw, maar wel een vernieuwbouw. Dit betekent dat de aankoop kan geschieden onder het stelsel van de registratiebelasting. Komt U in aanmerking voor het tarief enige eigen woning, dan betaalt U slechts twee procent (2%) registratiebelasting.
Is uw interesse gewekt? Wel, dan hoor ik graag van U.
Lastenboek en plannen beschikbaar op kantoor.
Financieel
Gebouw
Terrein
Indeling
Energie
Ruimtelijke ordening
Locatie
Antwerpsesteenweg 113 V2, 2950 Kapellen385.000 EUR
Locatie
Antwerpsesteenweg 113 V2
2950 Kapellen
Is dit haalbaar voor jou?
Liever een voorstel op maat?
Vertel meer over je project en je persoonlijke situatie en KBC berekent je persoonlijke rentevoet. Je ontvangt onmiddellijk feedback of je lening haalbaar is en je kunt je aanvraag volledig digitaal afronden. Zelfs als je geen KBC-klant bent.













