Scoop: Huis te koop in Boutersem met 4 slaapkamers
€ 648.812
Is dit haalbaar voor jou?Omschrijving
Ruime nieuwbouwwoning te Boutersem met zicht op het achterliggend groen
Deze bouwgrond is rustig gelegen in een eenrichtingsstraat te Boutersem, in een groene omgeving. Het perceel biedt de ideale kans om uw droomwoning te realiseren.
Het perceel heeft een prachtig uitzicht het achtergelegend groen, dit in combinatie met de goede oriëntatie maakt dit een ideale plek om te bouwen.
Het perceel ingeschikt voor het bouwen van een open bebouwing.
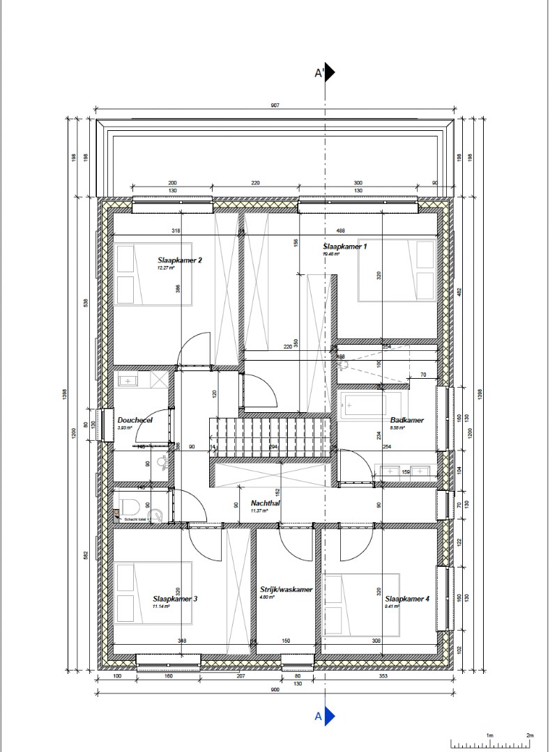
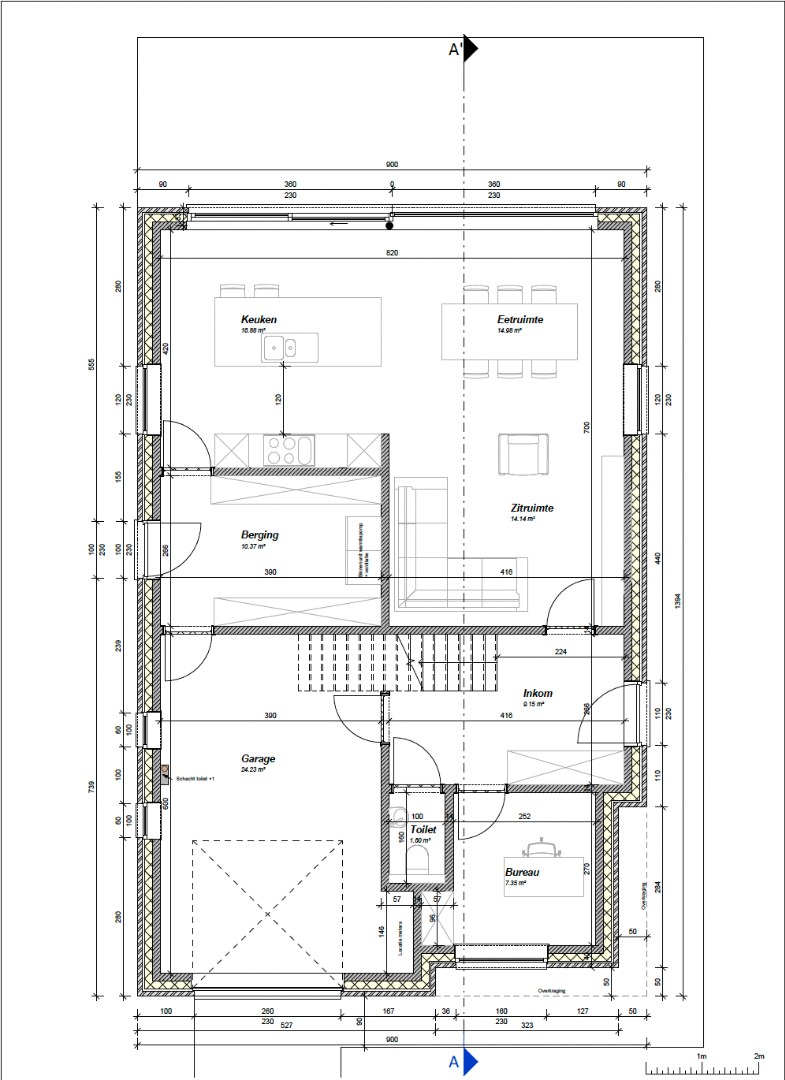
Er werden reeds plannen getekend voor een woning, deze kan u bij de foto's vinden.
De nutsvoorzieningen zijn reeds aanwezig.
Voor meer informatie, contacteer ons gerust!
Het perceel heeft een prachtig uitzicht het achtergelegend groen, dit in combinatie met de goede oriëntatie maakt dit een ideale plek om te bouwen.
Het perceel ingeschikt voor het bouwen van een open bebouwing.
Er werden reeds plannen getekend voor een woning, deze kan u bij de foto's vinden.
De nutsvoorzieningen zijn reeds aanwezig.
Voor meer informatie, contacteer ons gerust!
Financieel
Beschikbaarheid
Vanaf akte
Gebouw
Type pand
Huis
Subtype
Villa
Bewoonbare oppervlakte
230 m²
Terrein
Perceeloppervlakte
1.092 m²
Meest recente bestemming terrein
Woongebied
Tuin
Ja
Ligging
Openbaar vervoer nabij
Ja
Autosnelweg nabij
Ja
School nabij
Ja
Indeling
Aantal slaapkamers
4
Aantal badkamers
2
Keuken
Ja
Comfort
Aansluiting elektriciteit
Ja
Energie
Type beglazing
Hoogrendementsglas
Ruimtelijke ordening
Dagvaarding
Geen rechterlijke herstelmaatregel of bestuurlijke maatregel opgelegd
Bouwvergunning
Nee
Verkavelingsvergunning
Ja
Locatie
Moffelstraat 20, 3370 Boutersem648.812 EUR
Locatie
Moffelstraat 20
3370 Boutersem















