Huis te koop in Tielt-Winge met 3 slaapkamers
€ 572.500
Is dit haalbaar voor jou?Omschrijving
Comfortabel wonen in het centrum van Meensel-Kiezegem in een vrijstaande nieuwbouwwoning van het project Kapellekensweg. De woning wordt gebouwd volgens traditionele bouwwijze (o.a. binnenmuren in snelbouw van 14 cm) en heeft een tijdloze architectuur in pastorie-stijl.
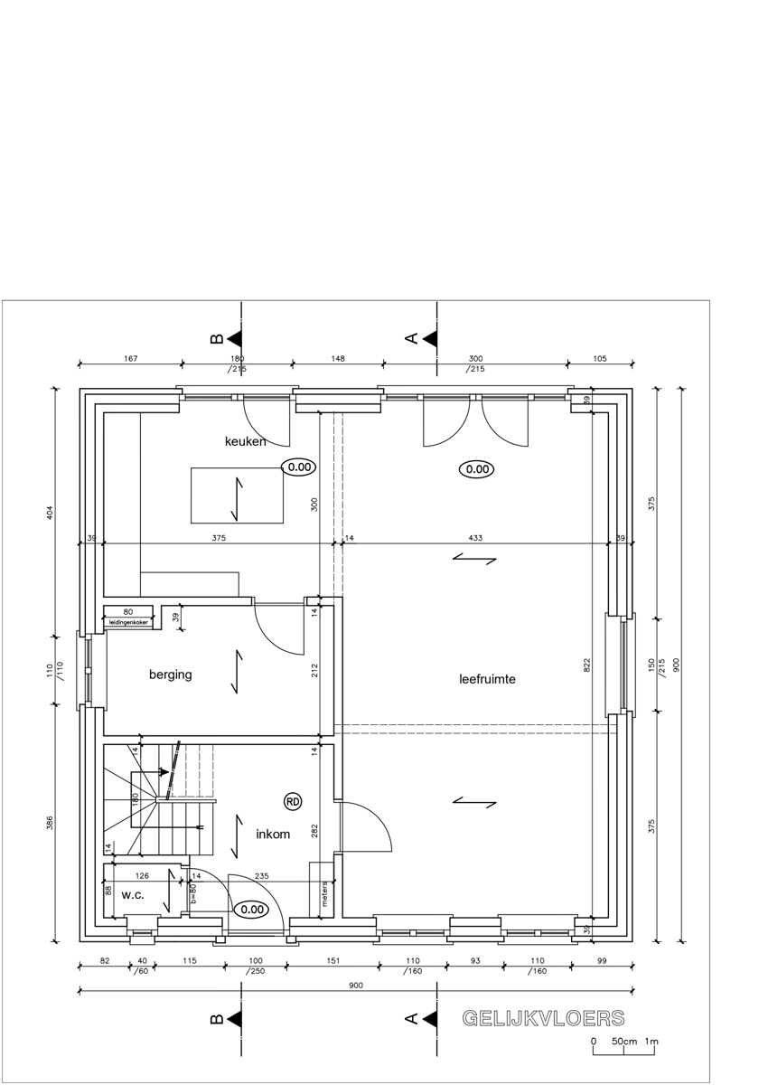
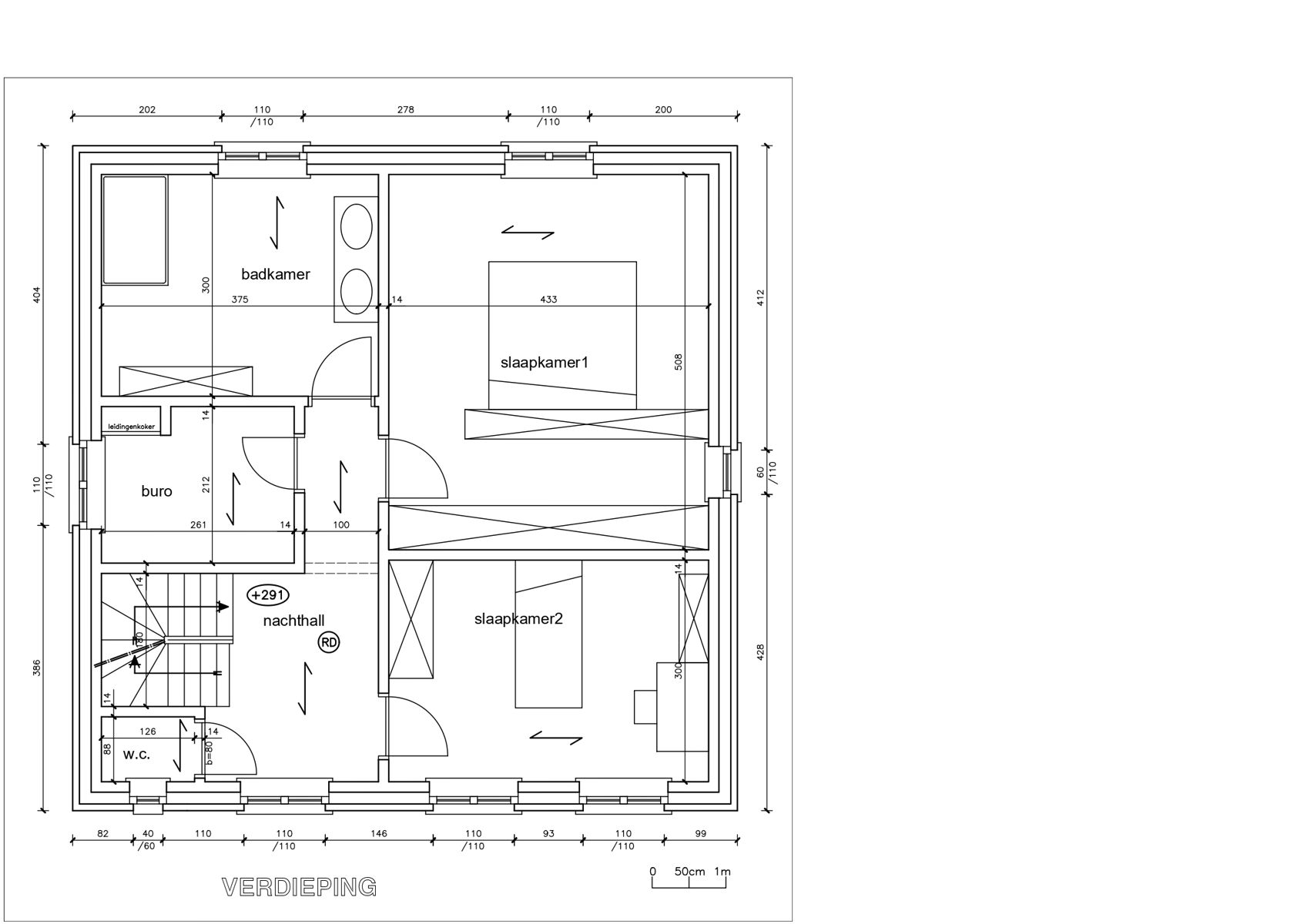
De woning beschikt op het gelijkvloers over een inkomhal met gastentoilet, een ruime en lichtrijke leefruimte met open keuken en een praktische berging. De verdieping telt 2 volwaardige slaapkamers, een badkamer en een apart toilet. De zolderverdieping biedt bovendien de mogelijkheid om extra kamers of een hobbyruimte te creëren.
Dankzij de centrale ligging bevinden school, dorpscentrum en openbaar vervoer zich in de directe omgeving. Bovendien is er een vlotte verbinding richting Leuven, wat deze woning tot een ideale uitvalsbasis maakt.
Interesse? Contacteer ons vandaag nog voor meer informatie, plannen of een afspraak.
Financieel
Onder constructie
Ja
Gebouw
Type pand
Huis
Subtype
Eengezinswoning
Bewoonbare oppervlakte
200 m²
Terrein
Perceeloppervlakte
951 m²
Indeling
Aantal slaapkamers
3
Oppervlakte slaapkamers
22 m²; 12 m²
Aantal badkamers
1
Comfort
Aansluiting water
Ja
Energie
Type verwarming
Warmtepomp
Ruimtelijke ordening
G(ebouw)-score
A (geen overstroming gemodelleerd)
P(erceel)-score
A (geen overstroming gemodelleerd)
Locatie
Kapellekensweg 61, 3391 Tielt-WingeIs dit haalbaar voor jou?
Minimale eigen inbreng
-EUR
Maandlast
-EUR/maand
Liever een voorstel op maat?
Vertel meer over je project en je persoonlijke situatie en KBC berekent je persoonlijke rentevoet. Je ontvangt onmiddellijk feedback of je lening haalbaar is en je kunt je aanvraag volledig digitaal afronden. Zelfs als je geen KBC-klant bent.














