Grond te koop in Kortenaken
Omschrijving
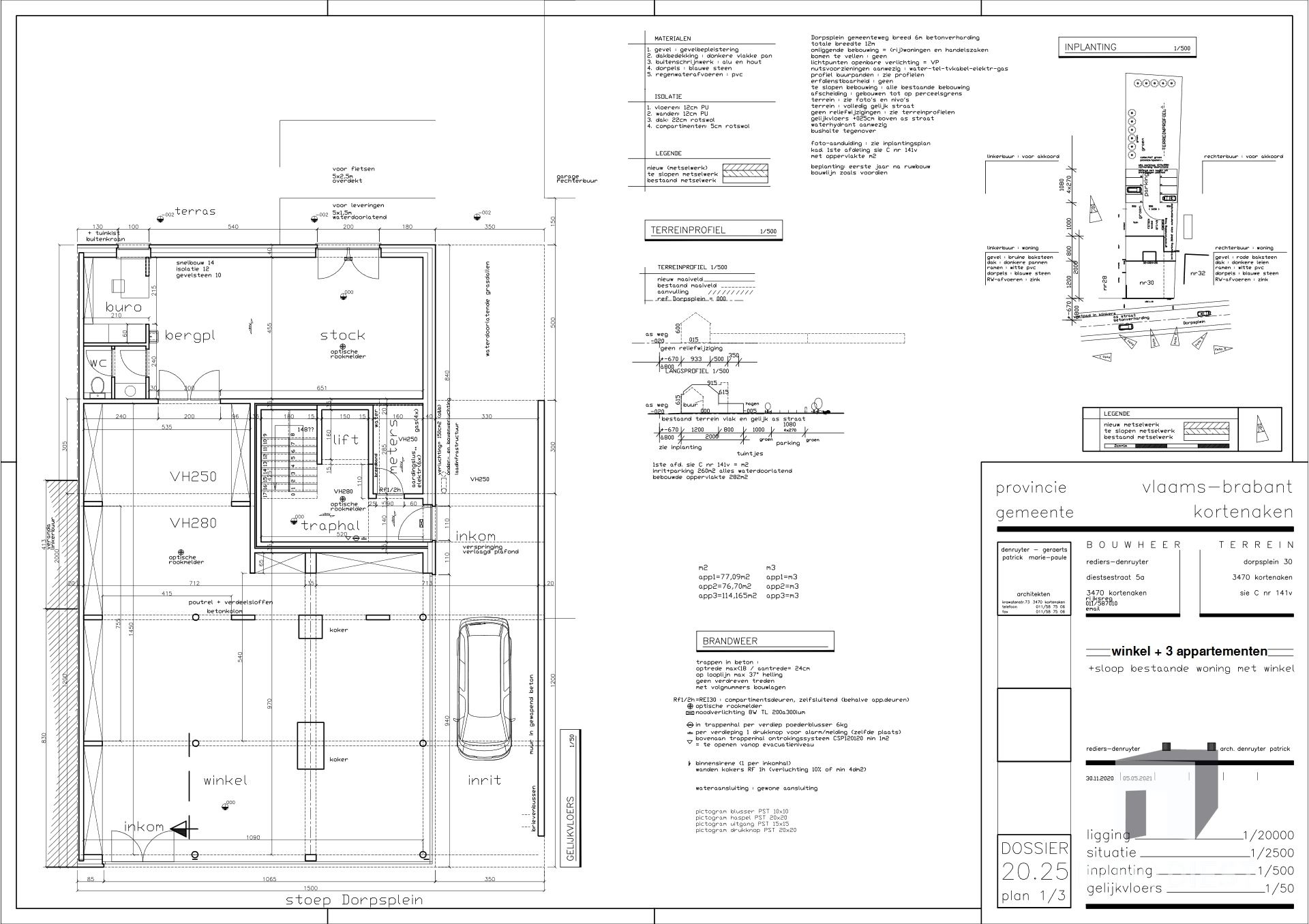
Projectgrond (12a 73ca) in hartje Kortenaken – potentieel voor 4 topappartementen
Zelden komt er in Kortenaken een ontwikkelingskans op de markt die zó logisch klopt.
Aan een centrumlocatie (alles op wandelafstand) bieden we een projectgrond van 12,73 are aan met een voorgevellijn van ca. 15 meter: ideaal voor wie snel en doordacht een nieuwbouwproject wil realiseren met sterke afzetbaarheid én verhuurpotentieel.
Voor deze site was eerder een vergunning voorzien voor een ruime gelijkvloerse handels-/winkelruimte met daarboven 3 appartementen ( 1ste verdieping: 2 appartementen, 2de verdieping: 1 penthouse )
Achteraan zijn staanplaatsen en een fietsenberging voorzien – exact wat de hedendaagse koper/huurder verwacht.
De vergunning werd destijds niet uitgevoerd, maar het belangrijkste blijft: het project is opnieuw vergunbaar (onder voorbehoud van heraanvraag) en de invulling is perfect te hernemen of te optimaliseren.
Liever residentieel in plaats van retail? Ook dat is realistisch: conform de mogelijkheden binnen Ruimtelijke Ordening Kortenaken kan het gelijkvloers (in plaats van handelsruimte) ingevuld worden als een groot gelijkvloers appartement met tuin. Een indeling die vandaag bijzonder goed scoort bij kopers die gelijkvloers wonen willen combineren met buitenruimte.
Er is grondsondering aanwezig en bouwen kan met een vloerplaat. Dat betekent: geen nutteloze kelderruimte, minder complexiteit en vaak een efficiëntere koststructuur tijdens de realisatie. Kortom: slim ontwikkelen zonder ballast.
Dit is een goede investering of een goed project.
Kortenaken kent zeer weinig aanbod van kwalitatieve nieuwbouwappartementen. De vraag komt bovendien sterk uit de eigen regio: lokale bewoners die willen “downsizen” van een landelijke woning naar een comfortabel appartement in het centrum – met lift en terras en parking.
Interessant voor investeerders en projectontwikkelaars die mikken op een vlotte verkoop, sterke eindgebruikersvraag of een stabiel verhuurprofiel.
Interesse in het dossier en de mogelijkheden? Neem contact op met Immo Diest voor plannen, toelichting en de vergunningscontext.
Als beroepsverkoper koop je aan 4% registratierechten.
Neem contact op met Immo Diest voor het vergunningsdossier, plannen en verdere toelichting.
info@immodiest.be - jan.vanonckelen@immodiest.be
013 31 25 22 - 0498 52 64 52
Financieel
Gebouw
Terrein
Ligging
Comfort
Ruimtelijke ordening
Locatie
Dorpsplein 30, 3470 KortenakenIs dit haalbaar voor jou?
Liever een voorstel op maat?
Vertel meer over je project en je persoonlijke situatie en KBC berekent je persoonlijke rentevoet. Je ontvangt onmiddellijk feedback of je lening haalbaar is en je kunt je aanvraag volledig digitaal afronden. Zelfs als je geen KBC-klant bent.












