Huis te koop in Zonhoven met 3 slaapkamers
€ 426.329
Is dit haalbaar voor jou?Omschrijving
Nieuwbouwwoning Heikensstraat Lot 1 3520 Zonhoven
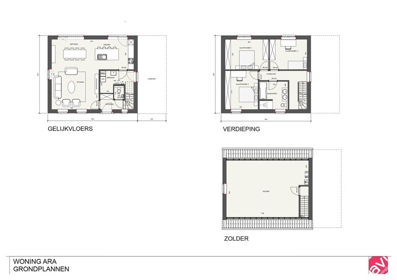
In de rustige Heikensstraat in Zonhoven vinden we deze knappe open bebouwing in een landelijke bouwstijl terug. De voorgestelde woning (157m2) van AVL bestaat uit 3 slaapkamers met de mogelijkheid om verder uit te breiden op zolder (58m2) voor wie extra kamers wenst. Op het gelijkvloers vinden we naast een inkomhal met gastentoilet ook een open zithoek, eethoek en keuken met eiland terug en aansluitend een praktische bergruimte. Het hoekperceel van 5a 06ca groot kent een gunstige ligging met scholen, openbaar vervoer, winkels, horeca en de E314 in de directe omgeving. Dankzij de zuidoostelijke oriëntatie kan men hier optimaal genieten van de zon. Deze woning is voorzien van een doorgedreven isolatiepakket en de meest recente technieken zoals een warmtepomp (lucht-water), ventilatie D+ systeem, vloerverwarming en zonnepanelen, waardoor we een A+ energielabel (max. E0) kunnen garanderen. Hiermee bent u dus klaar voor de toekomst!
De voorgestelde woning kan nog aangepast worden naar de wensen van de koper. Zo behoort een moderne woning met een plat dak ook tot de mogelijkheden. Contacteer bouwadviseur Michiel gerust voor meer info 011/450 280. Dit project realiseren we in samenwerking met Empresa Consult.
SLEUTEL-OP-DE-DEURAFWERKING
Ruwbouw winddicht
Sanitaire leidingen (inclusief hergebruik van regenwater)
Elektriciteit
verwarming via warmtepomp met vloerverwarming
Pleisterwerken
Isolatiewerken en chape
EPB berekening
Ventilatiesysteem D+
Kostprijs architect en veiligheidscoördinatie inclusief
Zonnepanelen
keuken
Sanitaire toestellen
Tegelvloeren op het gelijkvloers en in de badkamer
Binnendeuren in grondlaag
trap in hout
Voegwerken
PRIJS SLEUTEL OP DE DEUR
€ 426 329 excl. alle kosten op grond en constructie
€ 506 918 incl. alle kosten op grond en constructie
De voorgestelde woning kan nog aangepast worden naar de wensen van de koper. Zo behoort een moderne woning met een plat dak ook tot de mogelijkheden. Contacteer bouwadviseur Michiel gerust voor meer info 011/450 280. Dit project realiseren we in samenwerking met Empresa Consult.
SLEUTEL-OP-DE-DEURAFWERKING
Ruwbouw winddicht
Sanitaire leidingen (inclusief hergebruik van regenwater)
Elektriciteit
verwarming via warmtepomp met vloerverwarming
Pleisterwerken
Isolatiewerken en chape
EPB berekening
Ventilatiesysteem D+
Kostprijs architect en veiligheidscoördinatie inclusief
Zonnepanelen
keuken
Sanitaire toestellen
Tegelvloeren op het gelijkvloers en in de badkamer
Binnendeuren in grondlaag
trap in hout
Voegwerken
PRIJS SLEUTEL OP DE DEUR
€ 426 329 excl. alle kosten op grond en constructie
€ 506 918 incl. alle kosten op grond en constructie
Gebouw
Type pand
Huis
Subtype
Huis
Bewoonbare oppervlakte
215 m²
Terrein
Perceeloppervlakte
502 m²
Indeling
Aantal slaapkamers
3
Aantal badkamers
1
Aantal toiletten
0
Comfort
Lift
Nee
Energie
E-peil
0
Zonnepanelen
Ja
Vloerverwarming
Ja
Locatie
Heikensstraat, 3520 ZonhovenIs dit haalbaar voor jou?
Minimale eigen inbreng
-EUR
Maandlast
-EUR/maand
Liever een voorstel op maat?
Vertel meer over je project en je persoonlijke situatie en KBC berekent je persoonlijke rentevoet. Je ontvangt onmiddellijk feedback of je lening haalbaar is en je kunt je aanvraag volledig digitaal afronden. Zelfs als je geen KBC-klant bent.















