Grond te koop in Diepenbeek
€ 140.000
Is dit haalbaar voor jou?Omschrijving
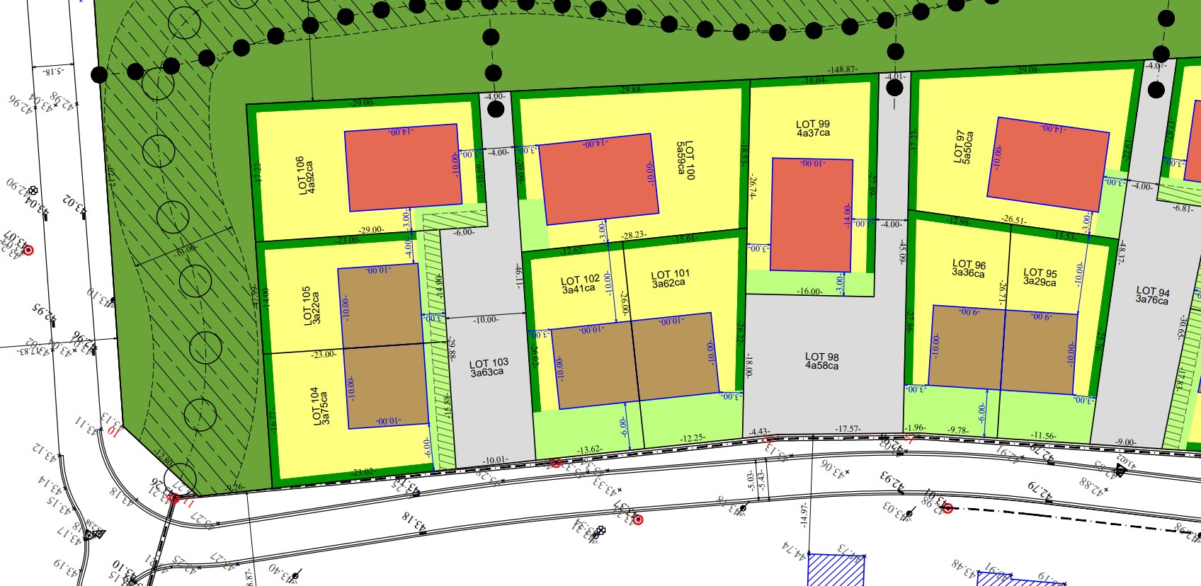
Bouwgrond LOT 97 - Ter Dauten
Lot 97 betreft een bouwperceel van 5a 50ca, bestemd voor openbebouwing. Dit lot is gelegen op de Sint-Barbarastraat te Diepenbeek.
De gemiddelde perceelbreedte bedraagt 19m en de gemiddelde perceeldiepte 27m.
Interesse? Neem gerust contact op met ons kantoor voor bijkomende inlichtingen op het nummer 011 80 00 00 of via info@vestio.com
De gemiddelde perceelbreedte bedraagt 19m en de gemiddelde perceeldiepte 27m.
Interesse? Neem gerust contact op met ons kantoor voor bijkomende inlichtingen op het nummer 011 80 00 00 of via info@vestio.com
Financieel
Verkoop onder btw-stelsel
Ja
Gebouw
Type pand
Grond
Subtype
Bouwgrond
Nieuw gebouw
Ja
Terrein
Perceeloppervlakte
550 m²
Meest recente bestemming terrein
Woonuitbreidingsgebied
Indeling
Aantal slaapkamers
0
Aantal badkamers
0
Aantal toiletten
0
Comfort
Lift
Nee
Energie
E-peil
0
Keuringsattest elektriciteit
Ja, niet conform
Ruimtelijke ordening
Verkavelingsvergunning
Ja
Voorkooprecht
Nee
Overstromingsgevoelig gebied
Mogelijk overstromingsgevoelig gebied
Locatie
Sint-Barbarastraat 190, 3590 Diepenbeek140.000 EUR
Locatie
Sint-Barbarastraat 190
3590 Diepenbeek











