Huis te koop in Kinrooi met 3 slaapkamers
Omschrijving
HOB in casco plus met 3 slpk. vlakbij centrum Kinrooi.
Vlakbij het centrum van Kinrooi wordt aan de Processieweg een stijlvol woonproject gerealiseerd, bestaande uit 2 halfopen bebouwingen en 1 open bebouwing. Lot 3 omvat een ruime halfopen bebouwing op een perceel van 04a 23ca met een bewoonbare oppervlakte van ± 140 m². Deze stijlvolle woning is voorzien van 3 slaapkamers, een ruime badkamer en twee aparte toiletten. De herenwoning wordt voorzien van aluminium ramen met dubbele beglazing. Daarnaast beschik je hier over een tuin met een praktisch formaat. Omwille van het feit dat de woning casco plus opgeleverd wordt heb je bovendien de vrijheid om je nieuwe thuis verder naar jouw eigen smaak en voorkeur af te werken. Ook is er de mogelijkheid om een carport aan te bouwen. De vergunning hiervoor is alvast in orde gemaakt. Alle mogelijkheden liggen nog voor jou open!
Het casco plus pakket omvat: sanitair met een basispakket toestellen, aanleg elektriciteit met afwerking, EPS, chape, pleisterwerken en gyplat zolder. Meer info vind je in het hier bijvoegde lastenboek.
De Processieweg bevindt zich vlakbij het centrum van Kinrooi. Dagdagelijkse voorzieningen zoals bakker, supermarkten en horeca bevinden zich binnen handbereik. De lagere school en de eerste graad van het secundair onderwijs bevinden zich bovendien op wandelafstand, wat deze woning een extra troef geeft voor gezinnen. Dankzij de uitstekende ligging bereik je in geen tijd steden zoals Bree en Maaseik en zelfs de Nederlandse grens. Wil je graag jouw droomhuis realiseren? Laat het ons weten via 089/47 27 80 of per mail op info@beneca.be. Tot snel!
INDELING:
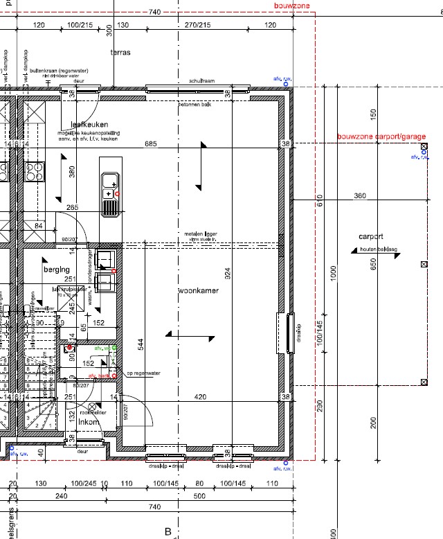
Gelijkvloers: inkomhal (± 4,6 m²), toilet (± 1,8 m²), leefruimte (± 47,2 m²) met open keuken (± 11,8 m²) en berging (± 5,5 m²).
1e verdieping: Overloop/nachthal (± 9,4 m²), slaapkamer 1 (± 19,5 m²), slaapkamer 2 (± 12,3 m²), slaapkamer 3 (± 16,1 m²), toilet (± 1,8 m²) en badkamer (± 10,5 m²).
Zolder: technische ruimte (± 46,5 m²).
PRIJS (Casco plus):
Grondwaarde: € 90.000,-
Reg. Rechten grondwaarde (12% RR): € 10.800,-
Constructiewaarde: € 233.380,-
BTW op constructiewaarde (21% BTW) € 49.009,8,-
TOTALE AANKOOPPRIJS (incl. BTW en registratierechten): € 383.189,8,-
De geadverteerde verkoopprijzen zijn exclusief kosten aansluiting nutsvoorzieningen, notariskosten, erelonen,…
Financieel
Gebouw
Terrein
Ligging
Indeling
Energie
Ruimtelijke ordening
Locatie
Processieweg, 3640 Kinrooi323.380 EUR
Locatie
Processieweg
3640 Kinrooi















