Huis te koop in Mopertingen met 3 slaapkamers
€ 386.000
Is dit haalbaar voor jou?Omschrijving
OPEN MODERNE WONING OP EEN GUNSTIGE LOCATIE
Bent u op zoek naar de perfecte plek om uw droomhuis te bouwen met een goede verbinding naar Maastricht en Bilzen? Zoek niet verder! Deze bouwgrond van bijna 9 are groot is ideaal voor een open bebouwing en biedt voldoende plaats voor een ruime woning met een grote tuin. Het perceel voor open bebouwing kent een oppervlakte van 8a 97ca en heeft een perceelbreedte van 19 meter. Op het gelijkvloers kan er 17 meter diep gebouwd worden en op de verdieping 12 meter diep. Met een gevelbreedte van 9,20 meter kan hier een woning gebouwd worden met een bruto-oppervlakte van 260 m²!
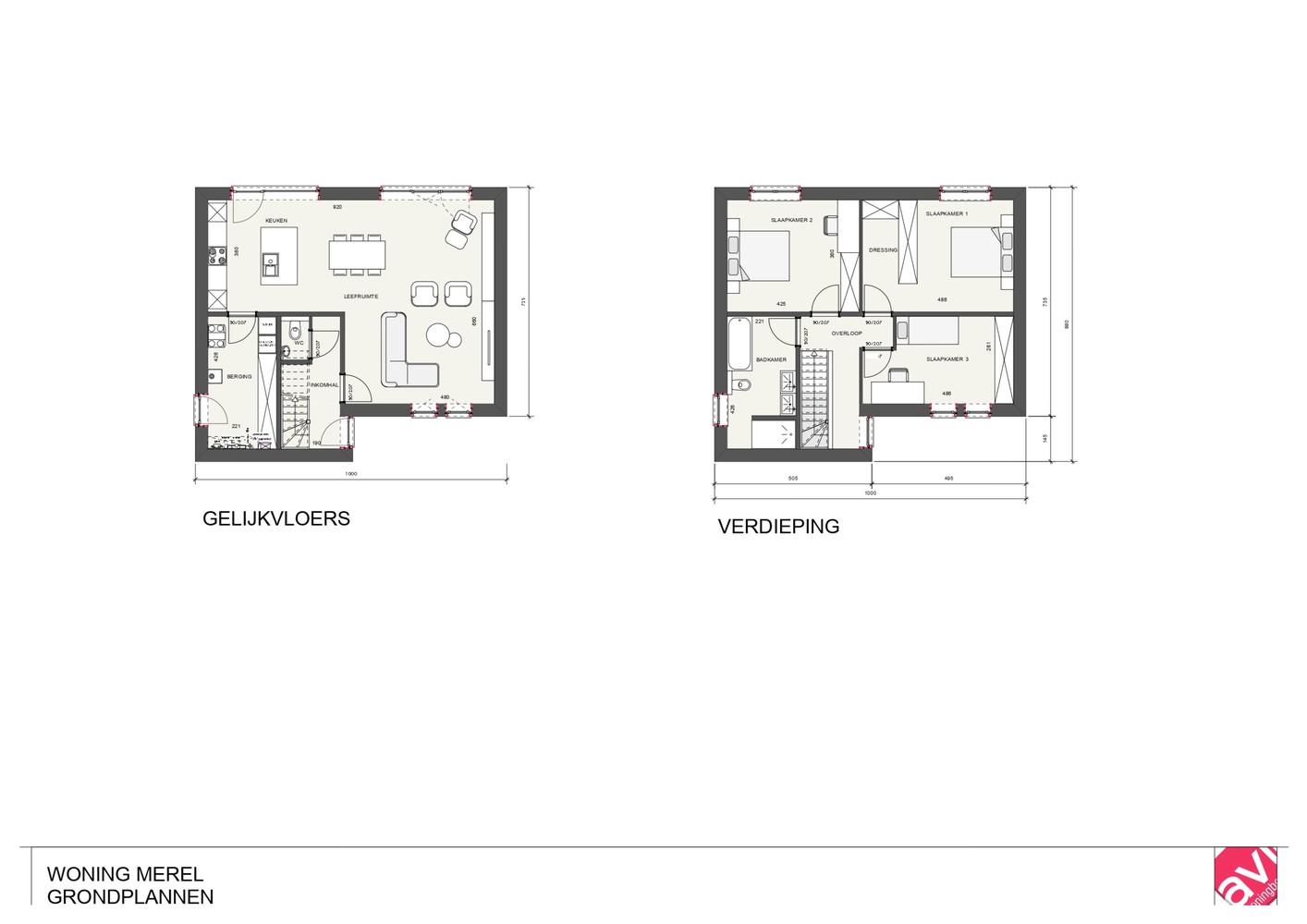
De voorgestelde nog te bouwen moderne woning heeft een oppervlakte van 162 m2. Er is een eet- en zithoek voorzien en een ruime keuken met berging en wasplaats. Ook zijn er 3 slaapkamers en een badkamer met bad/douche voorzien. Warmtepomp, vloerverwarming, zonnepanelen, ventilatie D+ zijn reeds voorzien.
Alle keuzes i.v.m. de afwerking van de woning zijn naar wens bespreekbaar. Ook het ontwerp van de woning is slechts een voorstel en kan volledig met jou op maat uitgewerkt worden. Vanaf casco afwerking biedt de woning je alvast alle zekerheden en garanties en van daaruit kan je zorgeloos verder afwerken. Een volledig afgewerkte woning is natuurlijk ook mogelijk!
Mis deze unieke kans niet om uw droomhuis te bouwen op een ideale locatie! Dit project realiseren we ism met Immopa.be. Meer info ? Bel bouwadviseur Luc op 011/ 450 280 voor een vrijblijvende afspraak.
CASCO AFWERKING
Ruwbouw winddicht
Sanitaire leidingen (inclusief hergebruik van regenwater)
Elektriciteit
Vloerverwarming en warmtepomp
Pleisterwerken
Isolatiewerken en chape
EPB berekening
Ventilatiesysteem D+
8 zonnepanelen
Kostprijs architect en veiligheidscoördinatie inclusief
SLEUTEL OP DE DEUR
casco afwerking
Afgewerkte keuken
Sanitaire toestellen
Tegelvloeren op het gelijkvloers en in de badkamer
Binnendeuren
Voegwerken
Trap in rubberwood
PRIJS CASCO
€ 386 000 excl. alle kosten op grond en constructie
€ 472 000 incl. alle kosten op grond en constructie
PRIJS SLEUTEL OP DE DEUR
€ 411 000 excl. alle kosten op grond en constructie
€ 505 000 incl. alle kosten op grond en constructie
De voorgestelde nog te bouwen moderne woning heeft een oppervlakte van 162 m2. Er is een eet- en zithoek voorzien en een ruime keuken met berging en wasplaats. Ook zijn er 3 slaapkamers en een badkamer met bad/douche voorzien. Warmtepomp, vloerverwarming, zonnepanelen, ventilatie D+ zijn reeds voorzien.
Alle keuzes i.v.m. de afwerking van de woning zijn naar wens bespreekbaar. Ook het ontwerp van de woning is slechts een voorstel en kan volledig met jou op maat uitgewerkt worden. Vanaf casco afwerking biedt de woning je alvast alle zekerheden en garanties en van daaruit kan je zorgeloos verder afwerken. Een volledig afgewerkte woning is natuurlijk ook mogelijk!
Mis deze unieke kans niet om uw droomhuis te bouwen op een ideale locatie! Dit project realiseren we ism met Immopa.be. Meer info ? Bel bouwadviseur Luc op 011/ 450 280 voor een vrijblijvende afspraak.
CASCO AFWERKING
Ruwbouw winddicht
Sanitaire leidingen (inclusief hergebruik van regenwater)
Elektriciteit
Vloerverwarming en warmtepomp
Pleisterwerken
Isolatiewerken en chape
EPB berekening
Ventilatiesysteem D+
8 zonnepanelen
Kostprijs architect en veiligheidscoördinatie inclusief
SLEUTEL OP DE DEUR
casco afwerking
Afgewerkte keuken
Sanitaire toestellen
Tegelvloeren op het gelijkvloers en in de badkamer
Binnendeuren
Voegwerken
Trap in rubberwood
PRIJS CASCO
€ 386 000 excl. alle kosten op grond en constructie
€ 472 000 incl. alle kosten op grond en constructie
PRIJS SLEUTEL OP DE DEUR
€ 411 000 excl. alle kosten op grond en constructie
€ 505 000 incl. alle kosten op grond en constructie
Gebouw
Type pand
Huis
Subtype
Huis
Bewoonbare oppervlakte
162 m²
Terrein
Perceeloppervlakte
897 m²
Indeling
Aantal slaapkamers
3
Aantal badkamers
1
Aantal toiletten
0
Comfort
Lift
Nee
Energie
E-peil
0
Zonnepanelen
Ja
Vloerverwarming
Ja
Locatie
Redemptiestraat, 3740 MopertingenIs dit haalbaar voor jou?
Minimale eigen inbreng
-EUR
Maandlast
-EUR/maand
Liever een voorstel op maat?
Vertel meer over je project en je persoonlijke situatie en KBC berekent je persoonlijke rentevoet. Je ontvangt onmiddellijk feedback of je lening haalbaar is en je kunt je aanvraag volledig digitaal afronden. Zelfs als je geen KBC-klant bent.








