Grond te koop in Riemst
€ 104.000
Is dit haalbaar voor jou?Omschrijving
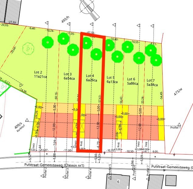
HALFOPEN BOUWGROND VAN 6A 26CA OP EEN TOPLOCATIE TE RIEMST !
HALFOPEN BOUWGROND VAN 6A 26CA OP EEN TOPLOCATIE TE RIEMST !
We vinden deze halfopen bouwgrond van 6a 26ca terug te Riemst.
Voor meer informatie, neem zeker een kijkje op onze website via de volgende link:
https://www.sterkvastgoedmakelaars.be/detail/te-koop-grond-riemst/7373656?dosearch=True&flowstatus=ForSale,ForSaleReserved,ForSaleWithBid,ToCompleteForSale,SoldUnderReserve,Sold&pageindex=1&pagesize=12&searchpage=ForSale&sortdirection=DESC&sortfield=pub_flowstatus&transactiontype=Sale
We vinden deze halfopen bouwgrond van 6a 26ca terug te Riemst.
Voor meer informatie, neem zeker een kijkje op onze website via de volgende link:
https://www.sterkvastgoedmakelaars.be/detail/te-koop-grond-riemst/7373656?dosearch=True&flowstatus=ForSale,ForSaleReserved,ForSaleWithBid,ToCompleteForSale,SoldUnderReserve,Sold&pageindex=1&pagesize=12&searchpage=ForSale&sortdirection=DESC&sortfield=pub_flowstatus&transactiontype=Sale
Financieel
Kadastraal inkomen
6 €
Kadastrale info
Afd 1 Sectie A
Beschikbaarheid
Vanaf akte
Gebouw
Type pand
Grond
Terrein
Perceeloppervlakte
626 m²
Meest recente bestemming terrein
Woongebied
Tuin
Ja
Ligging
Openbaar vervoer nabij
Ja
School nabij
Ja
Winkels nabij
Ja
Ruimtelijke ordening
Dagvaarding
Geen rechterlijke herstelmaatregel of bestuurlijke maatregel opgelegd
Bouwvergunning
Nee
Verkavelingsvergunning
Ja
Locatie
Putstraat 5, 3770 Riemst104.000 EUR
Locatie
Putstraat 5
3770 Riemst













