Commercieel te koop in Sint-Truiden
€ 249.000
Omschrijving
Instapklaar handelspand op toplocatie in bruisend centrum
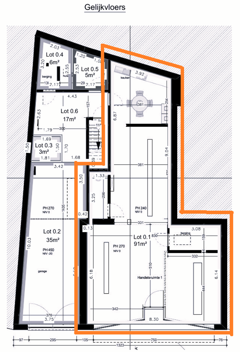
Ontdek dit volledig gerenoveerde handelspand van 91m², gelegen in het hart van de stad – op wandelafstand van de markt en omringd door nieuwe dynamiek dankzij het project ‘Tuin der Broeders’, met bijkomende handelszaken, woningen en een ondergrondse parking.
Het pand werd in 2020 volledig vernieuwd met hoogwaardige materialen en met oog voor detail. Denk aan solid surface-afwerking, duurzame tegelvloeren en op maat gemaakte inbouwkasten die zorgen voor een strakke, moderne uitstraling.
Binnenin vind je een volledig geïnstalleerde keuken, toilet en doucheruimte, wat het pand uiterst polyvalent maakt. Perfect geschikt als kantoor, praktijkruimte of vrij beroep.
Dankzij de centrale ligging in het bruisende stadscentrum profiteer je van maximale zichtbaarheid én bereikbaarheid. De buurt zit duidelijk in de lift, wat dit pand tot een topinvestering maakt — zowel voor eigen gebruik als voor verhuur.
Een extra troef: de huidige eigenaar is bereid om nog even verder te huren na verkoop, wat een onmiddellijk rendement garandeert voor investeerders.
💡 Samengevat:
✅Instapklaar handelspand – 91 m² op toplocatie nabij de markt
✅Volledig gerenoveerd in 2020
✅Hoogwaardige afwerking
✅Ingerichte keuken, toilet en douche
✅Geschikt voor kantoor, praktijk of vrij beroep, handel
✅Buurt in volle ontwikkeling (‘Tuin der Broeders’)
✅Ideale investering
✅Extra parkeermogelijkheden in de buurt
Voor meer info: CENTURY 21 Immo K St-Truiden en Tienen - 016/821778 - info@immok.be
Het pand werd in 2020 volledig vernieuwd met hoogwaardige materialen en met oog voor detail. Denk aan solid surface-afwerking, duurzame tegelvloeren en op maat gemaakte inbouwkasten die zorgen voor een strakke, moderne uitstraling.
Binnenin vind je een volledig geïnstalleerde keuken, toilet en doucheruimte, wat het pand uiterst polyvalent maakt. Perfect geschikt als kantoor, praktijkruimte of vrij beroep.
Dankzij de centrale ligging in het bruisende stadscentrum profiteer je van maximale zichtbaarheid én bereikbaarheid. De buurt zit duidelijk in de lift, wat dit pand tot een topinvestering maakt — zowel voor eigen gebruik als voor verhuur.
Een extra troef: de huidige eigenaar is bereid om nog even verder te huren na verkoop, wat een onmiddellijk rendement garandeert voor investeerders.
💡 Samengevat:
✅Instapklaar handelspand – 91 m² op toplocatie nabij de markt
✅Volledig gerenoveerd in 2020
✅Hoogwaardige afwerking
✅Ingerichte keuken, toilet en douche
✅Geschikt voor kantoor, praktijk of vrij beroep, handel
✅Buurt in volle ontwikkeling (‘Tuin der Broeders’)
✅Ideale investering
✅Extra parkeermogelijkheden in de buurt
Voor meer info: CENTURY 21 Immo K St-Truiden en Tienen - 016/821778 - info@immok.be
Financieel
Verkoop onder btw-stelsel
Nee
Gebouw
Type pand
Commercieel
Subtype
Handelszaak
Bewoonbare oppervlakte
91 m²
Terrein
Perceeloppervlakte
91 m²
Meest recente bestemming terrein
Woongebied met een cult., hist. en/of esthetische waarde
Ligging
Omgeving / buurt
Centraal; Handelsligging
Openbaar vervoer nabij
Ja
Afstand tot openbaar vervoer
50 m
Indeling
Keuken
Ja
Type keuken
Afgewerkte keuken
Toilet
Ja
Comfort
Airconditioning
Ja
Type airconditioning
warm - koud
Videofoon
Ja
Energie
EPC-label
B
Unieke code EPC
20240401-0003196409-RES-1
Vervaldatum EPC
01-04-2034
Ruimtelijke ordening
Bestemming gebouw
Commercieel
Dagvaarding
Nee
Vonnissen
Nee















