Grond te koop in Heers
€ 70.000
Is dit haalbaar voor jou?Omschrijving
Bouwgrond
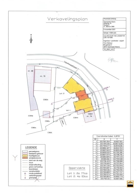
Landelijk gelegen bouwgrond bouwgrond op perceel van 2a 77ca, geschikt
voor een halfopen bebouwing (LOT 1)
Deze bouwgrond met landelijke ligging, is gelegen op een perceel grond van 2a 77ca en
geeft u de mogelijkheid tot het plaatsen van een halfopen bebouwing.
De breedte van dit perceel bedraagt 12m en de diepte 30m.
De bouwvoorschriften zijn aanwezig bij ons op kantoor.
Voor meer informatie of een afspraak kan u ons bereiken op het nummer
012 26 22 05.
Financieel
Kadastrale info
0363/00L
Gebouw
Type pand
Grond
Subtype
Grond
Type bebouwing
Halfopen
Terrein
Perceeloppervlakte
277 m²
Meest recente bestemming terrein
Woongebied
Breedte perceel
12 m
Energie
Keuringsattest elektriciteit
Nee
Ruimtelijke ordening
Kadastraal plan
Ja
Dagvaarding
Geen rechterlijke herstelmaatregel of bestuurlijke maatregel opgelegd
Bouwvergunning
Nee
Locatie
Vechmaallaan, 3870 HeersIs dit haalbaar voor jou?
Minimale eigen inbreng
-EUR
Maandlast
-EUR/maand
Liever een voorstel op maat?
Vertel meer over je project en je persoonlijke situatie en KBC berekent je persoonlijke rentevoet. Je ontvangt onmiddellijk feedback of je lening haalbaar is en je kunt je aanvraag volledig digitaal afronden. Zelfs als je geen KBC-klant bent.













