Huis te koop in Lommel met 3 slaapkamers
€ 377.000
Is dit haalbaar voor jou?Omschrijving
Nieuwbouwwoning Kerkhovensesteenweg Lot 2 3920 Lommel
Op een vlot bereikbare locatie langs de Kerkhovensesteenweg in Lommel ligt dit perceel van 10a77ca met royale afmetingen en een gunstige oriëntatie. De ligging combineert bereikbaarheid met een open woonomgeving, op korte afstand van winkels, scholen en dagelijkse voorzieningen.
Het perceel heeft een straatbreedte van 17,72 meter en een diepte van 67,70 meter, wat zorgt voor een ruimtelijk gevoel en diverse bouwmogelijkheden. De toegelaten bouwbreedte bedraagt 9,82 meter. Op het gelijkvloers kan gebouwd worden tot 17 meter diep, op de verdieping tot 12 meter.
Zowel een plat als een hellend dak is toegestaan. Er geldt geen bouwverplichting, wat flexibiliteit biedt voor wie op eigen tempo wil bouwen of het perceel als investering beschouwt.
De voorgevel is zuidoost georiënteerd en geniet van een aangename lichtinval. De noordwest gerichte tuin biedt dankzij de diepte voldoende ruimte om een zonnige en private buitenomgeving te creëren.
Een bouwgrond met duidelijke voorschriften, mooie proporties en veel potentieel op een gunstige locatie in Lommel.
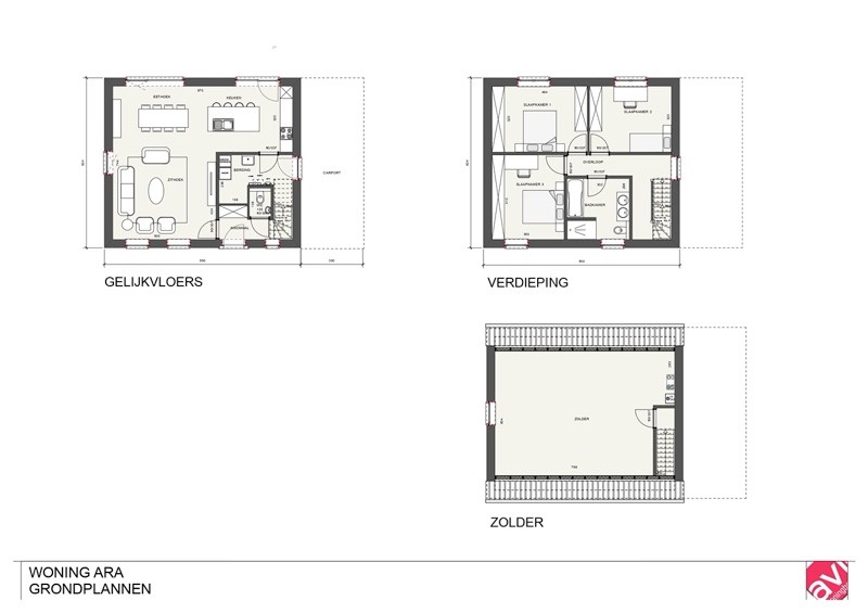
De voorgestelde klassieke woning heeft een oppervlakte van 157m2 + 58m2 zolder. Er is een eet- en zithoek voorzien en een ruime keuken met berging. Boven zijn er alvast 3 slaapkamers en een badkamer met bad/douche. Warmtepomp, vloerverwarming, zonnepanelen, ventilatie D+ zijn reeds voorzien.
Alle keuzes i.v.m. de afwerking van de woning zijn naar wens bespreekbaar. Ook het ontwerp van de woning is slechts een voorstel en kan volledig met jou op maat uitgewerkt worden. Vanaf casco afwerking biedt de woning je alvast alle zekerheden en garanties en van daaruit kan je zorgeloos verder afwerken. Een volledig afgewerkte woning is natuurlijk ook mogelijk!
Dit project wordt aangeboden i.s.m. Nancy Aerts Vastgoed.
Meer info? neem contact op met bouwadviseur Luc via 011/450280
CASCO AFWERKING
Ruwbouw winddicht
Sanitaire leidingen (inclusief hergebruik van regenwater)
Elektriciteit
Vloerverwarming en warmtepomp
Pleisterwerken
Isolatiewerken en chape
EPB berekening
Ventilatiesysteem D+
8 zonnepanelen
Kostprijs architect en veiligheidscoördinatie inclusief
SLEUTEL-OP-DE-DEURAFWERKING
Casco afwerking
Afgewerkte keuken
Sanitaire toestellen
Tegelvloeren op het gelijkvloers en in de badkamer
Binnendeuren
Trap in rubberwood
Voegwerken
PRIJS CASCO
€ 377 000 excl. alle kosten op grond en constructie
€ 464 000 incl. alle kosten op grond en constructie
PRIJS SLEUTEL-OP-DE-DEUR
€ 407 000 excl. alle kosten op grond en constructie
€ 499 000 incl. alle kosten op grond en constructie
Het perceel heeft een straatbreedte van 17,72 meter en een diepte van 67,70 meter, wat zorgt voor een ruimtelijk gevoel en diverse bouwmogelijkheden. De toegelaten bouwbreedte bedraagt 9,82 meter. Op het gelijkvloers kan gebouwd worden tot 17 meter diep, op de verdieping tot 12 meter.
Zowel een plat als een hellend dak is toegestaan. Er geldt geen bouwverplichting, wat flexibiliteit biedt voor wie op eigen tempo wil bouwen of het perceel als investering beschouwt.
De voorgevel is zuidoost georiënteerd en geniet van een aangename lichtinval. De noordwest gerichte tuin biedt dankzij de diepte voldoende ruimte om een zonnige en private buitenomgeving te creëren.
Een bouwgrond met duidelijke voorschriften, mooie proporties en veel potentieel op een gunstige locatie in Lommel.
De voorgestelde klassieke woning heeft een oppervlakte van 157m2 + 58m2 zolder. Er is een eet- en zithoek voorzien en een ruime keuken met berging. Boven zijn er alvast 3 slaapkamers en een badkamer met bad/douche. Warmtepomp, vloerverwarming, zonnepanelen, ventilatie D+ zijn reeds voorzien.
Alle keuzes i.v.m. de afwerking van de woning zijn naar wens bespreekbaar. Ook het ontwerp van de woning is slechts een voorstel en kan volledig met jou op maat uitgewerkt worden. Vanaf casco afwerking biedt de woning je alvast alle zekerheden en garanties en van daaruit kan je zorgeloos verder afwerken. Een volledig afgewerkte woning is natuurlijk ook mogelijk!
Dit project wordt aangeboden i.s.m. Nancy Aerts Vastgoed.
Meer info? neem contact op met bouwadviseur Luc via 011/450280
CASCO AFWERKING
Ruwbouw winddicht
Sanitaire leidingen (inclusief hergebruik van regenwater)
Elektriciteit
Vloerverwarming en warmtepomp
Pleisterwerken
Isolatiewerken en chape
EPB berekening
Ventilatiesysteem D+
8 zonnepanelen
Kostprijs architect en veiligheidscoördinatie inclusief
SLEUTEL-OP-DE-DEURAFWERKING
Casco afwerking
Afgewerkte keuken
Sanitaire toestellen
Tegelvloeren op het gelijkvloers en in de badkamer
Binnendeuren
Trap in rubberwood
Voegwerken
PRIJS CASCO
€ 377 000 excl. alle kosten op grond en constructie
€ 464 000 incl. alle kosten op grond en constructie
PRIJS SLEUTEL-OP-DE-DEUR
€ 407 000 excl. alle kosten op grond en constructie
€ 499 000 incl. alle kosten op grond en constructie
Gebouw
Type pand
Huis
Subtype
Huis
Bewoonbare oppervlakte
157 m²
Terrein
Perceeloppervlakte
1.077 m²
Indeling
Aantal slaapkamers
3
Aantal badkamers
1
Aantal toiletten
0
Comfort
Lift
Nee
Energie
E-peil
0
Locatie
Kerkhovensesteenweg, 3920 LommelIs dit haalbaar voor jou?
Minimale eigen inbreng
-EUR
Maandlast
-EUR/maand
Liever een voorstel op maat?
Vertel meer over je project en je persoonlijke situatie en KBC berekent je persoonlijke rentevoet. Je ontvangt onmiddellijk feedback of je lening haalbaar is en je kunt je aanvraag volledig digitaal afronden. Zelfs als je geen KBC-klant bent.














