Scoop: Grond te koop in Fernelmont
€ 139.500
Is dit haalbaar voor jou?Omschrijving
Helaas, de omschrijving is niet beschikbaar in geselecteerde taal.
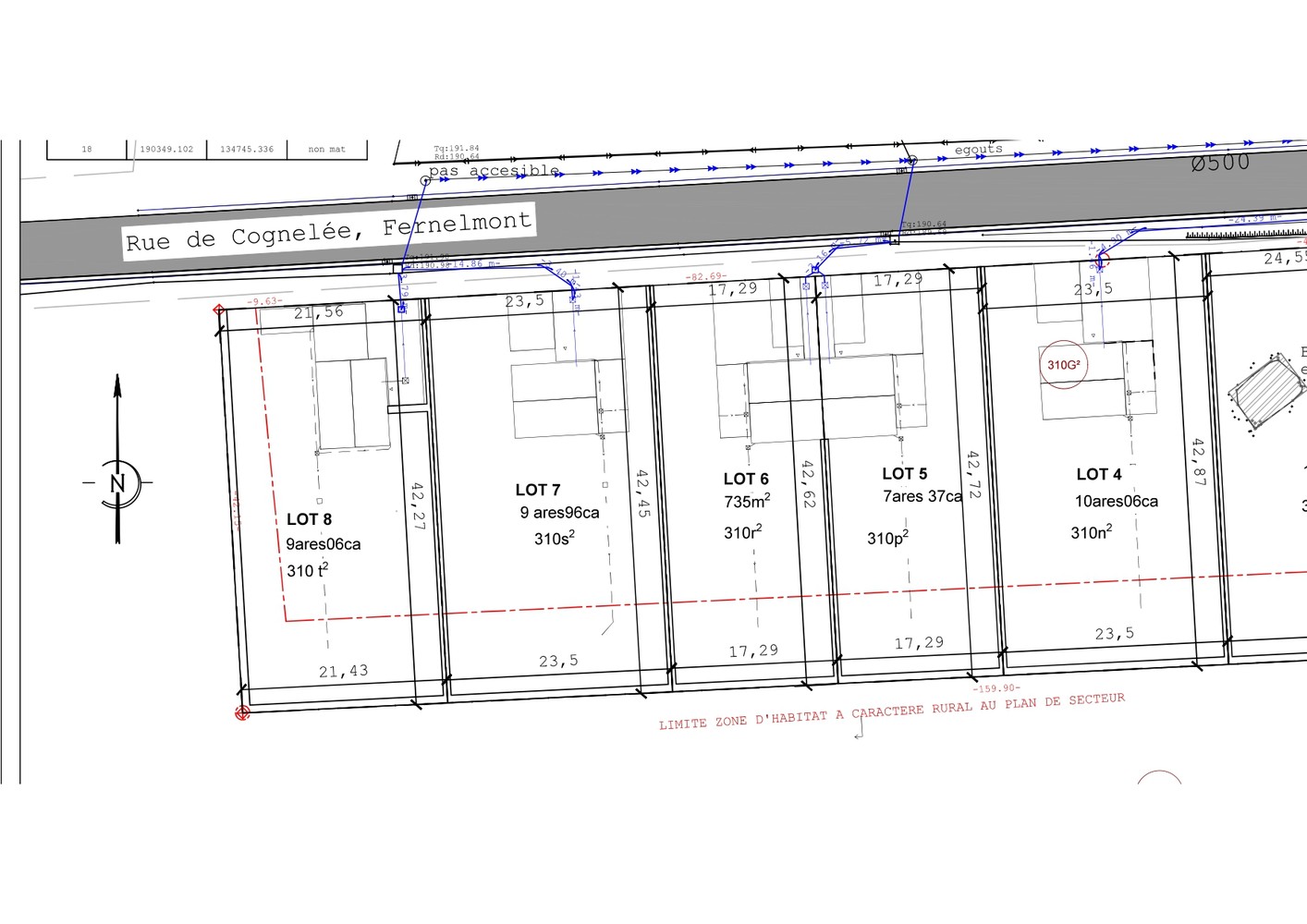
Ce magnifique terrain offre de belles possibilités constructives avec une largeur à front de rue de 23.5 m sur une profondeur de 42.45 m. Les vues tant en façade que côté jardin sont dégagées et verdoyantes.
Il est plat et situé le long de la rue de Cognelée avec un léger surplomb par rapport à la voirie qui a été équipée en 2025 au niveau des impétrants et raccordé à l'égouttage public.
Pour mettre au point votre projet (libre de constructeur) vous devrez tenir compte que ce bien se situe en zone d'habitat à caractère rural.
Vous souhaitez plus d'information ?
📞 Contactez-nous au 010 812 621 ou envoyez un mail à info@durabrik.be.
Il est plat et situé le long de la rue de Cognelée avec un léger surplomb par rapport à la voirie qui a été équipée en 2025 au niveau des impétrants et raccordé à l'égouttage public.
Pour mettre au point votre projet (libre de constructeur) vous devrez tenir compte que ce bien se situe en zone d'habitat à caractère rural.
Vous souhaitez plus d'information ?
📞 Contactez-nous au 010 812 621 ou envoyez un mail à info@durabrik.be.
Financieel
Verkoop onder btw-stelsel
Ja
Gebouw
Type pand
Grond
Subtype
Bouwgrond
Nieuw gebouw
Ja
Terrein
Perceeloppervlakte
996 m²
Meest recente bestemming terrein
Woongebied
Indeling
Aantal slaapkamers
0
Aantal badkamers
0
Aantal toiletten
0
Comfort
Lift
Nee
Ruimtelijke ordening
Verkavelingsvergunning
Ja
Locatie
Rue de Cognelée, 5380 FernelmontIs dit haalbaar voor jou?
Minimale eigen inbreng
-EUR
Maandlast
-EUR/maand
Liever een voorstel op maat?
Vertel meer over je project en je persoonlijke situatie en KBC berekent je persoonlijke rentevoet. Je ontvangt onmiddellijk feedback of je lening haalbaar is en je kunt je aanvraag volledig digitaal afronden. Zelfs als je geen KBC-klant bent.




