Grond te koop in Lessines
€ 190.000
Is dit haalbaar voor jou?Omschrijving
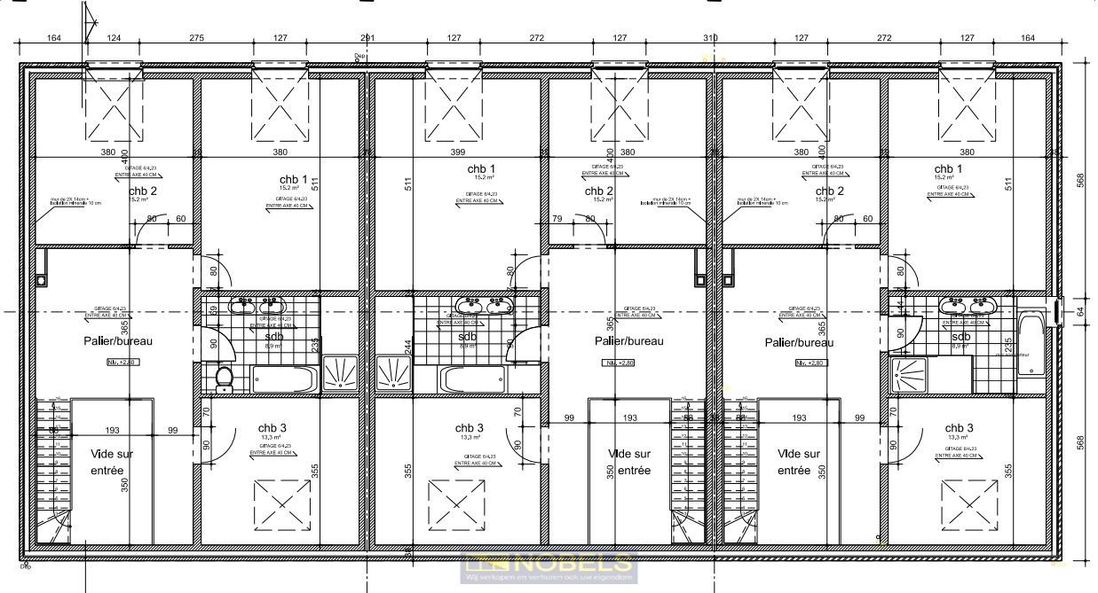
Te koop, projectgrond met vergunde plannen voor 3 woningen te Ghoy
LANDELIJK GELEGEN PROJECTGROND MET VERGUNNING EN VOORBEREIDENDE WERKEN voor DRIE MODERNE NIEUWBOUWWONINGEN op een perceel van totaal 797m² in Ghoy (Lessines). Deze bouwklare site beschikt over een ROYALE STRAATBREEDTE VAN 29,2 METER en biedt dankzij de REEDS UITGEVOERDE VLOERPLAAT een vliegende start voor ontwikkelaars of investeerders die meteen willen bouwen. De grond is IDEAAL ZUIDGEORIËNTEERD voor het realiseren van drie aantrekkelijke woningen in een RUSTIGE, GROENE OMGEVING met vlotte verbindingen naar het CENTRUM VAN LESSINES, GERAARDSBERGEN EN DE E429. Een waardevolle kans om ZONDER VERTRAGING aan de slag te gaan met een KLEINSCHALIG WOONPROJECT IN EEN CHARMANTE OMGEVING.
Adres: Stoquoit naast 10 te Ghoy (Lessines)
Adres: Stoquoit naast 10 te Ghoy (Lessines)
Gebouw
Type pand
Grond
Subtype
Bouwgrond
Bebouwde oppervlakte
300 m²
Terrein
Perceeloppervlakte
797 m²
Meest recente bestemming terrein
Woongebied met landelijk karakter
Oriëntatie tuin
Zuid
Indeling
Aantal slaapkamers
0
Aantal badkamers
0
Aantal toiletten
0
Comfort
Lift
Nee
Energie
E-peil
0
Keuringsattest elektriciteit
Nee
Ruimtelijke ordening
Verkavelingsvergunning
Nee
Voorkooprecht
Nee
As-builtattest
Nee
Locatie
Stoquoit 10 -11, 7860 Lessines190.000 EUR
Locatie
Stoquoit 10 -11
7860 Lessines
Is dit haalbaar voor jou?
Minimale eigen inbreng
-EUR
Maandlast
-EUR/maand
Liever een voorstel op maat?
Vertel meer over je project en je persoonlijke situatie en KBC berekent je persoonlijke rentevoet. Je ontvangt onmiddellijk feedback of je lening haalbaar is en je kunt je aanvraag volledig digitaal afronden. Zelfs als je geen KBC-klant bent.















