Appartement te koop in Oostende
€ 369.000
Is dit haalbaar voor jou?Omschrijving
Volledig vernieuwd gebouw met 2 ruime, stijlvolle appartementen – stadsrand Oostende
Op een rustige en goed bereikbare locatie aan de stadsrand van Oostende vind je dit volledig gerenoveerde gebouw. Elk appartement werd met oog voor detail en kwaliteitsmaterialen vernieuwd, waardoor ze instapklaar zijn en zowel comfort als modern woonplezier bieden.
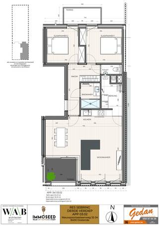
Indeling:
Gelijkvloers appartement + kelder – 135 m² + koer/tuin 7 m²
Extra troeven:
Indeling:
Gelijkvloers appartement + kelder – 135 m² + koer/tuin 7 m²
- 3 slaapkamers, elk met eigen badkamer (totaal 3 badkamers)
- Ruime en lichtrijke leefruimte
- Moderne open keuken met hoogwaardige toestellen
- Koer/tuin ideaal voor buitenontspanning
- Ruime kelderberging
- 3 slaapkamers en 2 badkamers
- Grote leefruimte met veel lichtinval
- Open, volledig ingerichte keuken
- Aangenaam en zonnig terras
Extra troeven:
- Gemeenschappelijke fietsenberging van 15 m²
- Volledig vernieuwd: nieuwe technieken, nieuwe afwerking
- Energiezuinige appartementen met moderne uitstraling
- Centrale ligging nabij winkels, openbaar vervoer en uitvalswegen
- Ideaal als eigen woonst of investeringsvastgoed
Gebouw
Type pand
Appartement
Subtype
Appartement
Bewoonbare oppervlakte
135 m²
Terrein
Meest recente bestemming terrein
Woongebied
Indeling
Aantal slaapkamers
0
Aantal badkamers
0
Aantal toiletten
0
Comfort
Lift
Nee
Gemeubeld
Ja
Aansluiting elektriciteit
Ja
Energie
EPC-score (kWh/(m² jaar))
99
EPC-label
A
E-peil
0
Ruimtelijke ordening
Voorkooprecht
Nee
Beschermd erfgoed
Nee
Locatie
Kaïrostraat 29, 8400 OostendeIs dit haalbaar voor jou?
Minimale eigen inbreng
-EUR
Maandlast
-EUR/maand
Liever een voorstel op maat?
Vertel meer over je project en je persoonlijke situatie en KBC berekent je persoonlijke rentevoet. Je ontvangt onmiddellijk feedback of je lening haalbaar is en je kunt je aanvraag volledig digitaal afronden. Zelfs als je geen KBC-klant bent.















