Garage te koop in Middelkerke
€ 90.000
Is dit haalbaar voor jou?Omschrijving
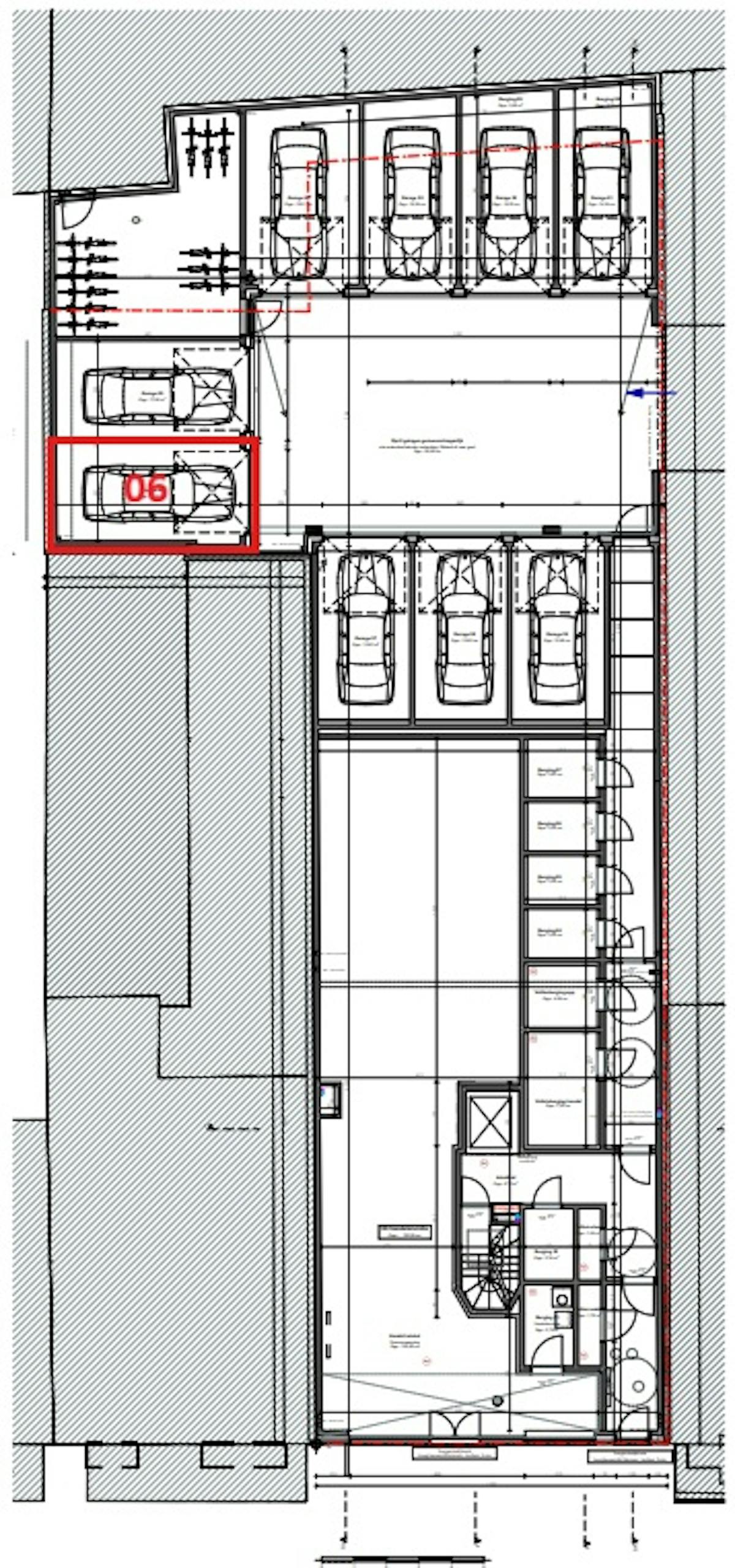
Garagebox te koop in nieuwbouwproject te centrum Middelkerke!
De garagebox (nr. 6) is centraal gelegen in het project residentie Tempête (Paul de Smet de Naeyerstraat 21), met toegang via Gentstraat. De oppervlakte van de garagebox bedraagt 17m². Makkelijk in en uit te rijden en gelegen op een topligging in Middelkerke.Afmetingen:- Diepte: 5.67m- Breedte: 3,01mAlgemeen: - verkoop onder registratie en BTW-stelsel - Stedenbouw: Vg/Wg/Gmo/Gvkr/VvBent u op zoek naar een garagebox te koop, op een centrale locatie te Middelkerke? Contacteer ons kantoor voor meer informatie!
Gebouw
Type pand
Garage / Parkeerplaats
Subtype
Garage
Bouwjaar
2026
Terrein
Meest recente bestemming terrein
Woongebied
Indeling
Aantal slaapkamers
0
Aantal badkamers
0
Aantal toiletten
0
Ruimtelijke ordening
Bouwvergunning
Ja
Voorkooprecht
Nee
G(ebouw)-score
A (geen overstroming gemodelleerd)
Locatie
Paul De Smet De Naeyerstraat 21 G6, 8430 Middelkerke90.000 EUR
Locatie
Paul De Smet De Naeyerstraat 21 G6
8430 Middelkerke
Is dit haalbaar voor jou?
Minimale eigen inbreng
-EUR
Maandlast
-EUR/maand
Liever een voorstel op maat?
Vertel meer over je project en je persoonlijke situatie en KBC berekent je persoonlijke rentevoet. Je ontvangt onmiddellijk feedback of je lening haalbaar is en je kunt je aanvraag volledig digitaal afronden. Zelfs als je geen KBC-klant bent.













