Grond te koop in Avelgem met 6 slaapkamers
€ 174.000
Is dit haalbaar voor jou?Omschrijving
Projectgrond
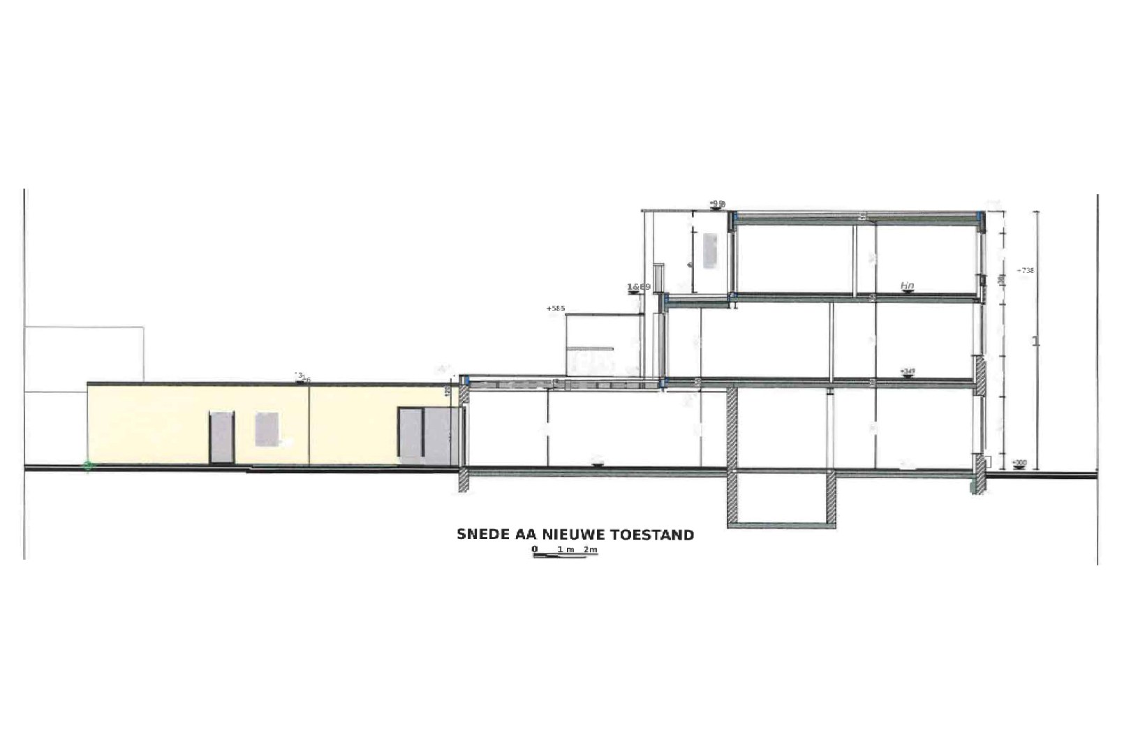
Aan de Doorniksesteenweg in Avelgem vindt u dit gebouw dat gestript werd en klaar is voor heropbouw. Er was een vergunning voor één handelsruimte op het gelijkvloers en 3 appartementen, telkens met 2 slaapkamers en een terras. Het appartement op het gelijkvloers beschikt bovendien over een privatieve tuin. Een handelsruimte is geen verplichting, een aanvraag kan worden ingediend voor 100% residentieel.
Handelszaak = 45m2 + kelder – plafondhoogte van 3,1m.
Appartement 0.1 = 102m2 + 96m2 tuin & 30m2 terras – plafondhoogte van 2,92m.
Appartement 1.1 = 80m2 + 21m2 terras – plafondhoogte van 2,92m.
Appartement 2.1 = 66m2 + 6,4m2 terras – plafondhoogte van 2,6m.
De betonwerken en de riolering voor de aanbouw op het gelijkvloers zijn al uitgevoerd. Wie dit project ziet zitten kan een nieuwe vergunning aanvragen. Achteraan waren 4 parkeerplaatsen en een gemeenschappelijke fietsenstalling voorzien op de plannen.
Als investering voor latere verhuur of herverkoop.
De plannen zijn downloadbaar via onze website of op aanvraag beschikbaar.
Waarom net dit aanbod overwegen?
-> plannen reeds beschikbaar
-> parkeermogelijkheden achteraan
-> handelszaak geen must
-> delen reeds uitgevoerd
-> afbraak ook mogelijk
De prijs is een vanaf-prijs.
Interesse? Neem contact met ons op voor meer informatie of een bezoek– 0471 69 44 30. Attesten & documenten: www.nestr.be
Handelszaak = 45m2 + kelder – plafondhoogte van 3,1m.
Appartement 0.1 = 102m2 + 96m2 tuin & 30m2 terras – plafondhoogte van 2,92m.
Appartement 1.1 = 80m2 + 21m2 terras – plafondhoogte van 2,92m.
Appartement 2.1 = 66m2 + 6,4m2 terras – plafondhoogte van 2,6m.
De betonwerken en de riolering voor de aanbouw op het gelijkvloers zijn al uitgevoerd. Wie dit project ziet zitten kan een nieuwe vergunning aanvragen. Achteraan waren 4 parkeerplaatsen en een gemeenschappelijke fietsenstalling voorzien op de plannen.
Als investering voor latere verhuur of herverkoop.
De plannen zijn downloadbaar via onze website of op aanvraag beschikbaar.
Waarom net dit aanbod overwegen?
-> plannen reeds beschikbaar
-> parkeermogelijkheden achteraan
-> handelszaak geen must
-> delen reeds uitgevoerd
-> afbraak ook mogelijk
De prijs is een vanaf-prijs.
Interesse? Neem contact met ons op voor meer informatie of een bezoek– 0471 69 44 30. Attesten & documenten: www.nestr.be
Financieel
Beschikbaarheid
Vanaf akte
Gebouw
Type pand
Grond
Bewoonbare oppervlakte
293 m²
Staat pand
Te renoveren
Terrein
Perceeloppervlakte
589 m²
Meest recente bestemming terrein
Woongebied
Tuin
Ja
Ligging
Openbaar vervoer nabij
Ja
School nabij
Ja
Winkels nabij
Ja
Indeling
Aantal slaapkamers
6
Kelder
Ja
Comfort
Aansluiting elektriciteit
Ja
Aansluiting riolering
Ja
Aansluiting water
Ja
Energie
EPC-score (kWh/(m² jaar))
1070
EPC-label
F
Unieke code EPC
20191211-0002227482-RES-1
Ruimtelijke ordening
Dagvaarding
Geen rechterlijke herstelmaatregel of bestuurlijke maatregel opgelegd
Bouwvergunning
Ja
Verkavelingsvergunning
Nee
Locatie
Doorniksesteenweg 71, 8580 Avelgem174.000 EUR
Locatie
Doorniksesteenweg 71
8580 Avelgem














