Grond te koop in Koekelare
€ 144.985
Is dit haalbaar voor jou?Omschrijving
Villaperceel lot 2 te koop te Koekelare
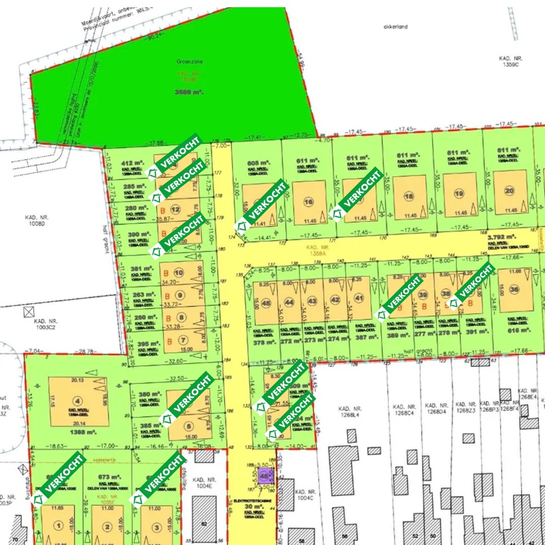
Langs de Hovaerestraat (rechts naast huisnummer 70) in Koekelare realiseren ze deze nieuwe verkaveling waar lot 2 te koop is. Je woont er op een boogscheut van het centrum, op wandelafstand van winkels (supermarkt op 650m, bakkerij op 500m), scholen (basisschool en middelbare school op 1 km) en openbaar vervoer (bushalte op 700m). Even uitwaaien in de natuur? Dat kan in het nabijgelegen Koekelarebos en Arboretum.
In een eerste fase worden 3 bouwgronden voor open bebouwing aangeboden. Deze villapercelen zijn 694 m² (lot 1), 673 m² (lot 2) en 674 m² (lot 3) groot. De grootte van de percelen en de ruime stedenbouwkundige voorschriften (één of twee bouwlagen, vlak of hellend dak) bieden tal van mogelijkheden. Hier bouwen ze jouw nieuwe, energiezuinige woning volledig op maat, tegen een vaste prijs.
Contacteer ons voor meer info of een afspraak. Of vraag jouw gratis inspiratieboek: 250 pagina's boordevol woonideeën.
In een eerste fase worden 3 bouwgronden voor open bebouwing aangeboden. Deze villapercelen zijn 694 m² (lot 1), 673 m² (lot 2) en 674 m² (lot 3) groot. De grootte van de percelen en de ruime stedenbouwkundige voorschriften (één of twee bouwlagen, vlak of hellend dak) bieden tal van mogelijkheden. Hier bouwen ze jouw nieuwe, energiezuinige woning volledig op maat, tegen een vaste prijs.
Contacteer ons voor meer info of een afspraak. Of vraag jouw gratis inspiratieboek: 250 pagina's boordevol woonideeën.
Financieel
Beschikbaarheid
Vanaf akte
Gebouw
Type pand
Grond
Terrein
Perceeloppervlakte
673 m²
Meest recente bestemming terrein
Woongebied
Ligging
Openbaar vervoer nabij
Ja
School nabij
Ja
Winkels nabij
Ja
Ruimtelijke ordening
Dagvaarding
Geen rechterlijke herstelmaatregel of bestuurlijke maatregel opgelegd
Verkavelingsvergunning
Ja
P(erceel)-score
D (middelgrote overstromingskans onder huidig klimaat)
Locatie
Hovaerestraat 68, 8680 Koekelare144.985 EUR
Locatie
Hovaerestraat 68
8680 Koekelare













