Huis te koop in Koekelare met 4 slaapkamers
€ 557.550
Is dit haalbaar voor jou?Omschrijving
Moderne tijdloze vrijstaande woning te koop te Koekelare
Langs de Hovaerestraat (lot 2) in Koekelare realiseren ze deze moderne, tijdloze woning. Je woont er op een boogscheut van het centrum, op wandelafstand van winkels, scholen en openbaar vervoer. Even uitwaaien in de natuur? Dat kan in het nabijgelegen Koekelarebos en Arboretum.
Deze verrassend ruime, energiezuinige nieuwbouwwoning omvat: een inkomhal met toilet, een gelijkvloerse berging, een ruime woon- en eetkamer met veel lichtinval, aansluitend een -naar eigen keuze ingerichte- open keuken, een gelijkvloerse slaapkamer en douchekamer, 3 slaapkamers op de verdieping, een badkamer (met bad, inloopdouche en dubbele wastafel), een afzonderlijk toilet en berging boven. Je kiest zelf de afwerkingsmaterialen voor keuken, badkamer, vloeren en binnendeuren. Zo kan je precies wonen zoals jij het zelf wilt. De woning heeft een ruime tuin om volop te genieten!
Het gebruik van een warmtepomp, in combinatie met vloerverwarming en zonnepanelen zorgt ervoor dat jouw toekomstige energiefactuur onder controle blijft (E10).
Een kijkje nemen? Contacteer ons voor meer informatie.
Deze prijs is exclusief de bijkomende kosten. Op de bouwgrond betaal je registratierechten (12% in Vlaanderen) en ereloon notaris. Op de constructie 21 % btw
Deze verrassend ruime, energiezuinige nieuwbouwwoning omvat: een inkomhal met toilet, een gelijkvloerse berging, een ruime woon- en eetkamer met veel lichtinval, aansluitend een -naar eigen keuze ingerichte- open keuken, een gelijkvloerse slaapkamer en douchekamer, 3 slaapkamers op de verdieping, een badkamer (met bad, inloopdouche en dubbele wastafel), een afzonderlijk toilet en berging boven. Je kiest zelf de afwerkingsmaterialen voor keuken, badkamer, vloeren en binnendeuren. Zo kan je precies wonen zoals jij het zelf wilt. De woning heeft een ruime tuin om volop te genieten!
Het gebruik van een warmtepomp, in combinatie met vloerverwarming en zonnepanelen zorgt ervoor dat jouw toekomstige energiefactuur onder controle blijft (E10).
Een kijkje nemen? Contacteer ons voor meer informatie.
Deze prijs is exclusief de bijkomende kosten. Op de bouwgrond betaal je registratierechten (12% in Vlaanderen) en ereloon notaris. Op de constructie 21 % btw
Financieel
Beschikbaarheid
Vanaf akte
Gebouw
Type pand
Huis
Subtype
Huis
Type bebouwing
Open
Terrein
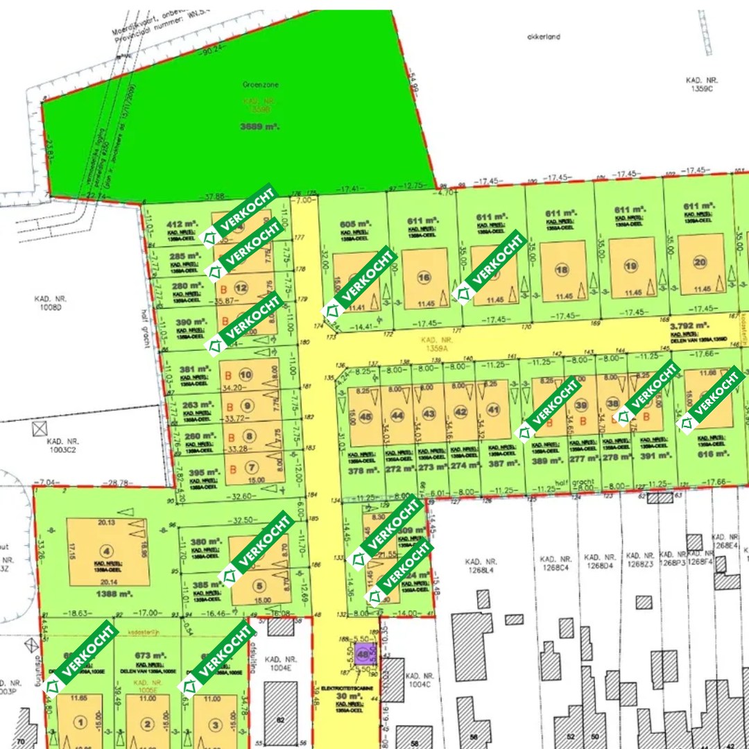
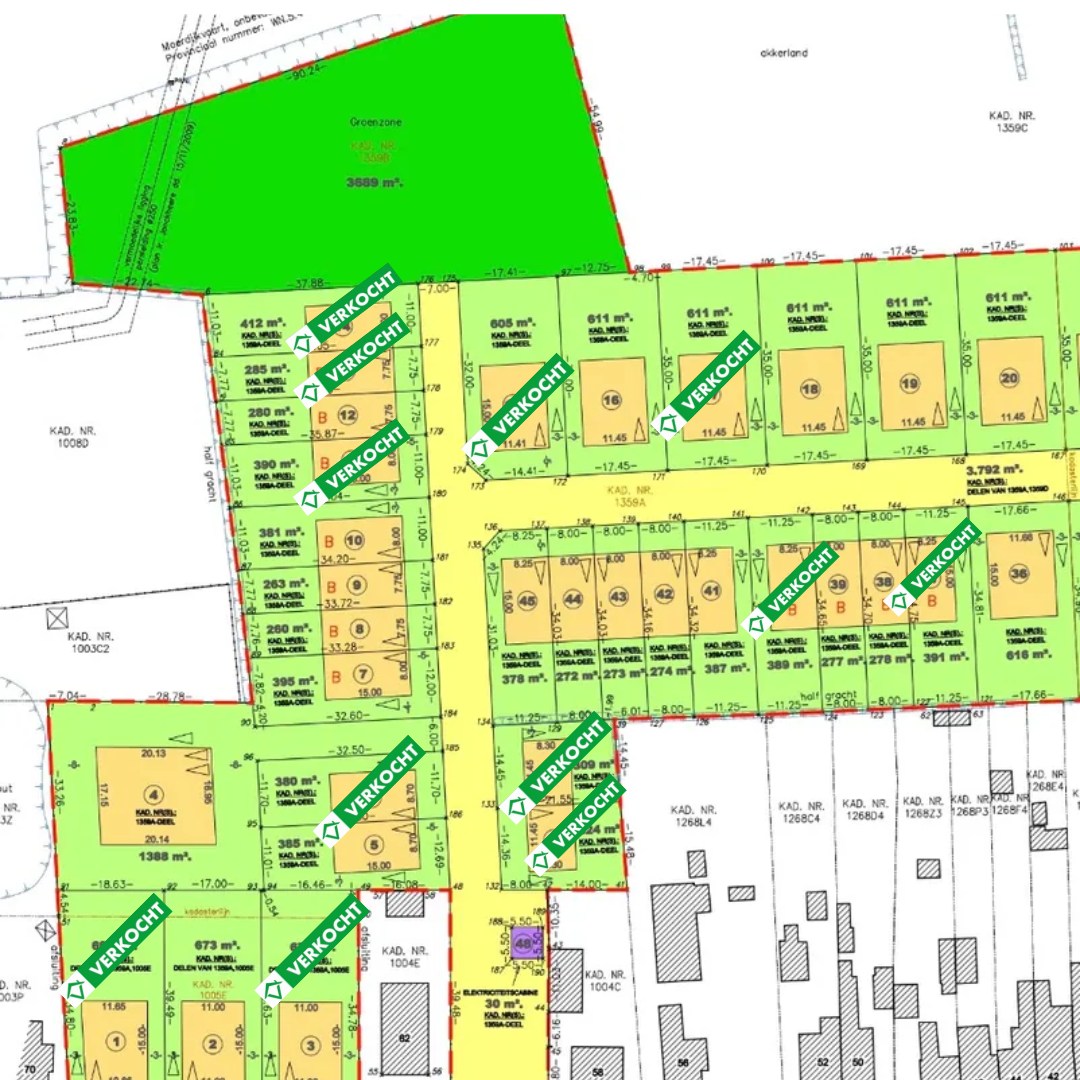
Perceeloppervlakte
674 m²
Meest recente bestemming terrein
Woongebied
Tuin
Ja
Ligging
Openbaar vervoer nabij
Ja
School nabij
Ja
Winkels nabij
Ja
Indeling
Aantal kamers
4
Aantal slaapkamers
4
Aantal badkamers
2
Ruimtelijke ordening
Dagvaarding
Geen rechterlijke herstelmaatregel of bestuurlijke maatregel opgelegd
Verkavelingsvergunning
Ja
P(erceel)-score
D (middelgrote overstromingskans onder huidig klimaat)
Locatie
Hovaerestraat 68, 8680 Koekelare557.550 EUR
Locatie
Hovaerestraat 68
8680 Koekelare
Is dit haalbaar voor jou?
Minimale eigen inbreng
-EUR
Maandlast
-EUR/maand
Liever een voorstel op maat?
Vertel meer over je project en je persoonlijke situatie en KBC berekent je persoonlijke rentevoet. Je ontvangt onmiddellijk feedback of je lening haalbaar is en je kunt je aanvraag volledig digitaal afronden. Zelfs als je geen KBC-klant bent.














