Scoop: Grond te koop in Dentergem
€ 181.767
Is dit haalbaar voor jou?Omschrijving
Bouwgrond halfopen bebouwing in Dentergem (6% btw)
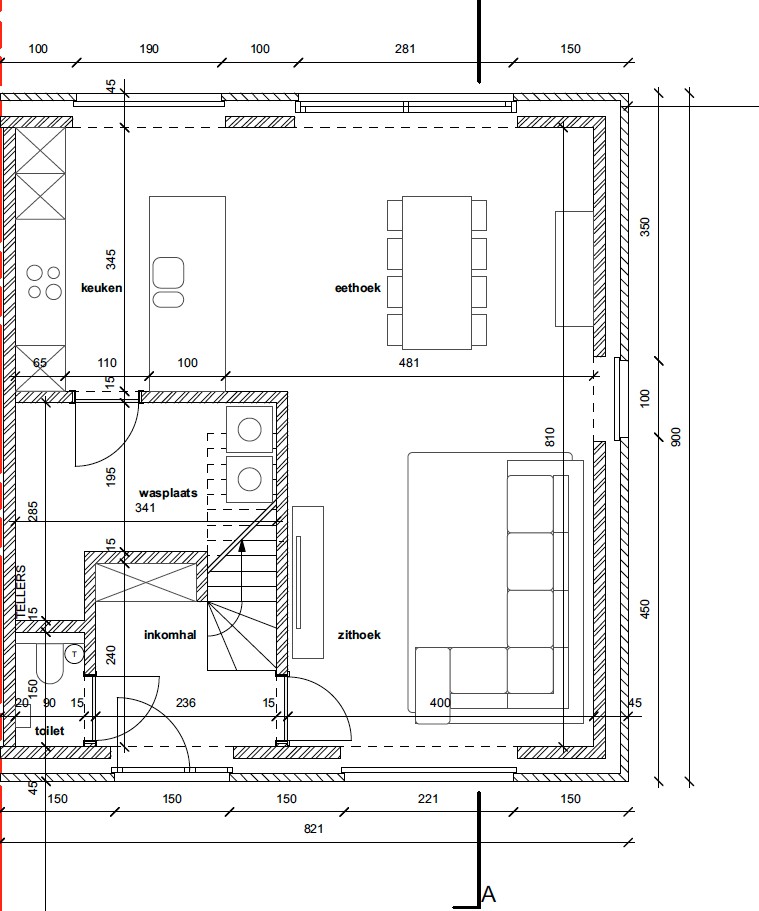
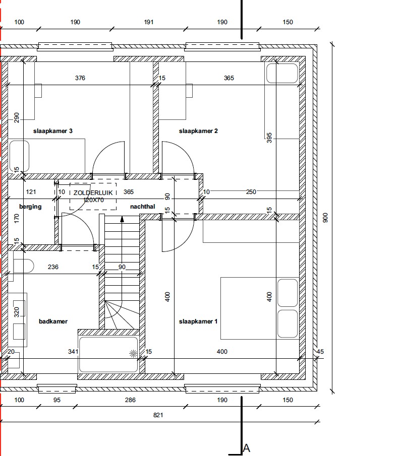
Dit perceel bouwgrond, gelegen in de Gottemstraat te Dentergem, heeft een oppervlakte van 403 m² en is bestemd voor een halfopen bebouwing — ideaal voor wie op zoek is naar een evenwicht tussen ruimte, privacy en bereikbaarheid.
De bouwvoorschriften voorzien een bouwlijn op 5 meter achter de rooilijn, met zijdelingse bouwvrije stroken van 4 meter, wat zorgt voor een aangename woonomgeving met voldoende licht en ruimte.
Dit project kan gerealiseerd worden als sleutel-op-de-deur woning en dit aan 6% btw! Dat betekent dat jouw woning volledig wordt afgewerkt volgens jouw persoonlijke smaak, behoeften en budget, op basis van een duidelijk en transparant lastenboek. Tijdens de materiaalkeuze krijg je alle vrijheid om jouw woning vorm te geven. Je kiest uit een ruim aanbod aan duurzame en kwalitatieve materialen, zodat jouw toekomstige thuis perfect aansluit bij jouw levensstijl.
Centrale ligging met alle voorzieningen dichtbij
De ligging in de Gottemstraat combineert rust met een vlotte bereikbaarheid. In de nabije omgeving vind je onder andere:
Kortom, een locatie waar comfortabel wonen en praktische bereikbaarheid hand in hand gaan.
De bouwvoorschriften voorzien een bouwlijn op 5 meter achter de rooilijn, met zijdelingse bouwvrije stroken van 4 meter, wat zorgt voor een aangename woonomgeving met voldoende licht en ruimte.
Dit project kan gerealiseerd worden als sleutel-op-de-deur woning en dit aan 6% btw! Dat betekent dat jouw woning volledig wordt afgewerkt volgens jouw persoonlijke smaak, behoeften en budget, op basis van een duidelijk en transparant lastenboek. Tijdens de materiaalkeuze krijg je alle vrijheid om jouw woning vorm te geven. Je kiest uit een ruim aanbod aan duurzame en kwalitatieve materialen, zodat jouw toekomstige thuis perfect aansluit bij jouw levensstijl.
Centrale ligging met alle voorzieningen dichtbij
De ligging in de Gottemstraat combineert rust met een vlotte bereikbaarheid. In de nabije omgeving vind je onder andere:
- Scholen op korte afstand
- Bakkers en slagers
- Supermarkten en andere winkels binnen handbereik
Kortom, een locatie waar comfortabel wonen en praktische bereikbaarheid hand in hand gaan.
Interesse?
Voor meer informatie over plannen en bouwvoorschriften: 📩 sarah@maesconceptimmo.beGebouw
Type pand
Grond
Subtype
Bouwgrond
Bewoonbare oppervlakte
148 m²
Terrein
Perceeloppervlakte
355 m²
Meest recente bestemming terrein
Woongebied
Indeling
Aantal slaapkamers
0
Aantal badkamers
0
Aantal toiletten
0
Comfort
Lift
Nee
Energie
E-peil
0
Ruimtelijke ordening
Voorkooprecht
Nee
P(erceel)-score
A (geen overstroming gemodelleerd)
Beschermd erfgoed
Nee
Locatie
Gottemstraat 2, 8720 DentergemIs dit haalbaar voor jou?
Minimale eigen inbreng
-EUR
Maandlast
-EUR/maand
Liever een voorstel op maat?
Vertel meer over je project en je persoonlijke situatie en KBC berekent je persoonlijke rentevoet. Je ontvangt onmiddellijk feedback of je lening haalbaar is en je kunt je aanvraag volledig digitaal afronden. Zelfs als je geen KBC-klant bent.















