Huis te koop in Wakken met 4 slaapkamers
€ 169.000
Is dit haalbaar voor jou?Omschrijving
Ruime, totaal te renoveren burgerwoning met stadstuintje
Deze centrumwoning met stijlvolle façade ligt op twee minuten wandelen van de markt van Wakken.
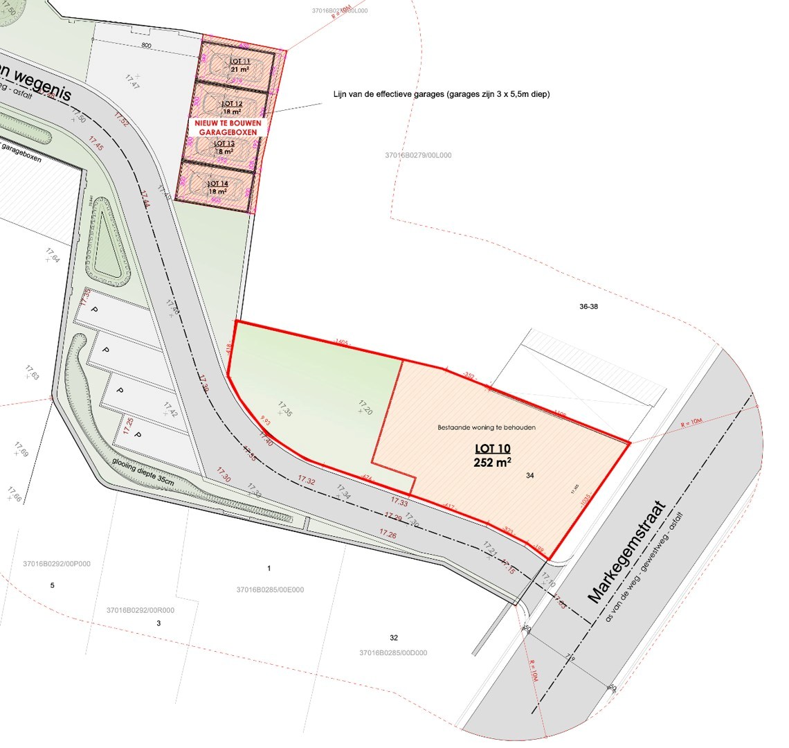
Achter de woning wordt een nieuwe verkaveling opgetrokken, nieuwe garages, wegenis en parkeerplaatsen worden aangelegd.
Groot pluspunt bij dit renovatieproject is de mogelijkheid om een nieuwe garage mee aan te kopen in de achterliggende verkaveling.
Het stadstuintje is nieuw omheind en achteraan voorzien van een poortje. Uitweg voor fietsen en tuingerief dus. De nieuw te bouwen garages bevinden zich om de hoek, net als een viertal openbare parkeerplaatsen.
De woning heeft een zeer groot volume en bewoonbare oppervlakte. Er is een vol eerste verdiep en een volwaardige en bruikbare zolderruimte.
De enorme kelder met gemetste gewelven biedt extra veel mogelijkheden.
Goeie verbinding naar zowel Tielt, Waregem als Zulte.
Achter de woning wordt een nieuwe verkaveling opgetrokken, nieuwe garages, wegenis en parkeerplaatsen worden aangelegd.
Groot pluspunt bij dit renovatieproject is de mogelijkheid om een nieuwe garage mee aan te kopen in de achterliggende verkaveling.
Het stadstuintje is nieuw omheind en achteraan voorzien van een poortje. Uitweg voor fietsen en tuingerief dus. De nieuw te bouwen garages bevinden zich om de hoek, net als een viertal openbare parkeerplaatsen.
De woning heeft een zeer groot volume en bewoonbare oppervlakte. Er is een vol eerste verdiep en een volwaardige en bruikbare zolderruimte.
De enorme kelder met gemetste gewelven biedt extra veel mogelijkheden.
Goeie verbinding naar zowel Tielt, Waregem als Zulte.
Financieel
Kadastraal inkomen
386 €
Kadastrale info
4e afdeling Wakken
Beschikbaarheid
Vanaf akte
Gebouw
Type pand
Huis
Subtype
Huis
Type bebouwing
Halfopen
Terrein
Perceeloppervlakte
252 m²
Meest recente bestemming terrein
Woongebied
Indeling
Aantal slaapkamers
4
Energie
EPC-score (kWh/(m² jaar))
898
EPC-label
F
Unieke code EPC
20250411-0003576036-RES-1
Ruimtelijke ordening
Dagvaarding
Geen rechterlijke herstelmaatregel of bestuurlijke maatregel opgelegd
Bouwvergunning
Ja
Verkavelingsvergunning
Ja
Locatie
Markegemstraat 34, 8720 WakkenIs dit haalbaar voor jou?
Minimale eigen inbreng
-EUR
Maandlast
-EUR/maand
Liever een voorstel op maat?
Vertel meer over je project en je persoonlijke situatie en KBC berekent je persoonlijke rentevoet. Je ontvangt onmiddellijk feedback of je lening haalbaar is en je kunt je aanvraag volledig digitaal afronden. Zelfs als je geen KBC-klant bent.















