Huis te koop in Zwevezele met 3 slaapkamers
€ 444.300
Is dit haalbaar voor jou?Omschrijving
Halfopen landelijke nieuwbouw met zuidgerichte tuin
In het residentieel nieuwbouwproject 'Reynaert' in Zwevezele wordt deze duurzame halfopen projectwoning gecreëerd in een landelijke bouwstijl. De woning is optimaal georiënteerd met een zuidgerichte tuin op een perceel van 327 m². Er is een eigen oprit om de wagen te zetten en er is de mogelijkheid om een carport te voorzien.
Je komt binnen in een open leefruimte met aansluitend een volledig uitgeruste keuken met keukeneiland. Via de keuken heb je meteen toegang tot de aansluitende wasplaats/berging, wat zorgt voor heel wat gebruiksgemak.
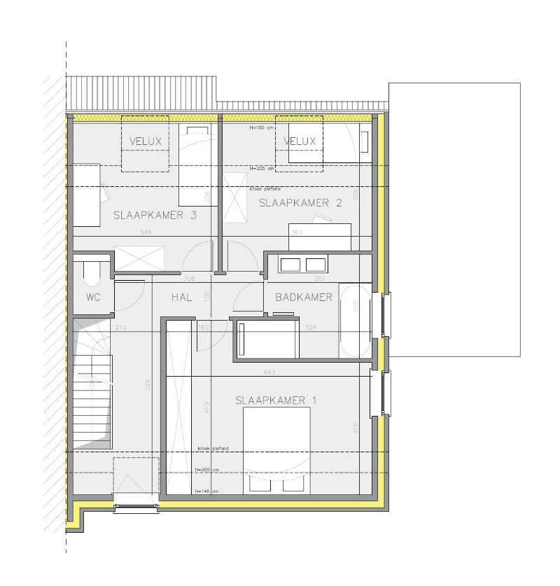
Op de eerste verdieping zijn er 3 slaapkamers, een badkamer met dubbele wastafel, douche én bad. De vaste trap leidt naar de open zolderruimte, waar je de mogelijkheid krijgt om een extra kamer te creëren. In de woning zijn 2 aparte toiletten voorzien, één op het gelijkvloers en één op het verdiep.
Na aankoop werken wij het interieur van deze woning nog verder af volgens jouw wensen en smaak. Realiseer zo je droomwoning in alle comfort.
De woning is duurzaam met een voorziene geothermische warmtepomp en vloerverwarming die ervoor zorgen dat de woning in de winter verwarmd wordt en in de zomer op een energiezuinige manier passief afkoelt.
Deze prijs is exclusief kosten en btw, bekijk de transparante ALL-IN prijs voor een volledig afgewerkte en instapklare woning, inclusief alle kosten (notariskosten, aansluitkosten, verkooprecht en btw) op onze website: www.dumobil.be/nl/woonprojecten/projecten/zwevezele-reynaert Of vraag vrijblijvend informatie via onze bouwadviseur Sam Borrey: sam@dumobil.be | 0483 210 133.
Je komt binnen in een open leefruimte met aansluitend een volledig uitgeruste keuken met keukeneiland. Via de keuken heb je meteen toegang tot de aansluitende wasplaats/berging, wat zorgt voor heel wat gebruiksgemak.
Op de eerste verdieping zijn er 3 slaapkamers, een badkamer met dubbele wastafel, douche én bad. De vaste trap leidt naar de open zolderruimte, waar je de mogelijkheid krijgt om een extra kamer te creëren. In de woning zijn 2 aparte toiletten voorzien, één op het gelijkvloers en één op het verdiep.
Na aankoop werken wij het interieur van deze woning nog verder af volgens jouw wensen en smaak. Realiseer zo je droomwoning in alle comfort.
De woning is duurzaam met een voorziene geothermische warmtepomp en vloerverwarming die ervoor zorgen dat de woning in de winter verwarmd wordt en in de zomer op een energiezuinige manier passief afkoelt.
Deze prijs is exclusief kosten en btw, bekijk de transparante ALL-IN prijs voor een volledig afgewerkte en instapklare woning, inclusief alle kosten (notariskosten, aansluitkosten, verkooprecht en btw) op onze website: www.dumobil.be/nl/woonprojecten/projecten/zwevezele-reynaert Of vraag vrijblijvend informatie via onze bouwadviseur Sam Borrey: sam@dumobil.be | 0483 210 133.
Financieel
Investeringsvastgoed
Ja
Opbrengsteigendom
Ja
Gebouw
Type pand
Huis
Subtype
Huis
Bewoonbare oppervlakte
182 m²
Terrein
Perceeloppervlakte
327 m²
Tuin
Ja
Oriëntatie tuin
Zuid
Indeling
Aantal slaapkamers
3
Aantal badkamers
1
Aantal toiletten
2
Comfort
Lift
Nee
Aansluiting elektriciteit
Ja
Aansluiting gas
Ja
Energie
EPC-label
A
E-peil
15
Zonnepanelen
Ja
Ruimtelijke ordening
Verkavelingsvergunning
Ja
Locatie
Waterjufferstraat 46, 8750 ZwevezeleIs dit haalbaar voor jou?
Minimale eigen inbreng
-EUR
Maandlast
-EUR/maand
Liever een voorstel op maat?
Vertel meer over je project en je persoonlijke situatie en KBC berekent je persoonlijke rentevoet. Je ontvangt onmiddellijk feedback of je lening haalbaar is en je kunt je aanvraag volledig digitaal afronden. Zelfs als je geen KBC-klant bent.













