Appartement te koop in Meulebeke met 3 slaapkamers
€ 179.500
Is dit haalbaar voor jou?Omschrijving
!!! BIEDINGEN VANAF 179.500,00€ WORDEN IN OVERWEGING GENOMEN !!!
* Een heel ruim appartement met tal van mogelijkheden in het volle centrum van Meulebeke
* Gelegen in hartje Meulebeke, 1 straat van Meulebeke Plaats, scholen, openbaar vervoer en winkels
* Bouwjaar 1959 - Renovatiejaar 2000
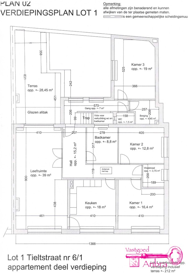
* Verdiep 0 : inkomhal - ruime garage met automatische sectionale poort
* Verdiep 1 : inkomhal - living - keuken - wasruimte - badkamer - 3 slaapkamers - bergruimte - ruim zonnig terras
* Verdiep 2 : zolder waar er 3 extra slaapkamers kunnen ingericht worden (bereikbaar via uitschuiftrap in de inkomhal)
* Centrale verwarming op aardgas
* EPC 531 kWh / (m² jaar) UC 3568018 (LABEL F)
* Gvg/Wg/Gvv/Gvkr/Gmo
* Beschikbaar bij notariële akte
* Een heel ruim appartement met tal van mogelijkheden in het volle centrum van Meulebeke
* Gelegen in hartje Meulebeke, 1 straat van Meulebeke Plaats, scholen, openbaar vervoer en winkels
* Bouwjaar 1959 - Renovatiejaar 2000
* Verdiep 0 : inkomhal - ruime garage met automatische sectionale poort
* Verdiep 1 : inkomhal - living - keuken - wasruimte - badkamer - 3 slaapkamers - bergruimte - ruim zonnig terras
* Verdiep 2 : zolder waar er 3 extra slaapkamers kunnen ingericht worden (bereikbaar via uitschuiftrap in de inkomhal)
* Centrale verwarming op aardgas
* EPC 531 kWh / (m² jaar) UC 3568018 (LABEL F)
* Gvg/Wg/Gvv/Gvkr/Gmo
* Beschikbaar bij notariële akte
Financieel
Kadastraal inkomen
772 €
Gebouw
Type pand
Appartement
Subtype
Appartement
Bewoonbare oppervlakte
234 m²
Terrein
Meest recente bestemming terrein
Woongebied
Indeling
Aantal slaapkamers
3
Aantal badkamers
0
Aantal toiletten
0
Comfort
Lift
Nee
Aansluiting elektriciteit
Ja
Aansluiting gas
Ja
Energie
EPC-score (kWh/(m² jaar))
531
EPC-label
F
Unieke code EPC
20250402-0003568018-RES-1
Ruimtelijke ordening
Verkavelingsvergunning
Nee
Voorkooprecht
Nee
G(ebouw)-score
A (geen overstroming gemodelleerd)
Locatie
Tieltstraat 6 101, 8760 Meulebeke179.500 EUR
Locatie
Tieltstraat 6 101
8760 Meulebeke
Is dit haalbaar voor jou?
Minimale eigen inbreng
-EUR
Maandlast
-EUR/maand
Liever een voorstel op maat?
Vertel meer over je project en je persoonlijke situatie en KBC berekent je persoonlijke rentevoet. Je ontvangt onmiddellijk feedback of je lening haalbaar is en je kunt je aanvraag volledig digitaal afronden. Zelfs als je geen KBC-klant bent.













