Huis te koop in Meulebeke met 3 slaapkamers
€ 399.000
Is dit haalbaar voor jou?Omschrijving
Landelijke halfopen nieuwbouwwoning - energielabel A
Deze energiezuinige halfopen nieuwbouwwoning in landelijke bouwstijl wordt volledig nieuw en instapklaar afgewerkt. De woning (lot 49) heeft een perceeloppervlakte van 333 m2 en een noordwestelijk georiënteerde tuin.
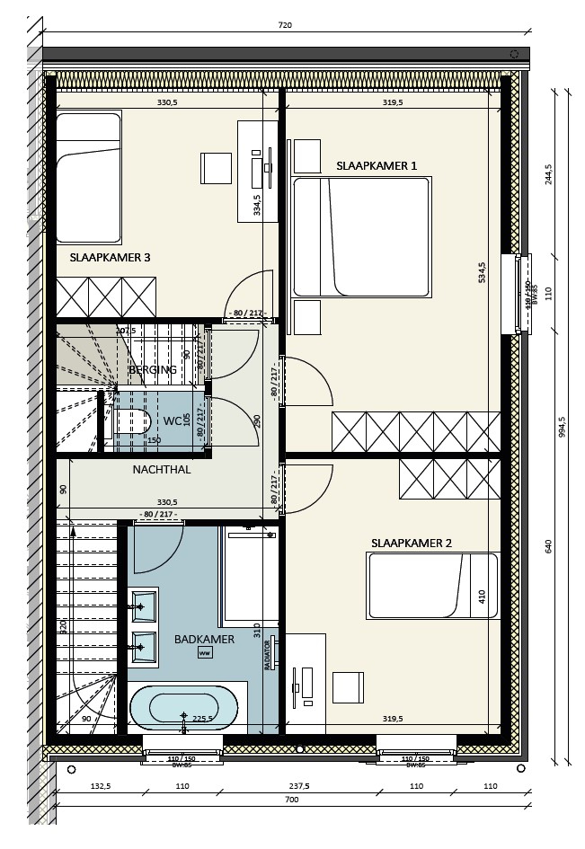
Via de inkomhal kom je terecht in een open leefruimte met salon, eethoek, bureau en open keuken. Er is een aparte wasplaats en gastentoilet. Op de eerste verdieping zijn er 3 slaapkamers, nog een toilet, berging en een badkamer met dubbele wastafel, douche én bad. Met een vaste trap kom je op de zolderruimte die dienst kan doen als extra kamer. Er komt een aangelegde voortuin en tuin met terras. De binnenafwerking van de woning gebeurt na aankoop en volgens de wensen en keuzes van de klant. Geniet daarbij van de nieuwste technieken, waaronder de geothermische warmtepomp, zonnepanelen en vloerverwarming om te verwarmen in de winter en te verkoelen in de zomer.
Deze woning krijgt dan ook energielabel A. www.dumobil.be/nl/woonprojecten/projecten/meulebeke-steenstraat-kapellestraat. Vraag vrijblijvend verdere info aan bouwadviseur Sam: sam@dumobil.be | 0483 210 133
Via de inkomhal kom je terecht in een open leefruimte met salon, eethoek, bureau en open keuken. Er is een aparte wasplaats en gastentoilet. Op de eerste verdieping zijn er 3 slaapkamers, nog een toilet, berging en een badkamer met dubbele wastafel, douche én bad. Met een vaste trap kom je op de zolderruimte die dienst kan doen als extra kamer. Er komt een aangelegde voortuin en tuin met terras. De binnenafwerking van de woning gebeurt na aankoop en volgens de wensen en keuzes van de klant. Geniet daarbij van de nieuwste technieken, waaronder de geothermische warmtepomp, zonnepanelen en vloerverwarming om te verwarmen in de winter en te verkoelen in de zomer.
Deze woning krijgt dan ook energielabel A. www.dumobil.be/nl/woonprojecten/projecten/meulebeke-steenstraat-kapellestraat. Vraag vrijblijvend verdere info aan bouwadviseur Sam: sam@dumobil.be | 0483 210 133
Financieel
Investeringsvastgoed
Ja
Opbrengsteigendom
Ja
Gebouw
Type pand
Huis
Subtype
Huis
Bewoonbare oppervlakte
185 m²
Terrein
Perceeloppervlakte
333 m²
Tuin
Ja
Oriëntatie tuin
Noordwest
Indeling
Aantal slaapkamers
3
Aantal badkamers
1
Aantal toiletten
2
Comfort
Lift
Nee
Aansluiting elektriciteit
Ja
Aansluiting gas
Ja
Energie
EPC-score (kWh/(m² jaar))
19
EPC-label
A
E-peil
19
Ruimtelijke ordening
Verkavelingsvergunning
Ja
P(erceel)-score
A (geen overstroming gemodelleerd)
Locatie
Steenstraat 98, 8760 Meulebeke399.000 EUR
Locatie
Steenstraat 98
8760 Meulebeke
Is dit haalbaar voor jou?
Minimale eigen inbreng
-EUR
Maandlast
-EUR/maand
Liever een voorstel op maat?
Vertel meer over je project en je persoonlijke situatie en KBC berekent je persoonlijke rentevoet. Je ontvangt onmiddellijk feedback of je lening haalbaar is en je kunt je aanvraag volledig digitaal afronden. Zelfs als je geen KBC-klant bent.













