Appartement te koop in Waregem met 2 slaapkamers
€ 316.110
Is dit haalbaar voor jou?Omschrijving
Luxe hoekappartement in nieuwbouwproject te Waregem!
Prachtig hoekappartement van 94 m² in het centrum van Waregem!
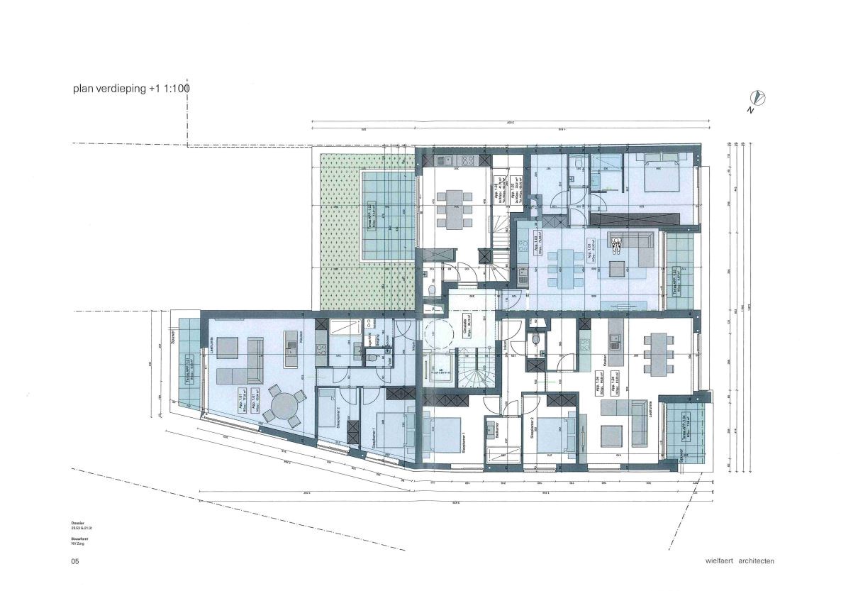
Dit ruime hoekappartement, gelegen op de eerste verdieping van een modern nieuwbouwproject, combineert een slimme indeling met hedendaags wooncomfort in het bruisende hart van Waregem.
Lichte en ruime leefruimte.
De open keuken sluit naadloos aan op de eet- en zithoek, die samen zorgen voor een aangename, open sfeer. Vanuit de living heeft u toegang tot een zonnig terras van 7 m² – de perfecte plek om te ontspannen en te genieten van de buitenlucht.
Comfortabele slaapkamers en praktische ruimtes:
Twee ruime slaapkamers
Stijlvolle badkamer
Apart toilet
Handige berging
Uw persoonlijke stijl, uw keuze!
Aangezien het appartement op plan wordt verkocht, kunt u de afwerking en materialen volledig afstemmen op uw eigen smaak, waardoor uw woning helemaal uniek wordt.
Extra voordelen:
Optioneel is er de mogelijkheid tot aankoop van een parkeerplaats of carport, wat het dagelijkse wooncomfort verder verhoogt.
Grijp deze unieke kans om te wonen in een modern, comfortabel appartement op een toplocatie in Waregem.
Neem snel contact op voor meer informatie of een vrijblijvend gesprek.
Dit ruime hoekappartement, gelegen op de eerste verdieping van een modern nieuwbouwproject, combineert een slimme indeling met hedendaags wooncomfort in het bruisende hart van Waregem.
Lichte en ruime leefruimte.
De open keuken sluit naadloos aan op de eet- en zithoek, die samen zorgen voor een aangename, open sfeer. Vanuit de living heeft u toegang tot een zonnig terras van 7 m² – de perfecte plek om te ontspannen en te genieten van de buitenlucht.
Comfortabele slaapkamers en praktische ruimtes:
Twee ruime slaapkamers
Stijlvolle badkamer
Apart toilet
Handige berging
Uw persoonlijke stijl, uw keuze!
Aangezien het appartement op plan wordt verkocht, kunt u de afwerking en materialen volledig afstemmen op uw eigen smaak, waardoor uw woning helemaal uniek wordt.
Extra voordelen:
Optioneel is er de mogelijkheid tot aankoop van een parkeerplaats of carport, wat het dagelijkse wooncomfort verder verhoogt.
Grijp deze unieke kans om te wonen in een modern, comfortabel appartement op een toplocatie in Waregem.
Neem snel contact op voor meer informatie of een vrijblijvend gesprek.
Financieel
Beschikbaarheid
Bij oplevering
Gebouw
Type pand
Appartement
Subtype
Flat
Bewoonbare oppervlakte
94 m²
Terrein
Meest recente bestemming terrein
Woongebied
Ligging
Openbaar vervoer nabij
Ja
Autosnelweg nabij
Ja
School nabij
Ja
Indeling
Aantal slaapkamers
2
Aantal badkamers
1
Keuken
Ja
Comfort
Lift
Ja
Aansluiting elektriciteit
Ja
Aansluiting water
Ja
Ruimtelijke ordening
Dagvaarding
Geen rechterlijke herstelmaatregel of bestuurlijke maatregel opgelegd
Bouwvergunning
Ja
Verkavelingsvergunning
Ja
Locatie
Stationsstraat 172, 8790 Waregem316.110 EUR
Locatie
Stationsstraat 172
8790 Waregem














