Grond te koop in Roeselare
€ 299.000
Is dit haalbaar voor jou?Omschrijving
Roeselare-Brugsesteenweg. BOUWGROND + VERGUNDE PLANNEN voor het bouwen van LOODS 486m2 & LOFT. Unieke ontwikkelingszone op uitstekende ligging. Perceel / tuin inclusief +/- 1080 m2.
Roeselare-Brugsesteenweg. BOUWGROND + VERGUNDE PLANNEN voor het bouwen van privatieve LOODS 486m2 & LOFT.
Unieke ontwikkelingszone op uitstekende ligging. Perceel / tuin inclusief +/- 1080 m2
Kies hier voor uw eigen project op uitstekende ligging naast het winkelcentrum MAMMOET en verkaveling van 1000 nieuwe woningen.
Overal dichtbij en aan de andere zijde van het winkelcentrum gelegen.
Dit is een zone in volle ontwikkeling en biedt heel vaal groeikansen voor jouw onderneming en jouw gezin.
Afbraak en wederopbouw.
Volgens gekende omgevingsvergunning zijn volgende zaken vergund :
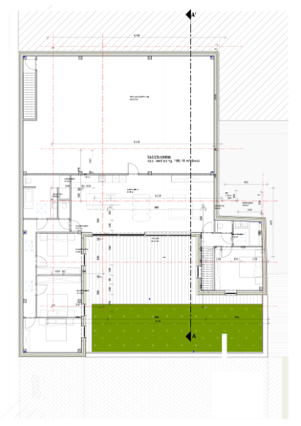
* gelijkvloers : bedrijfsruimte van 486m2 waarvan 1 ruimte van 26.70m diepte / 16m vooraan met bureel en gem. delen.
* tuin en terras van 12m / 19m
* parking met oprit voor +/- 5-6 wagens
* inrit loods met aparte poort
* ruime lichtrijke loft om te verpozen tot 4 slaapkamers
* ruim zonnig terras
* ruimte tot latere extra uitbreiding
Komt u de plannen inkijken en wat voor jouwd de mogelijkheden kunnen betekenen?
Bel ons vrijblijvend op voor een afspraak op ons kantoor.
Wij begeleiden u graag met de glimlach op zoek naar uw ideale investering & commercieel pand. T. 051 62 40 40.
Unieke ontwikkelingszone op uitstekende ligging. Perceel / tuin inclusief +/- 1080 m2
Kies hier voor uw eigen project op uitstekende ligging naast het winkelcentrum MAMMOET en verkaveling van 1000 nieuwe woningen.
Overal dichtbij en aan de andere zijde van het winkelcentrum gelegen.
Dit is een zone in volle ontwikkeling en biedt heel vaal groeikansen voor jouw onderneming en jouw gezin.
Afbraak en wederopbouw.
Volgens gekende omgevingsvergunning zijn volgende zaken vergund :
* gelijkvloers : bedrijfsruimte van 486m2 waarvan 1 ruimte van 26.70m diepte / 16m vooraan met bureel en gem. delen.
* tuin en terras van 12m / 19m
* parking met oprit voor +/- 5-6 wagens
* inrit loods met aparte poort
* ruime lichtrijke loft om te verpozen tot 4 slaapkamers
* ruim zonnig terras
* ruimte tot latere extra uitbreiding
Komt u de plannen inkijken en wat voor jouwd de mogelijkheden kunnen betekenen?
Bel ons vrijblijvend op voor een afspraak op ons kantoor.
Wij begeleiden u graag met de glimlach op zoek naar uw ideale investering & commercieel pand. T. 051 62 40 40.
Gebouw
Type pand
Grond
Subtype
Bouwgrond
Nieuw gebouw
Nee
Terrein
Perceeloppervlakte
1.080 m²
Meest recente bestemming terrein
Industriegebied voor ambachtelijke bedrijven of gebieden voor KMO's
Indeling
Aantal slaapkamers
0
Aantal badkamers
0
Aantal toiletten
0
Comfort
Lift
Nee
Energie
E-peil
0
Keuringsattest elektriciteit
Ja, niet conform
Ruimtelijke ordening
Verkavelingsvergunning
Ja
Voorkooprecht
Nee
G(ebouw)-score
A (geen overstroming gemodelleerd)
Locatie
Robaardstraat 30, 8800 Roeselare299.000 EUR
Locatie
Robaardstraat 30
8800 Roeselare
Is dit haalbaar voor jou?
Minimale eigen inbreng
-EUR
Maandlast
-EUR/maand
Liever een voorstel op maat?
Vertel meer over je project en je persoonlijke situatie en KBC berekent je persoonlijke rentevoet. Je ontvangt onmiddellijk feedback of je lening haalbaar is en je kunt je aanvraag volledig digitaal afronden. Zelfs als je geen KBC-klant bent.














