Huis te koop in Roeselare met 3 slaapkamers
Omschrijving
Exclusieve villa - Rust en ruimte nabij het Sterrebos!
Ontdek deze prachtige villa, gelegen in een doodlopende straat vlakbij het Sterrebos, op een royaal perceel van 2.519 m², bestaande uit twee afzonderlijke percelen.
Dit biedt niet alleen een aangename woonomgeving, maar ook de mogelijkheid om het terrein eventueel op te splitsen.
Deze stijlvolle woning combineert comfort, ruimte en een doordachte indeling met een zonnige tuin.
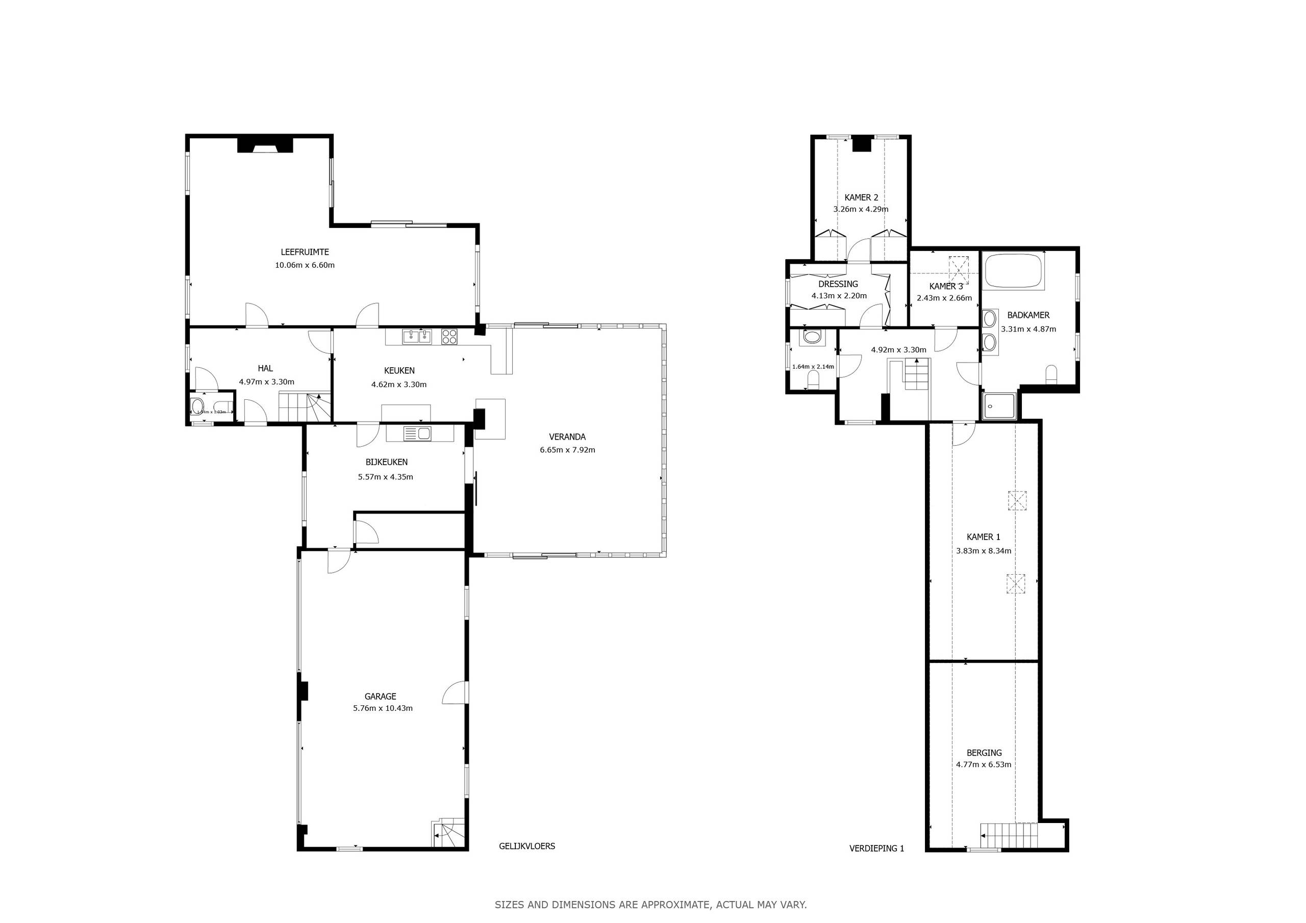
Indeling: inkomhal met apart toilet, leefruimte met open haard, geïnstalleerde keuken met bijkeuken en een ruime lichtrijke veranda.
Verder beschikt de villa over een dubbele garage, ruime oprit, grote parking, buitenberging, wijnkelder en een opbergkelder.
Op het verdiep vinden we de master bedroom, grote badkamer (bubbelbad, douche, dubbele lavabo en toilet), tweede slaapkamer met bureau en dressing, derde slaapkamer en een apart toilet (voorheen een douchekamer). Boven de garage bevindt zich nog een zolderruimte bereikbaar via een vaste trap.
Deze villa is bovendien uitgerust met een alarmsysteem en heeft een conform gekeurde elektrische installatie.
Een unieke kans om te wonen in een rustige, groene omgeving met alle comfort!
Interesse? Contacteer Shana voor meer informatie of een bezoek ter plaatse.
Financieel
Gebouw
Terrein
Ligging
Indeling
Comfort
Energie
Ruimtelijke ordening
Locatie
Jachthoornstraat 34, 8800 RoeselareIs dit haalbaar voor jou?
Liever een voorstel op maat?
Vertel meer over je project en je persoonlijke situatie en KBC berekent je persoonlijke rentevoet. Je ontvangt onmiddellijk feedback of je lening haalbaar is en je kunt je aanvraag volledig digitaal afronden. Zelfs als je geen KBC-klant bent.













