Huis te koop in Lichtervelde met 4 slaapkamers
€ 359.000
Is dit haalbaar voor jou?Omschrijving
Nieuwbouwwoning te koop in Lichtervelde.
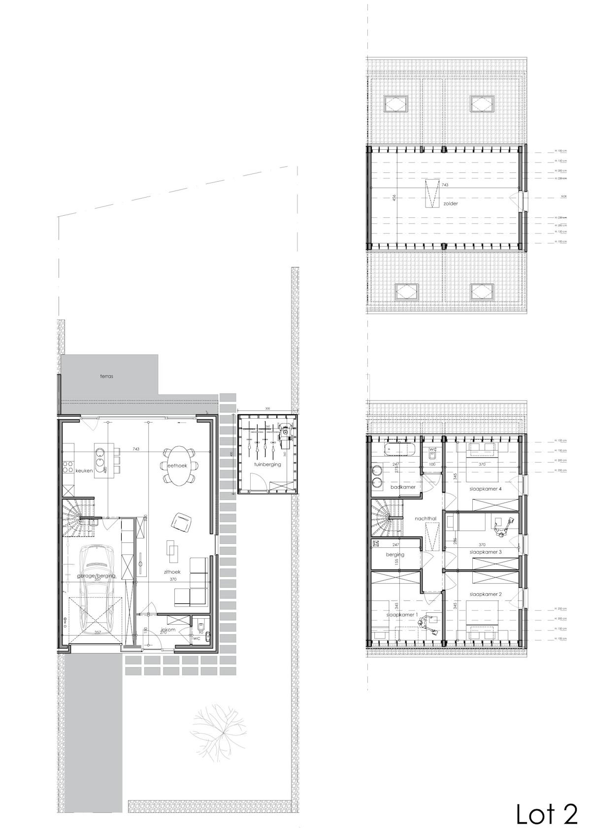
Nieuwbouwwoning te koop op perceel van 375 m² in Lichtervelde.Gelegen in Lichtervelde op enkele minuten van het centrum en station, vlakbij scholen en winkels, én met een snelle aansluiting op de E403. Ideaal voor gezinnen die energiezuinig willen wonen én vlot bereikbaar willen zijn.Deze woning met een bewoonbare oppervlakte van 180m² geniet van een zonnige Zuidwest gerichte tuin met prachtige uitzichten op de achterliggende velden.Indeling van dit huis te koop op lot 2:*gelijkvloers:inkom met gastentoilet | leefruimte met open keuken met zicht op de tuin | garage/berging*verdieping:nachthal | apart toilet | 4 slaapkamers | badkamer met dubbele lavabo, douche of ligbad | berging/dressing*zolder:bergruimte of in te richten tot extra kamer(s)Troeven:Vlotte verbinding Weids zicht achteraanEnergiezuinig en instapklaar: voorzien van vloerverwarming, warmtepomp, zonnepanelen en ventilatiesysteem D.De woningen worden afgewerkt conform het lastenboek, maar u heeft als koper nog veel inspraak bij de afwerking.Deze woning kan in aanmerking komen voor het 6% btw-tarief! *https://www.dewaele.com/nl/advies/6-btw-vastgoed-nieuwbouwDeze woning maak deel uit van een project van 6 nieuwbouwwoningen met percelen tussen de 375 m2 en 532 m2 en met een bewoonbare oppervlakte tussen de 179 m2 en 186 m2.De huizen op de loten 1, 2, 5 en 6 bestaan uit twee bouwlagen met hellend dak en zijn eveneens voorzien van garage en 4 slaapkamers. Hier kan desgewenst mits meerkost een vaste trap naar de zolder worden voorzien voor het inrichten van extra kamer(s).De huizen op de loten 3 en 4 bestaan uit 2 volwaardige bouwlagen met plat dak, uitgerust met garage en 4 slaapkamers.
Gebouw
Type pand
Huis
Subtype
Huis
Bewoonbare oppervlakte
180,7 m²
Terrein
Perceeloppervlakte
375,2 m²
Indeling
Aantal slaapkamers
4
Aantal badkamers
1
Aantal toiletten
2
Locatie
Roeselarebaan 56, 8810 LichterveldeIs dit haalbaar voor jou?
Minimale eigen inbreng
-EUR
Maandlast
-EUR/maand
Liever een voorstel op maat?
Vertel meer over je project en je persoonlijke situatie en KBC berekent je persoonlijke rentevoet. Je ontvangt onmiddellijk feedback of je lening haalbaar is en je kunt je aanvraag volledig digitaal afronden. Zelfs als je geen KBC-klant bent.















