Huis te koop in Gits met 3 slaapkamers
€ 449.000
Is dit haalbaar voor jou?Omschrijving
Alleenstaande woning met 3 slaapkamers en tuin op een rustige ligging te Gits
Alleenstaande woning (494m²) met tuin en 3 slaapkamers op een interessante alsook rustige ligging te Gits! Dit kortbij de dorpskern van Sint-Henricus met een vlotte verbinding richting de autosnelweg.
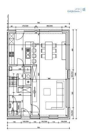
Indeling: inkomhal - apart toilet - lichtrijke living - keuken (mogelijkheid met een ruim eiland) - (technische) berging - tuin.
Eerste verdiep: 2 volwaardige slaapkamers - badkamer (mogelijk tot het plaatsen van één meubel, douche en ligbad) - derde slaapkamer met aansluitend nog een extra badkamer dat ook deels kan ingericht worden met een dressing!
De woning wordt in huidige staat verkocht en kan verder naar uw smaak afgewerkt worden!
De woning is volledig wind- en waterdicht!
Voorzien van alle hedendaagse technieken: zonnepanelen - vloerverwarming - EPC zal zéér energiezuinig zijn - goedgekeurde elektriciteit - geplaatste vaste trap naar het eerste verdiep... In samenspraak met de verkoper kan de woning nog verder afgewerkt worden.
EPC: woning in aanbouw
Troeven:
- Alle grote werken werden reeds uitgevoerd! Inrichting kan nog naar eigen smaak uitgevoerd worden!
- Gunstige, landelijke ligging
- Voorzien van de meest moderne technieken!
- Zéér energiezuinig, futureproof!
- Elektriciteitsaansluiting is voorzien voor domotica
*De bijgevoegde renders zijn één indicatie van hoe de woning verder ingericht kan worden. De woning wordt in huidige staat verkocht en kan verder naar uw smaak afgewerkt worden!
Contacteer ons gerust voor meer info!
Indeling: inkomhal - apart toilet - lichtrijke living - keuken (mogelijkheid met een ruim eiland) - (technische) berging - tuin.
Eerste verdiep: 2 volwaardige slaapkamers - badkamer (mogelijk tot het plaatsen van één meubel, douche en ligbad) - derde slaapkamer met aansluitend nog een extra badkamer dat ook deels kan ingericht worden met een dressing!
De woning wordt in huidige staat verkocht en kan verder naar uw smaak afgewerkt worden!
De woning is volledig wind- en waterdicht!
Voorzien van alle hedendaagse technieken: zonnepanelen - vloerverwarming - EPC zal zéér energiezuinig zijn - goedgekeurde elektriciteit - geplaatste vaste trap naar het eerste verdiep... In samenspraak met de verkoper kan de woning nog verder afgewerkt worden.
EPC: woning in aanbouw
Troeven:
- Alle grote werken werden reeds uitgevoerd! Inrichting kan nog naar eigen smaak uitgevoerd worden!
- Gunstige, landelijke ligging
- Voorzien van de meest moderne technieken!
- Zéér energiezuinig, futureproof!
- Elektriciteitsaansluiting is voorzien voor domotica
*De bijgevoegde renders zijn één indicatie van hoe de woning verder ingericht kan worden. De woning wordt in huidige staat verkocht en kan verder naar uw smaak afgewerkt worden!
Contacteer ons gerust voor meer info!
Financieel
Kadastraal inkomen
426 €
Beschikbaarheid
Vanaf akte
Gebouw
Type pand
Huis
Subtype
Huis
Bebouwde oppervlakte
494 m²
Terrein
Meest recente bestemming terrein
Woongebied
Tuin
Ja
Indeling
Aantal slaapkamers
3
Aantal badkamers
2
Keuken
Ja
Comfort
Aansluiting elektriciteit
Ja
Aansluiting gas
Ja
Aansluiting riolering
Ja
Energie
Unieke code EPC
EPC: woning in aanbouw
Type beglazing
Hoogrendementsglas
Raamprofielen
PVC
Ruimtelijke ordening
Bouwvergunning
Ja
Voorkooprecht
Nee
G(ebouw)-score
A (geen overstroming gemodelleerd)
Locatie
Noordabeelstraat 161, 8830 Gits449.000 EUR
Locatie
Noordabeelstraat 161
8830 Gits














