Huis te koop in Hooglede met 4 slaapkamers
€ 450.000
Is dit haalbaar voor jou?Omschrijving
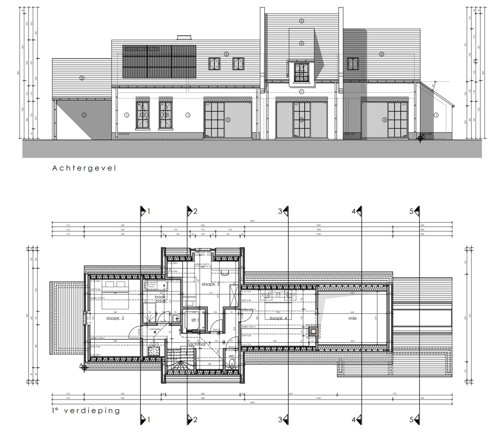
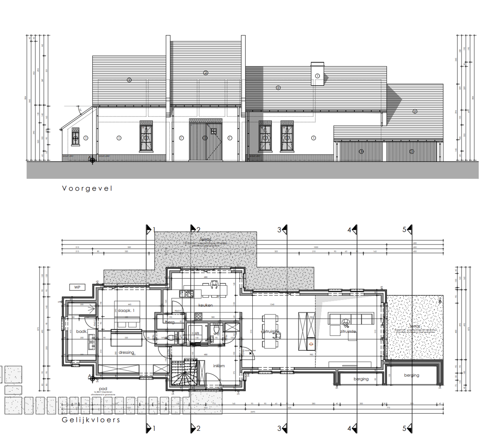
Landelijk vergunde hoeve + woonfunctie en vergund woongebouw
Deze hoeve van 6.755 m2 is het perfecte heropbouwproject voor wie landelijk wil wonen. De eigendom beschikt over een goedgekeurde stedenbouwkundige vergunning, waardoor de werken onmiddellijk kunnen worden opgestart. De vergunning betreft een hoeve met woonfunctie van 181,96m2, een bijgebouw van 21,73m2 en een tweede bijgebouw van 222,56m2. Op vergunning is de woning ook volledig onderkelderd (niet meegerekend in bewoonbaar).
Parameters zijn overgenomen van vergunning.
Dankzij de vlotte bereikbaarheid sta je in geen tijd in het centrum van Lichtervelde, waar je de markt, het station, diverse winkels en scholen terugvindt. Bovendien zorgen de omliggende natuurgebieden en open landschappen voor rust, privacy en prachtige vergezichten.
Troeven:
- Ruim perceel
- Landelijke en open vergezichten
- Vergunning reeds volledig goedgekeurd
De huidige hoeve dient te worden afgebroken en volledig nieuw opgebouwd volgens de reeds goedgekeurde plannen. Je bent daarbij volledig vrij om te werken met aannemers naar eigen keuze.
De weergegeven beelden zijn gegenereerd met behulp van AI.
De geafficheerde prijs is een richtprijs. Elk voorstel wordt voorgelegd aan de eigenaar, die vervolgens kan beslissen of hij hiermee akkoord gaat of niet.
Voor meer info contacteer Simon +32 498 12 37 08 of via simon@vicusvatsgoed.be
Parameters zijn overgenomen van vergunning.
Dankzij de vlotte bereikbaarheid sta je in geen tijd in het centrum van Lichtervelde, waar je de markt, het station, diverse winkels en scholen terugvindt. Bovendien zorgen de omliggende natuurgebieden en open landschappen voor rust, privacy en prachtige vergezichten.
Troeven:
- Ruim perceel
- Landelijke en open vergezichten
- Vergunning reeds volledig goedgekeurd
De huidige hoeve dient te worden afgebroken en volledig nieuw opgebouwd volgens de reeds goedgekeurde plannen. Je bent daarbij volledig vrij om te werken met aannemers naar eigen keuze.
De weergegeven beelden zijn gegenereerd met behulp van AI.
De geafficheerde prijs is een richtprijs. Elk voorstel wordt voorgelegd aan de eigenaar, die vervolgens kan beslissen of hij hiermee akkoord gaat of niet.
Voor meer info contacteer Simon +32 498 12 37 08 of via simon@vicusvatsgoed.be
Gebouw
Type pand
Huis
Subtype
Hoeve
Bewoonbare oppervlakte
181,96 m²
Terrein
Perceeloppervlakte
6.755 m²
Tuin
Ja
Oriëntatie tuin
West
Ligging
Omgeving / buurt
Rustig; Landelijk
Indeling
Aantal slaapkamers
4
Oppervlakte slaapkamers
12,5 m²; 17,68 m²; 16,8 m²; 17,48 m²
Aantal dressings
1
Comfort
Lift
Ja
Zwembad
Nee
Aansluiting riolering
Ja
Energie
Dubbele beglazing
Ja
Regenwaterput
Ja
Ruimtelijke ordening
Bestemming gebouw
Privé - eengezins
Vonnissen
Nee
Bouwvergunning
Ja
Locatie
Kortemarkstraat 29, 8830 Hooglede450.000 EUR
Locatie
Kortemarkstraat 29
8830 Hooglede













