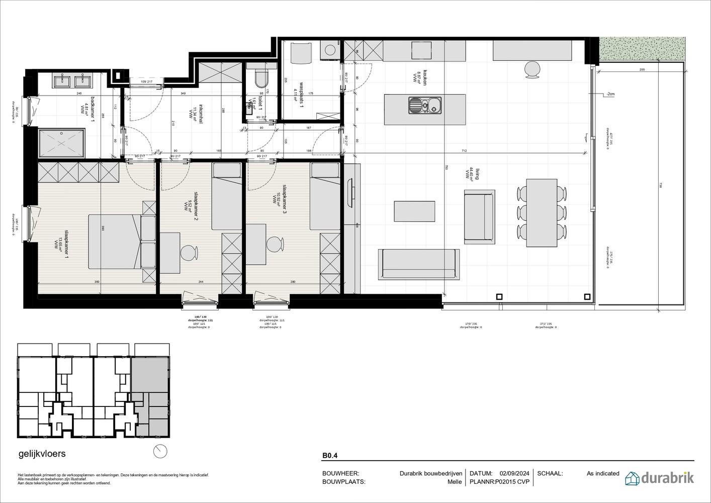
Appartement te koop in Melle met 3 slaapkamers
€ 487.800
Is dit haalbaar voor jou?Omschrijving
Interesse in dit appartement? Contacteer je bouwadviseur: bel 09 280 60 60 of mail info@durabrik.be
Financieel
Verkoop onder btw-stelsel
Ja
Gebouw
Type pand
Appartement
Subtype
Appartement
Bewoonbare oppervlakte
129 m²
Terrein
Perceeloppervlakte
147 m²
Meest recente bestemming terrein
Woongebied
Indeling
Aantal slaapkamers
3
Aantal badkamers
1
Aantal toiletten
0
Comfort
Lift
Nee
Energie
E-peil
20
Keuringsattest elektriciteit
Ja, niet conform
Ruimtelijke ordening
Verkavelingsvergunning
Ja
Locatie
Brusselsesteenweg 121 B0.4, 9090 Melle487.800 EUR
Locatie
Brusselsesteenweg 121 B0.4
9090 Melle
Is dit haalbaar voor jou?
Minimale eigen inbreng
-EUR
Maandlast
-EUR/maand
Liever een voorstel op maat?
Vertel meer over je project en je persoonlijke situatie en KBC berekent je persoonlijke rentevoet. Je ontvangt onmiddellijk feedback of je lening haalbaar is en je kunt je aanvraag volledig digitaal afronden. Zelfs als je geen KBC-klant bent.










