Huis te koop in Temse met 4 slaapkamers
€ 558.000
Is dit haalbaar voor jou?Omschrijving
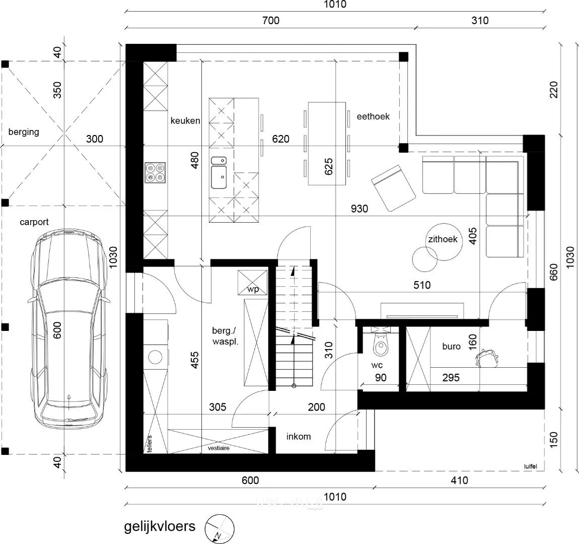
Bouwgrond voor open bebouwing op 717m2
Wilt u een moderne open bebouwing bouwen op een centrale ligging in een kindvriendelijke wijk in Temse. Zoek niet verder!
Deze bouwgrond is gelegen in de Achiel Vermeirenstraat, een nieuwe, kindvriendelijke verkaveling op een een centrale ligging vlakbij het centrum, openbaar vervoer, winkels en alle invalswegen.
Deze grond van 717m2 is geschikt voor open bebouwing en biedt veel mogelijkheden om uw droomwoning te bouwen. Het perceel heeft een breedte van 18,9m en een diepte van 33,73m.
De foto's zijn een weergave wat de mogelijkheden zijn op het perceel. De prijsweergave is het lot grond + de bouwkost van deze woning exclusief kosten.
Hebt u interesse? Contacteer ons voor de bouwvoorschriften en meer info via 052 46 38 03 of via info@uw-huis.be
Deze bouwgrond is gelegen in de Achiel Vermeirenstraat, een nieuwe, kindvriendelijke verkaveling op een een centrale ligging vlakbij het centrum, openbaar vervoer, winkels en alle invalswegen.
Deze grond van 717m2 is geschikt voor open bebouwing en biedt veel mogelijkheden om uw droomwoning te bouwen. Het perceel heeft een breedte van 18,9m en een diepte van 33,73m.
De foto's zijn een weergave wat de mogelijkheden zijn op het perceel. De prijsweergave is het lot grond + de bouwkost van deze woning exclusief kosten.
Hebt u interesse? Contacteer ons voor de bouwvoorschriften en meer info via 052 46 38 03 of via info@uw-huis.be
Financieel
Kadastraal inkomen
6 €
Kadasteroppervlakte
717 m²
Beschikbaarheid
Vanaf akte
Gebouw
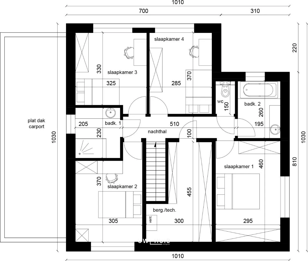
Bewoonbare oppervlakte
192 m²
Staat pand
Goede staat
Gevelbreedte straatkant
10,1 m
Terrein
Perceeloppervlakte
717 m²
Meest recente bestemming terrein
Woongebied
Oriëntatie tuin
Zuid
Ligging
Afstand tot openbaar vervoer
250 m
Afstand tot autosnelweg
250 m
Afstand tot school
2.500 m
Indeling
Aantal slaapkamers
4
Aantal badkamers
1
Keuken
Ja
Ruimtelijke ordening
Dagvaarding
Ja
Dagvaarding
Geen rechterlijke herstelmaatregel of bestuurlijke maatregel opgelegd
Bouwvergunning
Nee
Locatie
Achiel Vermeirenstraat, 9140 TemseIs dit haalbaar voor jou?
Minimale eigen inbreng
-EUR
Maandlast
-EUR/maand
Liever een voorstel op maat?
Vertel meer over je project en je persoonlijke situatie en KBC berekent je persoonlijke rentevoet. Je ontvangt onmiddellijk feedback of je lening haalbaar is en je kunt je aanvraag volledig digitaal afronden. Zelfs als je geen KBC-klant bent.
















