Huis te koop in Temse met 4 slaapkamers
€ 558.000
Is dit haalbaar voor jou?Omschrijving
Bouwgrond voor open bebouwing op 717m2
Wilt u een moderne open bebouwing bouwen op een centrale ligging in een kindvriendelijke wijk in Temse. Zoek niet verder!
Deze bouwgrond is gelegen in de Achiel Vermeirenstraat, een nieuwe, kindvriendelijke verkaveling op een een centrale ligging vlakbij het centrum, openbaar vervoer, winkels en alle invalswegen.
Deze grond van 717m2 is geschikt voor open bebouwing en biedt veel mogelijkheden om uw droomwoning te bouwen. Het perceel heeft een breedte van 18,9m en een diepte van 33,73m.
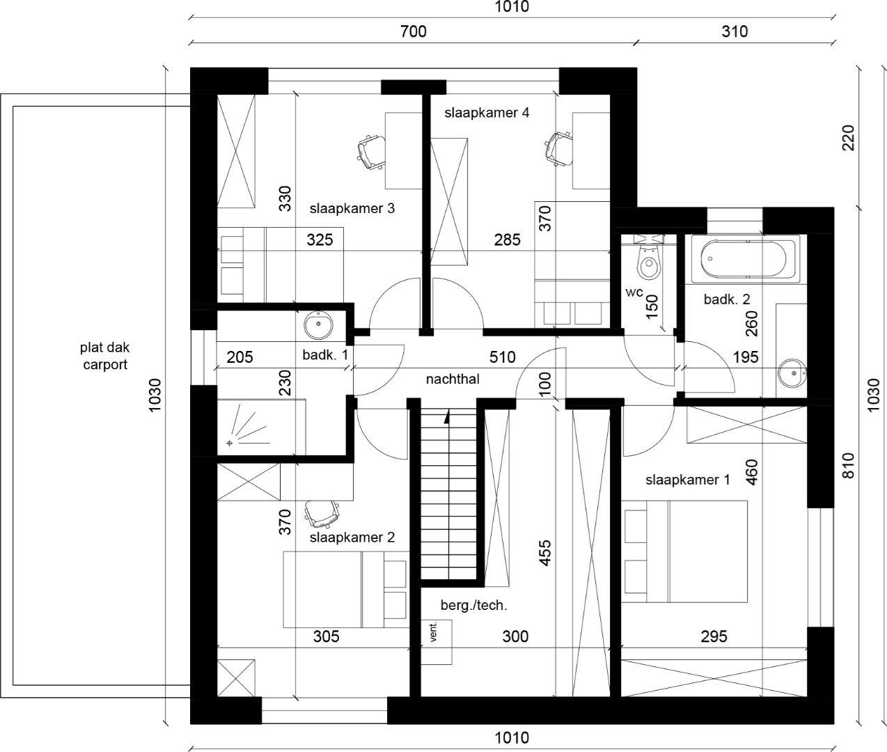
De foto's zijn een weergave wat de mogelijkheden zijn op het perceel. De prijsweergave is het lot grond + de bouwkost van deze woning exclusief kosten.
Hebt u interesse? Contacteer ons voor de bouwvoorschriften en meer info via 052 46 38 03 of via info@uw-huis.be
Deze bouwgrond is gelegen in de Achiel Vermeirenstraat, een nieuwe, kindvriendelijke verkaveling op een een centrale ligging vlakbij het centrum, openbaar vervoer, winkels en alle invalswegen.
Deze grond van 717m2 is geschikt voor open bebouwing en biedt veel mogelijkheden om uw droomwoning te bouwen. Het perceel heeft een breedte van 18,9m en een diepte van 33,73m.
De foto's zijn een weergave wat de mogelijkheden zijn op het perceel. De prijsweergave is het lot grond + de bouwkost van deze woning exclusief kosten.
Hebt u interesse? Contacteer ons voor de bouwvoorschriften en meer info via 052 46 38 03 of via info@uw-huis.be
Financieel
Kadastraal inkomen
6 €
Kadastrale info
1ste afdeling sectie B
Beschikbaarheid
Vanaf akte
Gebouw
Type pand
Huis
Subtype
Huis
Bewoonbare oppervlakte
192 m²
Terrein
Perceeloppervlakte
717 m²
Meest recente bestemming terrein
Woongebied
Tuin
Ja
Ligging
Openbaar vervoer nabij
Ja
Autosnelweg nabij
Ja
School nabij
Ja
Indeling
Aantal slaapkamers
4
Aantal badkamers
1
Keuken
Ja
Ruimtelijke ordening
Dagvaarding
Geen rechterlijke herstelmaatregel of bestuurlijke maatregel opgelegd
Bouwvergunning
Nee
Verkavelingsvergunning
Ja
Locatie
Achiel Vermeirenstraat, 9140 Temse558.000 EUR
Locatie
Achiel Vermeirenstraat
9140 Temse
Is dit haalbaar voor jou?
Minimale eigen inbreng
-EUR
Maandlast
-EUR/maand
Liever een voorstel op maat?
Vertel meer over je project en je persoonlijke situatie en KBC berekent je persoonlijke rentevoet. Je ontvangt onmiddellijk feedback of je lening haalbaar is en je kunt je aanvraag volledig digitaal afronden. Zelfs als je geen KBC-klant bent.
















