Huis te koop in Stekene met 3 slaapkamers
€ 408.807
Is dit haalbaar voor jou?Omschrijving
Stekene, Burg. Abdon Heyselaan/Zuster Eduardalaan - Fase 1: Lot 81
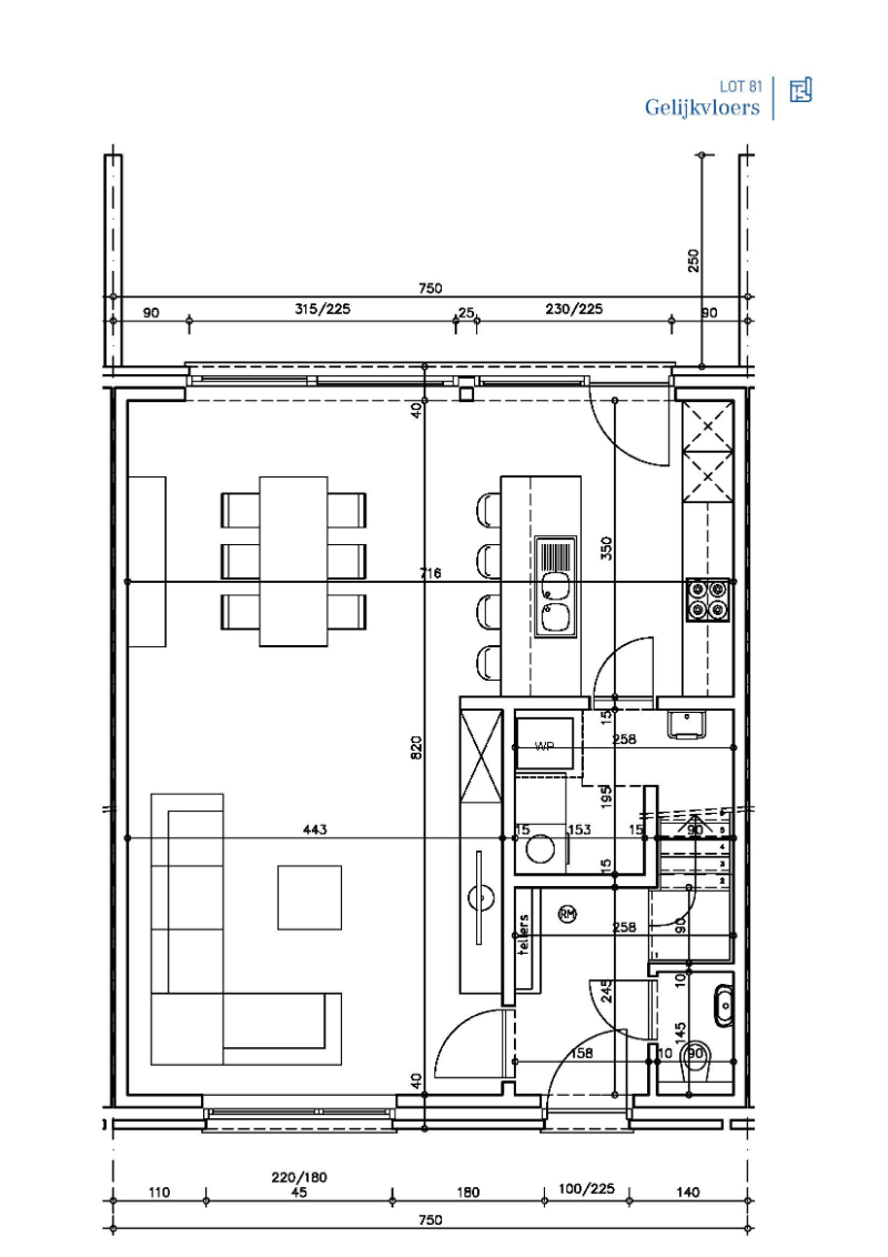
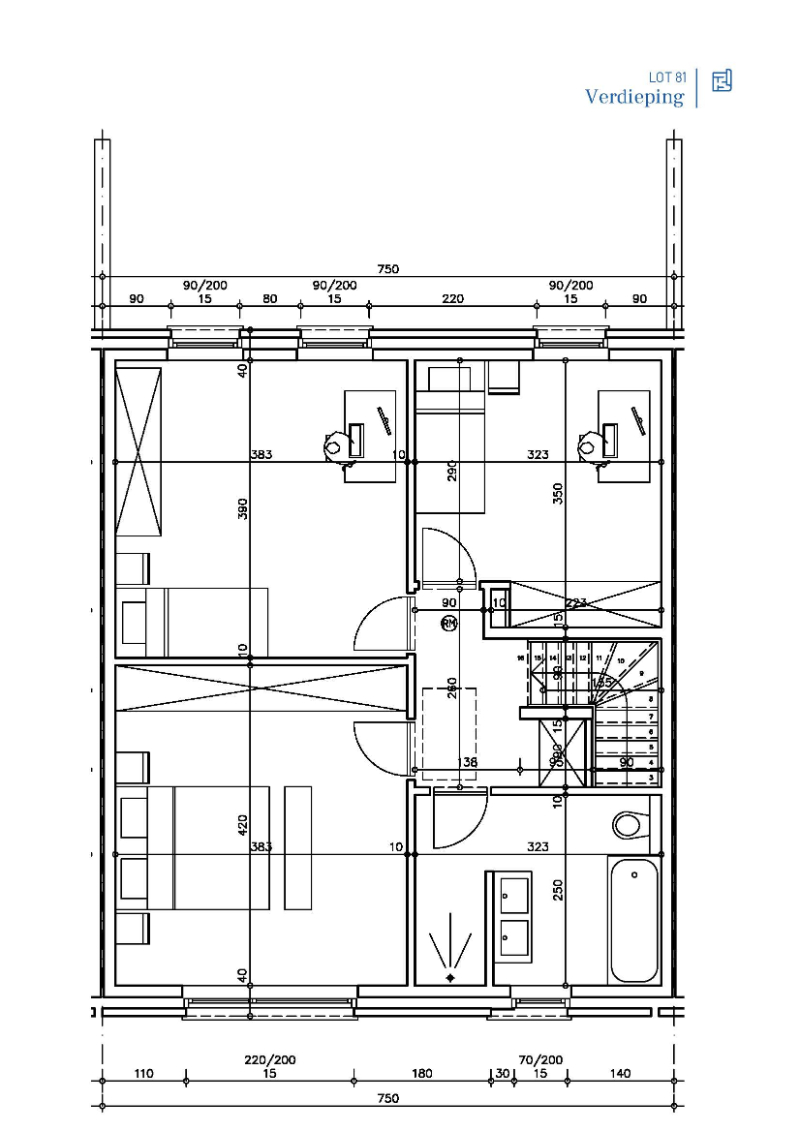
VASTE PRIJS - ENERGIEZUINIG - ALL IN AFWERKING OP MAAT! In deze gezellige verkaveling vlakbij het kloppende hart van Stekene worden 8 nieuwbouwwoningen gebouwd. Deze gesloten nieuwbouwwoning (lot 81) wordt gebouwd op een perceel van 187m2. De woning heeft een strak modern ontwerp en geniet van een optimale planindeling! Op het gelijkvloers is er een inkom met gastentoilet, een open leefruimte en een praktische wasplaats. Op de eerste verdieping bevinden zich 3 slaapkamers en een badkamer met bad + inloopdouche. De praktische zolder is toegankelijk met een uitschuifbare zoldertrap. De woning is voorzien van ULTRA energiezuinige technieken zoals een warmtepomp met vloerverwarming, regenwaterrecuperatie van 10.000L, ventilatie met warmterecuperatie, super isolerende beglazing, zonnepanelen,... Kom jij hier binnenkort thuis? Contacteer de bouwadviseur Ewout om meer informatie te ontvangen: 0497 588 888 - contact@huysmanbouw.be
Financieel
Verkoop onder btw-stelsel
Ja
Waarde grond
85.000 €
Gebouw
Type pand
Huis
Subtype
Huis
Nieuw gebouw
Ja
Terrein
Perceeloppervlakte
187,5 m²
Meest recente bestemming terrein
Woongebied
Indeling
Aantal slaapkamers
3
Aantal badkamers
0
Aantal toiletten
0
Comfort
Lift
Nee
Energie
EPC-label
A
E-peil
0
Keuringsattest elektriciteit
Ja, conform
Ruimtelijke ordening
Verkavelingsvergunning
Ja
Voorkooprecht
Nee
G(ebouw)-score
A (geen overstroming gemodelleerd)
Locatie
Abdon Heyselaan, 9190 StekeneIs dit haalbaar voor jou?
Minimale eigen inbreng
-EUR
Maandlast
-EUR/maand
Liever een voorstel op maat?
Vertel meer over je project en je persoonlijke situatie en KBC berekent je persoonlijke rentevoet. Je ontvangt onmiddellijk feedback of je lening haalbaar is en je kunt je aanvraag volledig digitaal afronden. Zelfs als je geen KBC-klant bent.















