Huis te koop in Hamme
€ 579.500
Is dit haalbaar voor jou?Omschrijving
NIEUWBOUW OB UITSTEKENDE LOCATIE + BOUWGROND VAN 763 M2
Ontdek deze zeldzame kans om eigenaar te worden van een prachtig stuk grond + nieuwbouwwoning EPC A, gelegen in de Bookmolenstraat 36 te Hamme/ Zogge en dit met een ruime oppervlakte van 763 m2. Deze bouwgrond is gelegen in een gegeerde straat met een uitstekende bereikbaarheid, omgeven door de natuur en toch dicht bij alle voorzieningen. Perfect voor het verwezenlijken van jouw droomwoning. Of je nu op zoek bent naar een plek om te bouwen of te investeren, dit is een kans die je niet mag missen.
De geprojecteerde woning (Incl BTW) is in samenwerking met een aannemer die woningen realiseert, zin om deze zelf te personaliseren en de mogelijkheden te ontdekken? Neem gerust contact met ons op voor meer info op het nummer: 052 46 38 03 of via mail naar info@uw-huis.be
De geprojecteerde woning (Incl BTW) is in samenwerking met een aannemer die woningen realiseert, zin om deze zelf te personaliseren en de mogelijkheden te ontdekken? Neem gerust contact met ons op voor meer info op het nummer: 052 46 38 03 of via mail naar info@uw-huis.be
Financieel
Kadastraal inkomen
41 €
Beschikbaarheid
Vanaf akte
Gebouw
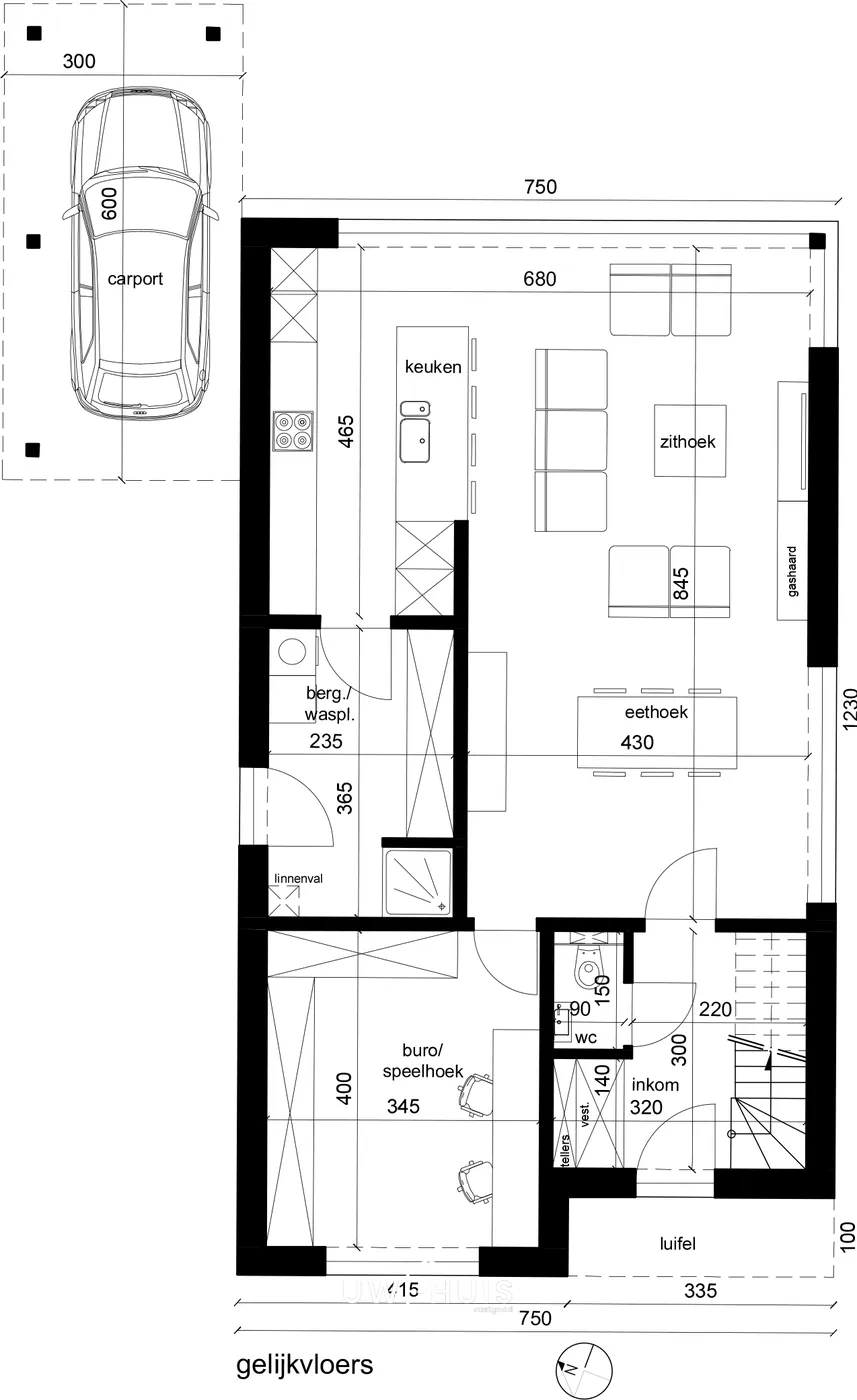
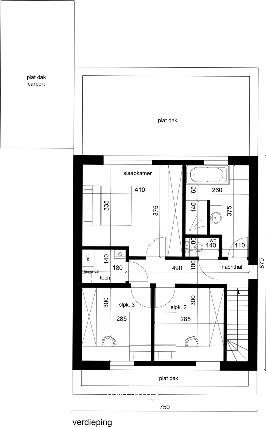
Bewoonbare oppervlakte
157 m²
Gevelbreedte straatkant
7,5 m
Terrein
Perceeloppervlakte
763 m²
Meest recente bestemming terrein
Woongebied
Breedte perceel
18,7 m
Ligging
Afstand tot openbaar vervoer
3500 m
Afstand tot school
3.500 m
Afstand tot fitness
2.500 m
Ruimtelijke ordening
Dagvaarding
Nee
Dagvaarding
Geen rechterlijke herstelmaatregel of bestuurlijke maatregel opgelegd
Bouwvergunning
Ja
Locatie
Bookmolenstraat 36, 9220 HammeIs dit haalbaar voor jou?
Minimale eigen inbreng
-EUR
Maandlast
-EUR/maand
Liever een voorstel op maat?
Vertel meer over je project en je persoonlijke situatie en KBC berekent je persoonlijke rentevoet. Je ontvangt onmiddellijk feedback of je lening haalbaar is en je kunt je aanvraag volledig digitaal afronden. Zelfs als je geen KBC-klant bent.














