Grond te koop in Wetteren
€ 246.116
Is dit haalbaar voor jou?Omschrijving
Bouwgrond geschikt voor open bebouwing te Wetteren
PERCEEL BOUWGROND ZONDER BOUWVERPLICHTING
LIGGING:
Dit prachtige perceel bouwgrond ZONDER BOUWVERPLICHTING bevindt zich in een kleinschalige nieuwbouwwijk gelegen in het rustige Biezen, Wetteren-Kwatrecht. Deze locatie biedt een ruim aanbod aan winkels, scholen, openbaar vervoer en diverse vrijetijdsbestedingen. Bovendien is deze ligging uitstekend bereikbaar via verschillende grote uitvalswegen.
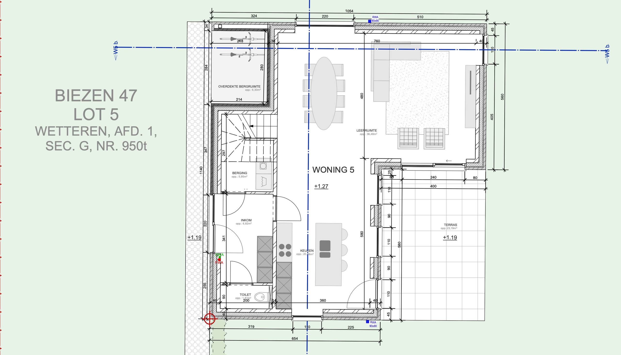
BESCHRIJVING:
Bouwvoorschriften:
- Grondoppervlakte: 838 m2
- Perceelbreedte aan straat: 8,8 meter
- Nokhoogte: max. 11,50 meter
- Kroonlijsthoogte: max. 7 meter
- Tuinzone: min. 8 meter langs alle gevels (maximale bouwzone)
- Maximaal 2 bouwlagen + dak
- Geschikt voor open bebouwing
Voor info of afspraak contacteer Stéphanie 0472 13 28 79
LIGGING:
Dit prachtige perceel bouwgrond ZONDER BOUWVERPLICHTING bevindt zich in een kleinschalige nieuwbouwwijk gelegen in het rustige Biezen, Wetteren-Kwatrecht. Deze locatie biedt een ruim aanbod aan winkels, scholen, openbaar vervoer en diverse vrijetijdsbestedingen. Bovendien is deze ligging uitstekend bereikbaar via verschillende grote uitvalswegen.
BESCHRIJVING:
Bouwvoorschriften:
- Grondoppervlakte: 838 m2
- Perceelbreedte aan straat: 8,8 meter
- Nokhoogte: max. 11,50 meter
- Kroonlijsthoogte: max. 7 meter
- Tuinzone: min. 8 meter langs alle gevels (maximale bouwzone)
- Maximaal 2 bouwlagen + dak
- Geschikt voor open bebouwing
Voor info of afspraak contacteer Stéphanie 0472 13 28 79
Financieel
Waarde grond
209.500 €
Kadasteroppervlakte
838 m²
Gebouw
Type pand
Grond
Subtype
Bouwgrond
Terrein
Perceeloppervlakte
838 m²
Meest recente bestemming terrein
Woongebied
Ligging
Omgeving / buurt
Rustig; Residentiële wijk
Openbaar vervoer nabij
Ja
Autosnelweg nabij
Ja
Ruimtelijke ordening
Dagvaarding
Nee
Vonnissen
Nee
Voorkooprecht
Nee
Locatie
Biezen 47, 9230 Wetteren246.116 EUR
Locatie
Biezen 47
9230 Wetteren
Is dit haalbaar voor jou?
Minimale eigen inbreng
-EUR
Maandlast
-EUR/maand
Liever een voorstel op maat?
Vertel meer over je project en je persoonlijke situatie en KBC berekent je persoonlijke rentevoet. Je ontvangt onmiddellijk feedback of je lening haalbaar is en je kunt je aanvraag volledig digitaal afronden. Zelfs als je geen KBC-klant bent.













