Grond te koop in Gijzegem
€ 215.000
Is dit haalbaar voor jou?Omschrijving
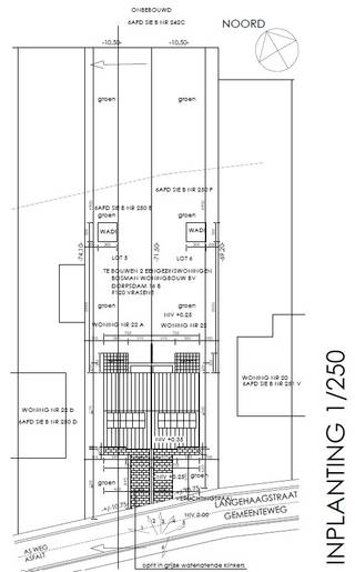
Bouwgrond voor open bebouwing - 1070m²
Deze bouwgrond voor open bebouwing is strategisch gelegen op een perceel van 10a07ca te Gijzegem, Aalst.
Verbindingsweg tussen Gijzegem en Wieze op korte afstand van scholen, winkels en openbaar vervoer. De bouwgrond heeft een straatbreedte meer dan 24 meter. Mogelijkheid voor aankoop van achterliggende gronden.
Voor meer informatie en/of een bezoek, contacteert u Didier op het nummer 0476/ 73. 17. 99.
Financieel
Kadastrale info
0644/00G000
Beschikbaarheid
Vanaf akte
Gebouw
Type pand
Grond
Subtype
Grond
Type bebouwing
Open
Terrein
Meest recente bestemming terrein
Woongebied
Breedte perceel
24 m
Ligging
Afstand tot openbaar vervoer
12 m
Afstand tot school
453 m
Comfort
Aansluiting gas
Ja
Aansluiting water
Ja
Telefoon
Ja
Energie
Keuringsattest elektriciteit
Nee
Ruimtelijke ordening
Kadastraal plan
Ja
Dagvaarding
Geen rechterlijke herstelmaatregel of bestuurlijke maatregel opgelegd
Bouwvergunning
Nee
Locatie
Roland Monteynestraat 8, 9308 GijzegemIs dit haalbaar voor jou?
Minimale eigen inbreng
-EUR
Maandlast
-EUR/maand
Liever een voorstel op maat?
Vertel meer over je project en je persoonlijke situatie en KBC berekent je persoonlijke rentevoet. Je ontvangt onmiddellijk feedback of je lening haalbaar is en je kunt je aanvraag volledig digitaal afronden. Zelfs als je geen KBC-klant bent.










