Grond te koop in Aalst
Omschrijving
Rustig gelegen, westgericht perceel voor halfopen bebouwing!
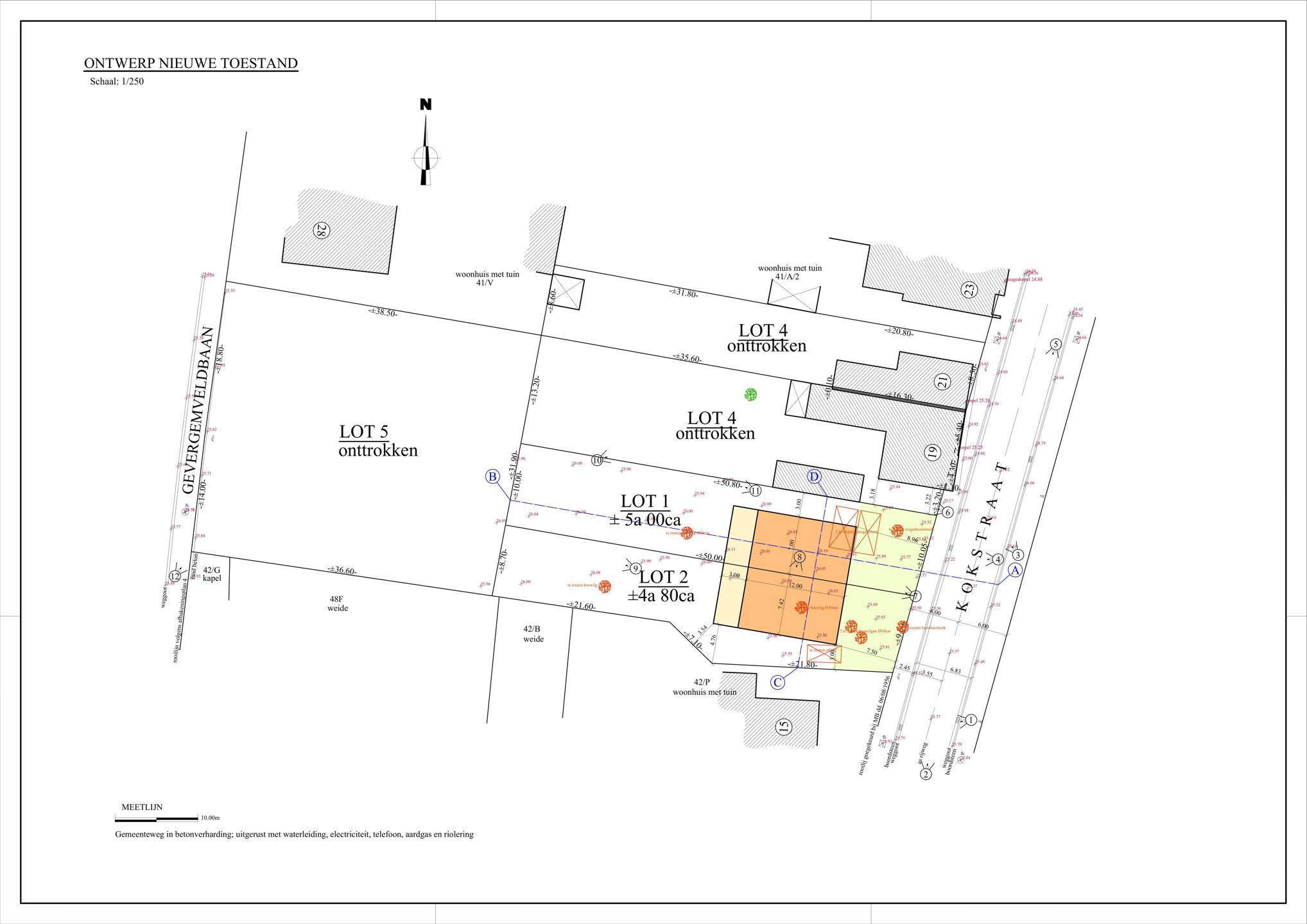
Dit bouwperceel van ongeveer 500 m² (zie plan en luchtfoto, lot 1) is gelegen in een goedgekeurde verkaveling en biedt een uitstekende kans voor het realiseren van een halfopen bebouwing in een aangename omgeving.
De maximale bouwdiepte bedraagt 15 meter op het gelijkvloers en 12 meter op de verdieping, gemeten vanaf de verplichte voorbouwlijn, rekening houdend met een zijdelingse bouwvrije strook van 3 meter. Het hoofdgebouw mag worden voorzien van een plat of hellend dak met een kroonlijsthoogte van max. 6,5 m. Er zijn tot drie bouwlagen toegestaan.
Daarnaast zijn binnen de bouwzone ook een veranda, terras (tot 30 m²) en een kelder (niet voor garagegebruik) mogelijk.
Een inpandige garage, carport of parkeerplaats in de voortuin is verplicht. Zonnepanelen en zonneboilers zijn toegelaten, mits correct geplaatst of mooi geïntegreerd in het ontwerp.
Het naastgelegen perceel (lot 2) is eveneens beschikbaar, wat de unieke mogelijkheid biedt om een vrijstaande woning te bouwen op een ruimer perceel.
Ideale west oriëntatie! Een extra troef is de mogelijkheid tot het aankopen van het achtergelegen perceel (zie plan lot 5).
Op zoek naar een mooi gelegen bouwgrond met potentieel? Neem gerust contact op met Tijl via tijl@immotijl.be of bel 0477 44 86 11 voor meer info of een bezoek ter plaatse.
Financieel
Gebouw
Terrein
Ligging
Ruimtelijke ordening
Locatie
Kokstraat, 9310 AalstIs dit haalbaar voor jou?
Liever een voorstel op maat?
Vertel meer over je project en je persoonlijke situatie en KBC berekent je persoonlijke rentevoet. Je ontvangt onmiddellijk feedback of je lening haalbaar is en je kunt je aanvraag volledig digitaal afronden. Zelfs als je geen KBC-klant bent.











