Grond te koop in Ninove
Omschrijving
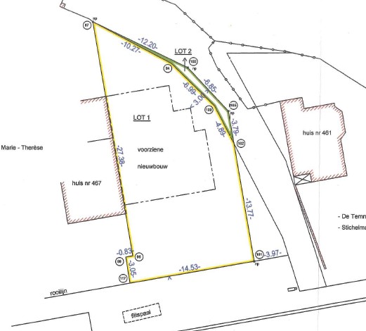
Bouwgrond halfopen bebouwing op 266m² in Meerbeke
Ontdek deze bouwgrond van 266 m² voor een halfopen gezinswoning met 3 bouwlagen en ondergrondse garage. Dankzij de ligging aan de Brusselsesteenweg 465 in Ninove geniet je van een vlotte bereikbaarheid, goede parkeermogelijkheden en een uitstekende verbinding met openbaar vervoer.
Troeven
Ligging: directe aansluiting op in- en uitvalswegen, winkels, scholen en openbaar vervoer vlakbij.
Halfopen perceel met 3 m zijstrook – perfect als oprit naar garage.
Ondergrondse garage én extra parkeermogelijkheden voor de woning.
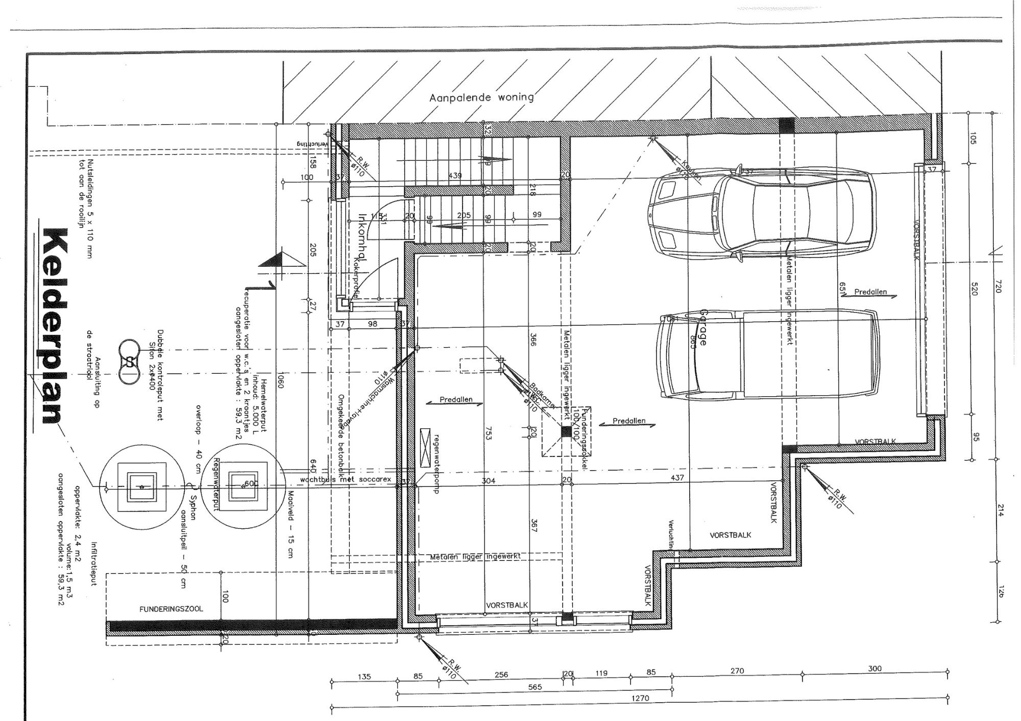
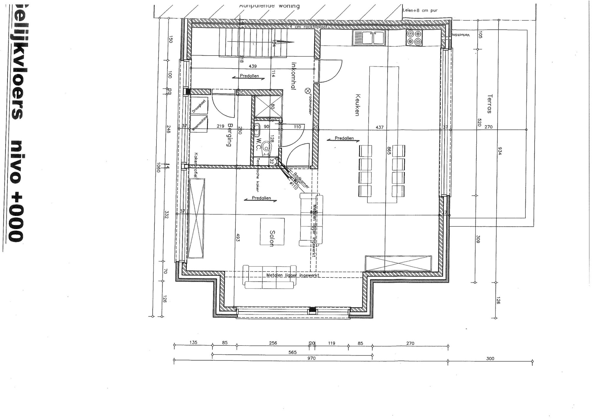
Vergunning 2014: ontwerp met 3 slaapkamers op de eerste verdieping, woonkamer/keuken/terras op straatniveau, en garage/berging op niveau -1.
Goede perceelbreedte aan straatzijde.
Afmetingen (zoals opgegeven)
Perceel: ca. 266 m²
Bouwbreedte vooraan: 10,60 m
Bouwbreedte achteraan: 7,20 m
Bouwdiepte: 12,70 m
Vrije strook naast woning (oprit): 3,00 m
Mogelijke indeling
Niveau -1: ondergrondse garage, berging/techniek
Straatniveau: inkom, leefruimte met open keuken, terras/tuin
1e verdieping: 3 slaapkamers en badkamer
Let op: de bouwvergunning van 2014 betrof bovenstaand concept. Actualiteit/overdraagbaarheid en eventuele nieuwe voorschriften moeten door koper/architect nagekeken worden bij Stad Ninove.
Financieel
Gebouw
Terrein
Ligging
Ruimtelijke ordening
Locatie
Brusselsesteenweg 465, 9400 Ninove89.000 EUR
Locatie
Brusselsesteenweg 465
9400 Ninove
Is dit haalbaar voor jou?
Liever een voorstel op maat?
Vertel meer over je project en je persoonlijke situatie en KBC berekent je persoonlijke rentevoet. Je ontvangt onmiddellijk feedback of je lening haalbaar is en je kunt je aanvraag volledig digitaal afronden. Zelfs als je geen KBC-klant bent.















