Grond te koop in Geraardsbergen
Omschrijving
RUSTIG GELEGEN GROND VOOR OB
RUSTIG GELEGEN GROND VOOR OB
Vraagprijs : 149.000 euro
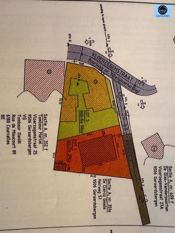
Dit goed gelegen perceel voor een open bebouwing met een oppervlakte. van 5a39 is gelegen in het pittoreske dorp nabij kerk en dorpskern.
De straat breedte bedraagt +-23m75 en de diepte van het perceel +-34m.
Wie houdt van de rust is hier zeker aan het goede adres.
Aansluitingskosten van de nutsvoorzieningen zijn ten laste van de klant.
Alle info beschikbaar op kantoor.
Stedenbouwkundig uittreksel/inlichtingen in aanvraag!
Voor meer info of bezoek bel 0475/51.40.73 of stuur een email naar sven@svena.be. Voor info zie www.svena.be
Deze gegevens zijn louter informatief en wij kunnen niet aansprakelijk gesteld worden voor eventuele onjuistheden.
De bewoonbare oppervlakte is slechts indicatief.
Financieel
Gebouw
Terrein
Energie
Ruimtelijke ordening
Locatie
VLOERZEGEMSTRAAT, 9500 GeraardsbergenIs dit haalbaar voor jou?
Liever een voorstel op maat?
Vertel meer over je project en je persoonlijke situatie en KBC berekent je persoonlijke rentevoet. Je ontvangt onmiddellijk feedback of je lening haalbaar is en je kunt je aanvraag volledig digitaal afronden. Zelfs als je geen KBC-klant bent.















