Huis te koop in Geraardsbergen met 4 slaapkamers
€ 499.000
Is dit haalbaar voor jou?Omschrijving
Te koop, nieuw te bouwen villa in doodlopende straat te Moerbeke (Geraardsbergen)
Nieuw te bouwen VILLA op 1.701 M², ideaal voor wie droomt van een EXCLUSIEVE VILLA met maximale PRIVACY. Dankzij de BOUWBREEDtE van 15 METER en een BOUWDIEPTE van eveneens 15 METER biedt dit perceel alle ruimte voor een STIJLVOLLE WONING met een UITGESTREKTE TUIN, perfect geïntegreerd in het GROENE LANDSCHAP. De LIGGING combineert een LANDELIJKE SFEER met een vlotte BEREIKBAARHEID: zowel het CENTRUM VAN GERAARDSBERGEN als de OMLIGGENDE GEMEENTEN zijn eenvoudig te bereiken, wat dit perceel uitermate geschikt maakt voor GEZINNEN en wie RUSTIG wil wonen met toch alle COMFORT binnen handbereik. De ZELDZAME COMBINATIE van RUST, RUIMTE en STRATEGISCHE LIGGING maakt van dit BOUWGRONDAANBOD een bijzonder aantrekkelijke OPPORTUNITEIT in de regio.
Vermelde prijs bevat de grond en de constructie, exclusief verkooprechten, notariskosten keuken, BTW 21% en 5% architect, incl. veiligheidsmaatregelen en coord.
Adres: Brouwketelstraat te Moerbeke (Geraardsbergen)
P-score: A
Vermelde prijs bevat de grond en de constructie, exclusief verkooprechten, notariskosten keuken, BTW 21% en 5% architect, incl. veiligheidsmaatregelen en coord.
Adres: Brouwketelstraat te Moerbeke (Geraardsbergen)
P-score: A
Gebouw
Type pand
Huis
Subtype
Villa
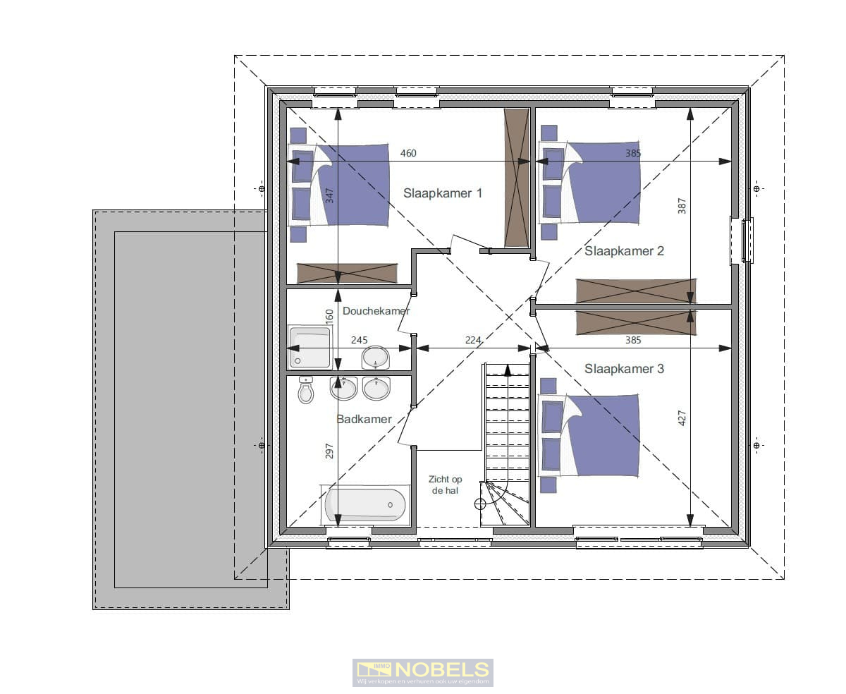
Bewoonbare oppervlakte
197 m²
Terrein
Perceeloppervlakte
1.701 m²
Meest recente bestemming terrein
Woongebied
Oriëntatie tuin
Zuid
Indeling
Aantal slaapkamers
4
Oppervlakte slaapkamers
9 m²; 14,5 m²; 14,5 m²; 16 m²
Aantal badkamers
2
Comfort
Lift
Nee
Energie
E-peil
0
Keuringsattest elektriciteit
Nee
Ruimtelijke ordening
Verkavelingsvergunning
Ja
Voorkooprecht
Nee
G(ebouw)-score
A (geen overstroming gemodelleerd)
Locatie
Brouwketelstraat, 9500 GeraardsbergenIs dit haalbaar voor jou?
Minimale eigen inbreng
-EUR
Maandlast
-EUR/maand
Liever een voorstel op maat?
Vertel meer over je project en je persoonlijke situatie en KBC berekent je persoonlijke rentevoet. Je ontvangt onmiddellijk feedback of je lening haalbaar is en je kunt je aanvraag volledig digitaal afronden. Zelfs als je geen KBC-klant bent.















